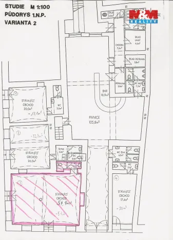
Pronájem obchodního prostoru, Česká Třebová, Hýblova, 58 m2

Hýblova, Česká Třebová


11 000 Kč /za měsíc
Získejte výhodnou HYPOTÉKU
Regionální dodavatelé v České Třebové

Pojištění a finance

Popis

Nabízíme k pronájmu atraktivní obchodní prostor v centru České Třebové, ideální pro vaše podnikání!
Tento rohový prostor se nachází v přízemí cihlové budovy a nabízí užitnou plochu 58 m². Díky vchodu ze dvou stran zajišťuje výbornou dostupnost a viditelnost pro vaše zákazníky. Umístění u Starého náměstí v centru města přináší vysokou frekvenci potenciálních klientů. Stav nemovitosti je dobrý. Volné od 1.4.2026.
Využijte jedinečnou příležitost pro rozvoj vašeho podnikání na prestižní adrese!
Pro více informací nás neváhejte kontaktovat.

Cena
11 000 Kč /za měsíc
Aktualizováno
5. 3. 2026
Adresa
Hýblova, Česká Třebová
ID
932105
Stavba
Cihlová
Stav objektu
Dobrý
Vybaveno
Ne
Lokalita objektu
Centrum obce
Vlastnictví
Osobní
Užitná plocha
58 m2

Máte zájem o tuto nemovitost?

Tímto, v souladu s nařízením Evropského parlamentu a Rady (EU) 2016/679, v platném znění, prohlašuji, že mi je alespoň 16 let a uděluji tak svůj souhlas se zpracováním zadaných údajů (jméno, telefon, e-mail, ip adresa) společnosti B3 Technology, s.r.o., IČ: 07330600, se sídlem Novostavby 126/23, 435 11 Lom (správce dat), za účelem předání dotazu z tohoto formuláře Vámi vybranému inzerentovi a zpětného kontaktování mé osoby. Osobní údaje bude správce zpracovávat manuálně i automaticky přímo prostřednictvím svých zaměstnanců. Informace předané tímto formulářem budou uloženy v databázi správce maximálně po dobu 10 let. Odvolání souhlasu s uložením a zpracováním poskytnutých dat lze e-mailem na info@realitymat.cz. V případě podezření na neoprávněné použití Vámi poskytnutých údajů máte právo předat podnět k šetření Úřadu pro ochranu osobních údajů. Více informací
Chystáte se prodat nemovitost?
Pomůžeme Vám!
Theleadway banner

Kontakt

Radim Kunc

Radim Kunc

Přihlášení k odběru

Nenechte si ujít nejnovější nabídky pronájmu obchodních prostor v České Třebové.

Podobné nabídky