Prodej bytu 4+kk, Brno, Jerlínová, 138 m2

Jerlínová, Brno


15 120 000 Kč /za nemovitost
HYPOTÉKA od 67 577 Kč /měs.

(včetně DPH, včetně poplatků, včetně provize, včetně právního servisu)


Regionální dodavatelé v Brně

Pojištění a finance

Popis

Projekt Rezidence Jerlínka představuje svou vlajkovou loď pro velké rodiny. Tento byt 4+kk ve 4. patře je unikátní nejen svou plochou, ale především chytrým rozložením. Nabízí dvě koupelny, dva velké balkony a jeden nadstandardně velký pokoj (25 m²), který se jen tak nevidí.

Klíčové benefity:
• Dva balkony (2x 14 m²): Luxusní venkovní prostor o celkové ploše téměř 29 m². Jeden balkon je orientován na jih (přístupný z obýváku a ložnice), druhý na západ (přístupný ze dvou pokojů). Slunce si užijete po celý den.
• Královský pokoj (24,7 m²): Tato místnost je větší než leckteré garsonky. Může sloužit jako luxusní ložnice s pracovnou, obří dětský pokoj pro sourozence, nebo "druhý obývák" pro teenagery.
• Dvě koupelny: Ranní shon odpadá. Hlavní koupelna (téměř 10 m²) disponuje vanou, druhá menší koupelna má sprchový kout. Samozřejmostí je další samostatné WC.
• Prémiové vybavení: V ceně je zahrnuta klimatizace, podlahové vytápění, venkovní žaluzie a trojskla.
• Dostatek úložného prostoru: Velká vstupní hala a k tomu nadstandardní sklep (4 m²).

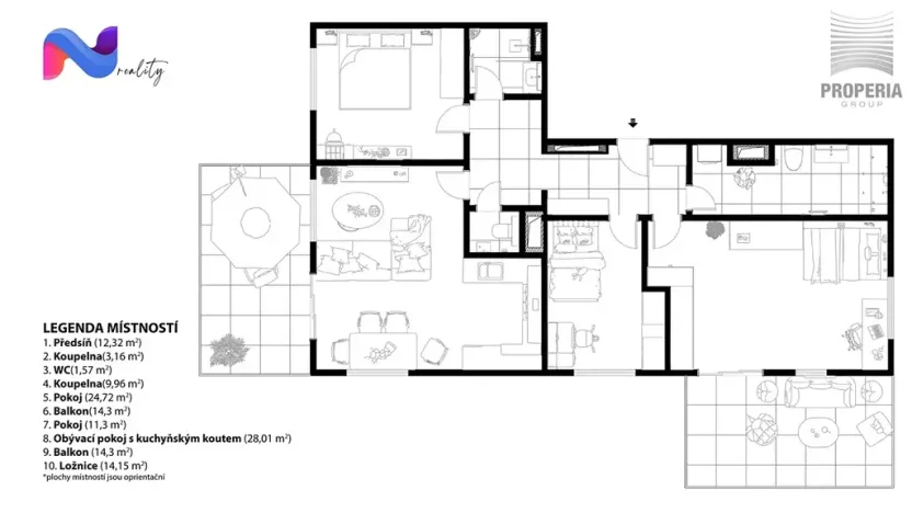
Dispozice (Užitná plocha cca 137,8 m²):
• Obývací pokoj s KK (28,01 m²): Srdce bytu s přímým vstupem na jižní balkon.
• Pokoj - Master (24,72 m²): Mimořádně velký pokoj se vstupem na západní balkon.
• Ložnice (14,15 m²): Klidná místnost se vstupem na jižní balkon.
• Pokoj (11,30 m²): Ideální pracovna nebo dětský pokoj se vstupem na západní balkon.
• Zázemí: Velká koupelna (9,96 m²), druhá koupelna (3,16 m²), WC (1,57 m²) a prostorná předsíň (12,32 m²).
• Příslušenství: Dva balkony (celkem 28,60 m²) a velká sklepní kóje (4,01 m²). Možnost dokoupení garážového stání.

Harmonogram:
• Hrubá stavba: březen 2026
• Kolaudace: březen 2027

Financování a podmínky:
• Cena je konečná: Jedná se o přímý prodej od investora, neplatíte provizi RK.
• Bezpečné splácení: Platební harmonogram je rozložen podle jednotlivých etap výstavby.
• Hypotéka: Byt lze využít jako zástavu úvěru. S vyřízením financování vám rádi pomůžeme.

Lokalita: Žebětín kombinuje klid a dostupnost. V bezprostředním okolí najdete oboru Holedná a Žebětínský rybník. Sousední Bystrc (supermarkety, lékaři) je v těsné blízkosti. Zásadní výhodou je plánované prodloužení tramvaje z Bystrce s budoucí zastávkou v docházkové vzdálenosti, což zajistí rychlé spojení do centra.

Cena
15 120 000 Kč /za nemovitost Spočítat hypotéku
Poznámka k ceně
včetně DPH, včetně poplatků, včetně provize, včetně právního servisu
Aktualizováno
5. 2. 2026
Adresa
Jerlínová, Brno
ID
03800
Stavba
Cihlová
Stav objektu
Novostavba
Patro
4. z 5
Vybaveno
Ne
Lokalita objektu
Okraj obce
Vlastnictví
Osobní
Užitná plocha
138 m2
Třída energetické náročnosti
A - Mimořádně úsporná
Ukazatel energetické náročnosti
51 kWh/m2 za rok
Elektřina
230V
Odpad
Veřejná kanalizace
Komunikace
Betonová, Asfaltová
Doprava
Silnice, MHD, Autobus
Voda
Vodovod
Topné těleso
Podlahové vytápění, Klimatizace
Zdroj teplé vody
Tepelné čerpadlo
Balkon
Sklep
Výtah
Bezbarierový přístup

Máte zájem o tuto nemovitost?

Tímto, v souladu s nařízením Evropského parlamentu a Rady (EU) 2016/679, v platném znění, prohlašuji, že mi je alespoň 16 let a uděluji tak svůj souhlas se zpracováním zadaných údajů (jméno, telefon, e-mail, ip adresa) společnosti B3 Technology, s.r.o., IČ: 07330600, se sídlem Novostavby 126/23, 435 11 Lom (správce dat), za účelem předání dotazu z tohoto formuláře Vámi vybranému inzerentovi a zpětného kontaktování mé osoby. Osobní údaje bude správce zpracovávat manuálně i automaticky přímo prostřednictvím svých zaměstnanců. Informace předané tímto formulářem budou uloženy v databázi správce maximálně po dobu 10 let. Odvolání souhlasu s uložením a zpracováním poskytnutých dat lze e-mailem na info@realitymat.cz. V případě podezření na neoprávněné použití Vámi poskytnutých údajů máte právo předat podnět k šetření Úřadu pro ochranu osobních údajů. Více informací
Chystáte se prodat nemovitost?
Pomůžeme Vám!
Theleadway banner

Kontakt

Petr Nossek

Petr Nossek

Přihlášení k odběru

Nenechte si ujít nejnovější nabídky prodeje bytů 4+kk v Brně.

Podobné nabídky