Pronájem bytu 5+kk, Praha - Žižkov, Řehořova, 131 m2 (ID: 2068293)

Řehořova, Praha, Žižkov


50 000 Kč /za měsíc
Získejte výhodnou HYPOTÉKU

(Poplatky za služby a energie se hradí zvlášť. Informace v popisu.)


Regionální dodavatelé v Praze 3

Stěhovací služby

Výkup a prodej starého nábytku

Popis

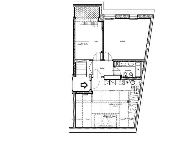
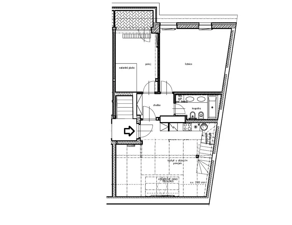
Zrekonstruovaný moderní duplex 5+kk (4 ložnice, 2 koupelny), o celkové ploše 134m², je situovaný v 5.MP a 6.NP (posledním patře), rezidenční budovy s výtahem, se nachází v atraktivní části nazývané "Pražský Montmartr“, která je vyhledávanou oblastí pražských bohémů, umělců i studentů, na Praze 3 Žižkově, ulice Řehořova.

Interiér bytu je částečně zařízený a dispozičně nabízí v dolním podlaží: vstup (2,5 m²) přímo do světlé obývací místnosti propojené s kuchyňským prostorem (31,7 m²), chodbu (4,7 m²) vedoucí do pokojů – prostorné ložnice (22,1 m²), dalšího pokoje (13,2 m²) se vstupem na terasu (2,8 m²) – a do moderní koupelny (3,5 m²) s vanou, toaletou a bidetem.
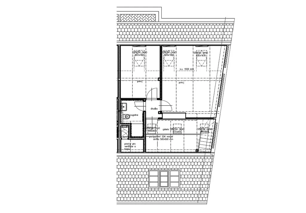
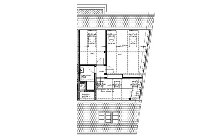
Horní patro bytu nabízí galerii (9,5 m²), dvě oddělené podkrovní ložnice (24,8 m² a 12,4 m²) a druhou koupelnu se sprchovým koutem a toaletou.
Součástí vybavení jsou elektrospotřebiče: lednice s mrazákem, myčka, varná deska, trouba a pračka, a také částečný nábytek – vestavěné skříně a postele zobrazené na fotografiích.

Dům se nachází ve vyhledávané rezidenční lokalitě na Praze 3, nedaleko parku Vítkov s krásným výhledem na Prahu, s veškerou občanskou vybaveností v blízkém okolí (široká škála restaurací, bister, kaváren, množství supermarketů a různorodých obchůdků, poblíž butiků s nákupní zónou v srdci Prahy, a mnoho dalšího). Lokalita poskytuje sociální i kulturní vyžití (Palác Akropolis, Žižkovské divadlo Járy Cimrmana, Žižkovská televizní věž, Park Riegrovy Sady) a další kulturní akce.
Výborná dopravní dostupnost do centra města i všech částí Prahy. Tramvajová zastávka "Viktoria Žižkov" je vzdálena jenom pár minut pěšky od domu. Stanice nejbližšího metra (linka C) Hlavní nádraží je vzdálená 1 stanici tramvají, nebo cca 10 min. pěšky.

Měsíční zálohy na služby a energie spojené s užíváním bytu jsou výši 2 500 Kč/měsíčně/na osobu, (včetně zálohy na teplo a teplou vodu). Elektřina za byt je převedena na nájemce. Vratná kauce (jistota) je ve výší 2 nájmů. Provize RK.
Byt je vhodný pro zájemce bez zvířat.
Byt je určený pro dlouhodobý pronájem, min. 1 rok. Podnájem, Airbnb, Booking nejsou možné.

Cena
50 000 Kč /za měsíc
Poznámka k ceně
Poplatky za služby a energie se hradí zvlášť. Informace v popisu.
Aktualizováno
4. 2. 2026
Adresa
Řehořova, Praha, Žižkov
ID
971591
Stavba
Cihlová
Stav objektu
Po rekonstrukci
Patro
5.
Vybaveno
Částečně
Vlastnictví
Osobní
Užitná plocha
131 m2
Podlahová plocha
133 m2
Třída energetické náročnosti
G - Mimořádně nehospodárná
Elektřina
230V
Plyn
Plynovod
Doprava
Silnice, MHD
Voda
Vodovod
Terasa
Výtah

Máte zájem o tuto nemovitost?

Tímto, v souladu s nařízením Evropského parlamentu a Rady (EU) 2016/679, v platném znění, prohlašuji, že mi je alespoň 16 let a uděluji tak svůj souhlas se zpracováním zadaných údajů (jméno, telefon, e-mail, ip adresa) společnosti B3 Technology, s.r.o., IČ: 07330600, se sídlem Novostavby 126/23, 435 11 Lom (správce dat), za účelem předání dotazu z tohoto formuláře Vámi vybranému inzerentovi a zpětného kontaktování mé osoby. Osobní údaje bude správce zpracovávat manuálně i automaticky přímo prostřednictvím svých zaměstnanců. Informace předané tímto formulářem budou uloženy v databázi správce maximálně po dobu 10 let. Odvolání souhlasu s uložením a zpracováním poskytnutých dat lze e-mailem na info@realitymat.cz. V případě podezření na neoprávněné použití Vámi poskytnutých údajů máte právo předat podnět k šetření Úřadu pro ochranu osobních údajů. Více informací
Chystáte se prodat nemovitost?
Pomůžeme Vám!

Kontakt

Eva Cinculová

Eva Cinculová

Přihlášení k odběru

Nenechte si ujít nejnovější nabídky pronájmu bytů 5+kk v Praze 3.

Podobné nabídky