Pronájem obchodního prostoru, Rumburk, Třída 9. května, 300 m2 (ID: 2064138)

Třída 9. května, Rumburk 1


20 000 Kč /za měsíc
Získejte výhodnou HYPOTÉKU
Regionální dodavatelé v Rumburku

Okna a dveře

Rekonstrukce

Popis

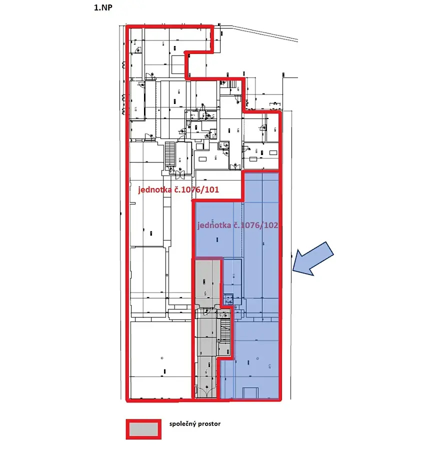
V exkluzivním zastoupení si vám dovolujeme představit obchodní prostory k pronájmu v centru města Rumburk, na Třídě 9. května. Prostory jsou v dobrém stavu, mají velké výlohy a nacházejí se v hezkém činžovním domě, kde sídlí úspěšná prodejna Sinsay. Celková plocha činí 300 m².

Pokud vás tyto obchodní prostory zaujaly, neváhejte nás kontaktovat – rádi vám nabídku představíme blíže.

Cena
20 000 Kč /za měsíc
Aktualizováno
30. 1. 2026
Adresa
Třída 9. května, Rumburk 1
Stavba
Cihlová
Stav objektu
Velmi dobrý
Užitná plocha
300 m2

Máte zájem o tuto nemovitost?

Tímto, v souladu s nařízením Evropského parlamentu a Rady (EU) 2016/679, v platném znění, prohlašuji, že mi je alespoň 16 let a uděluji tak svůj souhlas se zpracováním zadaných údajů (jméno, telefon, e-mail, ip adresa) společnosti B3 Technology, s.r.o., IČ: 07330600, se sídlem Novostavby 126/23, 435 11 Lom (správce dat), za účelem předání dotazu z tohoto formuláře Vámi vybranému inzerentovi a zpětného kontaktování mé osoby. Osobní údaje bude správce zpracovávat manuálně i automaticky přímo prostřednictvím svých zaměstnanců. Informace předané tímto formulářem budou uloženy v databázi správce maximálně po dobu 10 let. Odvolání souhlasu s uložením a zpracováním poskytnutých dat lze e-mailem na info@realitymat.cz. V případě podezření na neoprávněné použití Vámi poskytnutých údajů máte právo předat podnět k šetření Úřadu pro ochranu osobních údajů. Více informací
Chystáte se prodat nemovitost?
Pomůžeme Vám!

Kontakt

Aleš Maček

Aleš Maček

Přihlášení k odběru

Nenechte si ujít nejnovější nabídky pronájmu obchodních prostor v Rumburku.

Podobné nabídky