Prodej restaurace, Praha - Žižkov, Olšanská, 352 m2 (ID: 2062788)

Olšanská, Praha, Žižkov


41 000 000 Kč /za nemovitost
HYPOTÉKA od 183 245 Kč /měs.

(+ DPH v zákonné výši)


Regionální dodavatelé v Praze 3

Stěhovací služby

Výkup a prodej starého nábytku

Pojištění a finance

Popis

Prodej reprezentativní restaurace v projektu Garden Towers – Olšanská, Praha 3 – Žižkov

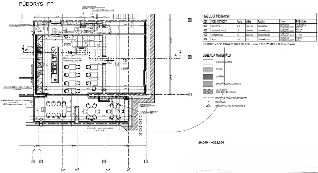
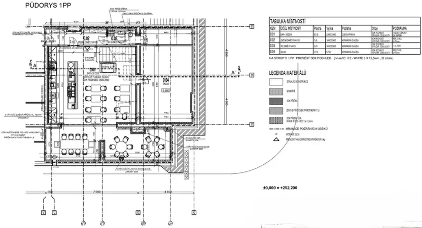
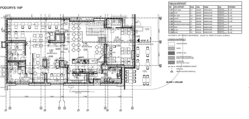
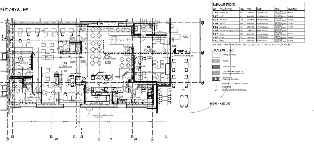
Exkluzivně nabízíme k prodeji nově zkolaudovanou a kompletně připravenou restauraci ve velmi atraktivní lokalitě Prahy 3 – Žižkov, v přízemí moderní rezidence Garden Towers. Celková užitná plocha činí 352,3 m² a prostor je rozdělen do tří funkčních úrovní, které umožňují efektivní provoz a rozmanité využití.

Dispozice:

Přízemí (vstup z ulice Olšanská) – Reprezentativní vstup, vysoké stropy, panoramatická okna, kapacita cca 20 míst k sezení. Nechybí bezbariérové WC.

Zvýšené přízemí – Hlavní část provozu s kuchyní, barem, prodejním pultem, dámskými a pánskými toaletami a technickým zázemím. Možnost dětského koutku, kapacita cca 60 míst. Prostor rozdělen na světlou a klidovou zónu.

Suterén – Přibližně 40 míst k sezení, kancelář, sklad, šatna pro zaměstnance, technické zázemí a sociální zařízení pro personál.

Technické vybavení a výhody:
• Restaurace je zkolaudovaná jako „kavárna – vinárna“ (provozovna společného stravování) a splňuje veškeré hygienické i technické požadavky.
• Kuchyň vybavena špičkovou gastronomickou technologií od renomovaných značek.
• Ve všech částech je dokončena elektroinstalace, připraveny vývody pro TV, ozvučení a kamerový systém.
• Moderní vzduchotechnika s klimatizací zajišťuje příjemné prostředí po celý rok.
• Energetická náročnost budovy je ve velmi úsporné třídě B.
• Součástí prodeje jsou 3 parkovací místa v podzemní garáži.
• Venkovní terasa před vstupem s kapacitou 20 míst.
• K dispozici je kompletní interiérový designový projekt od architekta pro 122 vnitřních míst.

Lokalita:

Restaurace se nachází v živé části Prahy 3 s vysokou koncentrací rezidenčních i kancelářských budov. V těsné blízkosti se nachází tramvajová zastávka Olšanská, což zajišťuje skvělou dostupnost jak pro hosty, tak pro personál.

Pro více informací, detailní výkresy, nebo sjednání osobní prohlídky nás neváhejte kontaktovat.

Cena
41 000 000 Kč /za nemovitost Spočítat hypotéku
Poznámka k ceně
+ DPH v zákonné výši
Aktualizováno
29. 1. 2026
Adresa
Olšanská, Praha, Žižkov
Stavba
Smíšená
Stav objektu
Novostavba
Užitná plocha
352 m2
Třída energetické náročnosti
B - Velmi úsporná
Elektřina
230V
Odpad
Veřejná kanalizace
Komunikace
Asfaltová
Doprava
MHD
Voda
Místní zdroj vody
Parkování

Máte zájem o tuto nemovitost?

Tímto, v souladu s nařízením Evropského parlamentu a Rady (EU) 2016/679, v platném znění, prohlašuji, že mi je alespoň 16 let a uděluji tak svůj souhlas se zpracováním zadaných údajů (jméno, telefon, e-mail, ip adresa) společnosti B3 Technology, s.r.o., IČ: 07330600, se sídlem Novostavby 126/23, 435 11 Lom (správce dat), za účelem předání dotazu z tohoto formuláře Vámi vybranému inzerentovi a zpětného kontaktování mé osoby. Osobní údaje bude správce zpracovávat manuálně i automaticky přímo prostřednictvím svých zaměstnanců. Informace předané tímto formulářem budou uloženy v databázi správce maximálně po dobu 10 let. Odvolání souhlasu s uložením a zpracováním poskytnutých dat lze e-mailem na info@realitymat.cz. V případě podezření na neoprávněné použití Vámi poskytnutých údajů máte právo předat podnět k šetření Úřadu pro ochranu osobních údajů. Více informací
Chystáte se prodat nemovitost?
Pomůžeme Vám!
Theleadway banner

Kontakt

Ekaterina Shchekaleva

Ekaterina Shchekaleva

Přihlášení k odběru

Nenechte si ujít nejnovější nabídky prodeje restaurací v Praze 3.

Podobné nabídky