Prodej bytu 1+kk, Pec pod Sněžkou, 36 m2 (ID: 2057899)

Pec pod Sněžkou, Velká Úpa I


7 380 000 Kč /za nemovitost
HYPOTÉKA od 32 984 Kč /měs.
Regionální dodavatelé v Peci pod Sněžkou

Popis

Prodej bytu 1+kk s balkónem – Rezidence Zvonička, část obce Velká Úpa I., obec Pec pod Sněžkou

SPRÁVCOVSKÁ SPOLEČNOST VÁM ZAJISTÍ CELOROČNÍ OBSAZENOST vč. organizace předání klíčů, úklidu a výměny lůžkovin.

Nabízíme k prodeji byt v novém developerském projektu Rezidence Zvonička, který vzniká na slunném svahu Vavřincova Dolu, v lokalitě s velmi omezenými možnostmi další výstavby. Projekt je zasazen do krkonošské krajiny s důrazem na respekt k okolní přírodě a zachování horského charakteru místa.

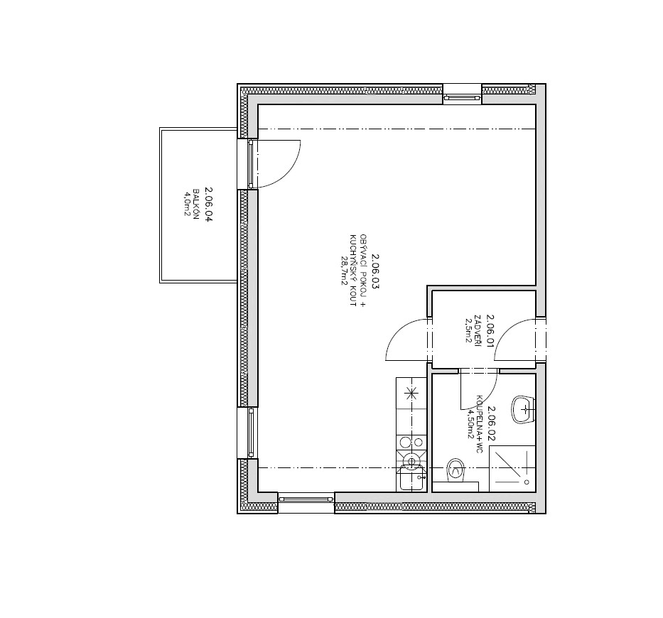
Předmětem prodeje je byt o dispozici 1+kk s užitnou plochou 36 m², balkónem 4 m² a parkovacím stáním.

Dispoziční řešení bytu:
- obývací pokoj s kuchyňským koutem
- koupelna s WC

Byt je kompletně vybaven nábytkem na míru, který maximálně využívá prostor a podtrhuje moderní horský styl interiéru. Součástí je kvalitní kuchyňská linka včetně spotřebičů značky Siemens.

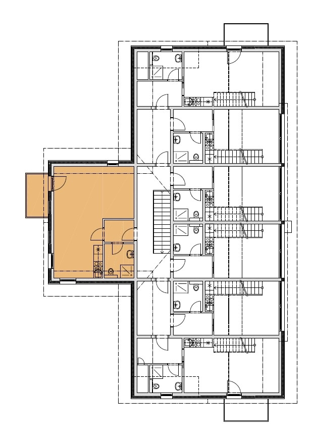
Byt je součástí rezidence s celkovým počtem 10 bytových jednotek o dispozicích 1+kk, 2+kk a mezonetů. Rezidence nabízí společné zázemí v podobě lyžárny/kolárny a sauny. Ke každému bytu náleží parkovací stání před domem.

Rezort se vyznačuje prémiovým technickým standardem:
- podlahové topení napojené na tepelné čerpadlo země–voda (4 vrty)
- integrovaná klimatizace s ovládáním přes mobilní aplikaci (možnost vytopení bytu před příjezdem)
- rekuperace vzduchu
- okna s trojskly
- FVE na střeše rezidence pro snížení nákladů za elektřinu
- internetové připojení Starlink

Projekt se vyznačuje nadčasovou architekturou s použitím přírodních materiálů – dřeva a kamene, které podtrhují horský charakter stavby. Všechny byty v rezidenci disponují otevřenými výhledy do krkonošské krajiny.

Lokalita a volnočasové aktivity:
- zastávka ski busu 50 m od rezidence
- vlek (poma) pro začátečníky hned vedle domu
- výborná dostupnost lyžařských areálů: SkiResort Velká Úpa, SkiResort Pec pod Sněžkou, SkiResort Černá hora
- celoroční využití – turistika, cyklistika
- oblíbené procházky k oboře nebo k vodopádům v bezprostředním okolí
- budoucí napojení dálnice D11 až k Trutnovu

Byt je vhodný jak pro vlastní rekreaci či bydlení, tak jako investiční nemovitost s vysokým potenciálem krátkodobého pronájmu v jedné z nejžádanějších horských lokalit Krkonoš. Celkem prodáváme 6 různých bytů vč. mezonetů. Detail naleznete na webových stránkách.

Předpokládaná kolaudace 4/2026.

S financováním Vám rád pomůže můj kolega Petr Koza, na kterého se můžete spolehnout.

Pro více informací nebo sjednání prohlídky nás neváhejte kontaktovat.

Cena
7 380 000 Kč /za nemovitost Spočítat hypotéku
Aktualizováno
24. 4. 2026
Adresa
Pec pod Sněžkou, Velká Úpa I
ID
3484
Stavba
Cihlová
Stav objektu
Novostavba
Patro
2. z 2
Vybaveno
Ano
Lokalita objektu
Klidná část obce
Vlastnictví
Osobní
Užitná plocha
36 m2
Podlahová plocha
40 m2
Třída energetické náročnosti
A - Mimořádně úsporná
Elektřina
230V
Odpad
ČOV pro celý objekt
Komunikace
Asfaltová
Telekomunikace
Internet, Kabelové rozvody
Doprava
Silnice, Autobus
Voda
Vodovod
Balkon
Parkování
Nízkoenergetický

Máte zájem o tuto nemovitost?

Tímto, v souladu s nařízením Evropského parlamentu a Rady (EU) 2016/679, v platném znění, prohlašuji, že mi je alespoň 16 let a uděluji tak svůj souhlas se zpracováním zadaných údajů (jméno, telefon, e-mail, ip adresa) společnosti B3 Technology, s.r.o., IČ: 07330600, se sídlem Novostavby 126/23, 435 11 Lom (správce dat), za účelem předání dotazu z tohoto formuláře Vámi vybranému inzerentovi a zpětného kontaktování mé osoby. Osobní údaje bude správce zpracovávat manuálně i automaticky přímo prostřednictvím svých zaměstnanců. Informace předané tímto formulářem budou uloženy v databázi správce maximálně po dobu 10 let. Odvolání souhlasu s uložením a zpracováním poskytnutých dat lze e-mailem na info@realitymat.cz. V případě podezření na neoprávněné použití Vámi poskytnutých údajů máte právo předat podnět k šetření Úřadu pro ochranu osobních údajů. Více informací
Chystáte se prodat nemovitost?
Pomůžeme Vám!

Kontakt

Bc. Jan Macek

Bc. Jan Macek

Přihlášení k odběru

Nenechte si ujít nejnovější nabídky prodeje bytů 1+kk v Peci pod Sněžkou.

Podobné nabídky