Pronájem bytu 2+kk, Praha - Zličín, Sazovická, 53 m2

Sazovická, Praha-Zličín


21 000 Kč /za měsíc
Získejte výhodnou HYPOTÉKU

(zálohy na poplatky 4100,-Kč, zvlášť je elektřina + provize RK)


Regionální dodavatelé v Praze

Stěhovací služby

Výkup a prodej starého nábytku

Popis

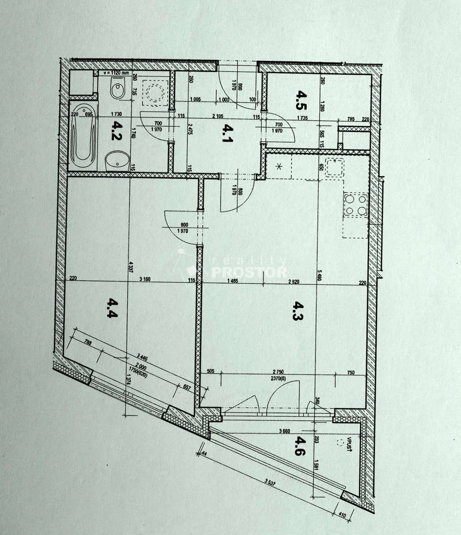
Stylový byt 2+kk s terasou a sklepem o celkové ploše 60 m², situovaný v moderním domě s nadčasovým designem, ve velmi žádané lokalitě na okraji Prahy 5 – Zličín, v blízkosti OC Metropole Zličín. Byt se nachází v 1. patře cihlového domu. Dispozičně je řešen velmi prakticky – po vstupu do bytu se nachází prostorná vstupní chodba se vstupy do obývacího pokoje, koupelny a komory.
Koupelna je vybavena vanou a pračkou, komora je osazena regálem.
Obývací pokoj je zařízen pohovkou, konferenčním stolkem a úložnou skříní, s přímým vstupem na terasu orientovanou na jižní stranu.
Ložnice nabízí dvoulůžko, noční stolky a velkou vestavnou šatní skříň.
Podlahy jsou řešeny vinylovou krytinou a keramickou dlažbou. Byt je vybaven bezpečnostními dveřmi a zabezpečovacím systémem (alarmem).
K bytu náleží také komora / sklep o výměře 2,4 m², umístěná na stejném patře.
Služby spojené s provozem domu (úklid společných prostor, výtah, odvoz odpadu) a energie (voda, teplo) se hradí samostatně mimo nájemné dle skutečné spotřeby, formou záloh ve výši 4 100,- Kč měsíčně.
Základní nájemné činí 21 000 Kč / měsíc.
Elektřina není součástí poplatků – nájemce si ji přihlašuje na sebe a hradí přímo dodavateli ze svého účtu. Budova je energeticky zateplená vedená v třídě B - velmi úsporná.
Lokalita nabízí výbornou dostupnost do centra Prahy – stanice metra Zličín je dostupná pěšky nebo jednu zastávku autobusem. Kompletní občanská vybavenost je v docházkové vzdálenosti.
Zvířata nejsou povolena.
V blízkosti se nachází jedna z nejmodernějších základních škol v Praze s širokými možnostmi sportovního a kulturního vyžití. Nedaleko je také park Zličín, dětská hřiště, sportoviště a cyklostezky navazující na křivoklátské okruhy.

Cena
21 000 Kč /za měsíc
Poznámka k ceně
zálohy na poplatky 4100,-Kč, zvlášť je elektřina + provize RK
Náklady na bydlení
4100,-Kč pro 2 osoby, podle spotřeby, elektřinu si převádí nájemník na sebe
Aktualizováno
23. 1. 2026
Adresa
Sazovická, Praha-Zličín
ID
11624
Stavba
Cihlová
Stav objektu
Novostavba
Patro
1. z 4
Lokalita objektu
Sídliště
Vlastnictví
Osobní
Užitná plocha
53 m2
Podlahová plocha
60 m2
Třída energetické náročnosti
B - Velmi úsporná
Sklep
Lodžie
Terasa
Parkování

Máte zájem o tuto nemovitost?

Tímto, v souladu s nařízením Evropského parlamentu a Rady (EU) 2016/679, v platném znění, prohlašuji, že mi je alespoň 16 let a uděluji tak svůj souhlas se zpracováním zadaných údajů (jméno, telefon, e-mail, ip adresa) společnosti B3 Technology, s.r.o., IČ: 07330600, se sídlem Novostavby 126/23, 435 11 Lom (správce dat), za účelem předání dotazu z tohoto formuláře Vámi vybranému inzerentovi a zpětného kontaktování mé osoby. Osobní údaje bude správce zpracovávat manuálně i automaticky přímo prostřednictvím svých zaměstnanců. Informace předané tímto formulářem budou uloženy v databázi správce maximálně po dobu 10 let. Odvolání souhlasu s uložením a zpracováním poskytnutých dat lze e-mailem na info@realitymat.cz. V případě podezření na neoprávněné použití Vámi poskytnutých údajů máte právo předat podnět k šetření Úřadu pro ochranu osobních údajů. Více informací
Chystáte se prodat nemovitost?
Pomůžeme Vám!

Kontakt

Luboš Borovka

Luboš Borovka

Přihlášení k odběru

Nenechte si ujít nejnovější nabídky pronájmu bytů 2+kk v Praze.

Podobné nabídky