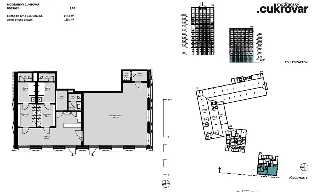
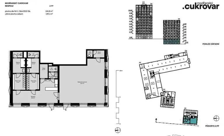
Prodej komerční nemovitosti, Praha, Kolmanova, 139 m2

Kolmanova, Praha


14 420 000 Kč /za nemovitost
HYPOTÉKA od 64 449 Kč /měs.
Regionální dodavatelé v Praze

Stěhovací služby

Výkup a prodej starého nábytku

Popis

V místě, kde nová rezidenční čtvrť Modřanský cukrovar plynule navazuje na zavedenou rezidenční lokalitu Modřan, a v budoucnu zde vznikne více než 600 nových domovů, otevírá tento prostor skvělou příležitost oslovit rostoucí komunitu obyvatel.

Prostor je svou dispozicí a umístěním vhodný pro jógové studio, menší fitness, fyzioterapii, masáže, beauty služby, meditace či aktivity spojené s well‑being. Nabízí klidné zázemí s možností vytvořit příjemné prostředí pro relaxaci i pravidelný pohyb.

Komerční jednotka je ve výstavbě, a je prodávána ve stavu shell & core (kolaudační minimum), což umožňuje přizpůsobit interiér přesně podle potřeb budoucího provozu. Kolaudace Q1 2028.

Cena
14 420 000 Kč /za nemovitost Spočítat hypotéku
Aktualizováno
21. 1. 2026
Adresa
Kolmanova, Praha
ID
MOCU D - ND5P012 Rel
Stavba
Skeletová
Stav objektu
Ve výstavbě
Užitná plocha
139 m2
Podlahová plocha
144 m2
Třída energetické náročnosti
A - Mimořádně úsporná
Ukazatel energetické náročnosti
49 kWh/m2 za rok
Elektřina
120V, 230V
Odpad
Veřejná kanalizace
Telekomunikace
Internet
Voda
Vodovod
Nízkoenergetický

Máte zájem o tuto nemovitost?

Tímto, v souladu s nařízením Evropského parlamentu a Rady (EU) 2016/679, v platném znění, prohlašuji, že mi je alespoň 16 let a uděluji tak svůj souhlas se zpracováním zadaných údajů (jméno, telefon, e-mail, ip adresa) společnosti B3 Technology, s.r.o., IČ: 07330600, se sídlem Novostavby 126/23, 435 11 Lom (správce dat), za účelem předání dotazu z tohoto formuláře Vámi vybranému inzerentovi a zpětného kontaktování mé osoby. Osobní údaje bude správce zpracovávat manuálně i automaticky přímo prostřednictvím svých zaměstnanců. Informace předané tímto formulářem budou uloženy v databázi správce maximálně po dobu 10 let. Odvolání souhlasu s uložením a zpracováním poskytnutých dat lze e-mailem na info@realitymat.cz. V případě podezření na neoprávněné použití Vámi poskytnutých údajů máte právo předat podnět k šetření Úřadu pro ochranu osobních údajů. Více informací
Chystáte se prodat nemovitost?
Pomůžeme Vám!

Kontakt

Šárka Plechatá

Šárka Plechatá

Přihlášení k odběru

Nenechte si ujít nejnovější nabídky prodeje komerčních nemovitostí v Praze.

Podobné nabídky