Prodej bytu 2+1, Brno, Kartouzská, 79 m2

Kartouzská, Brno, Ponava


8 800 000 Kč /za nemovitost
HYPOTÉKA od 39 331 Kč /měs.
Regionální dodavatelé v Brně

Popis

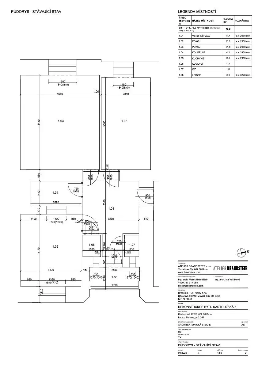
Nabízím k prodeji prostorný byt s balkonem a sklepem v 1. patře cihlového domu v klidné jednosměrné ulici Kartouzská v městské části Brno – Královo Pole.
Byt je v současné době dispozičně řešen jako 2+1 s komorou, samostatným WC, centrální vstupní halou a neprůchozími pokoji. Celková výměra bytu činí 79,5 m². Součástí bytu je balkon a sklep není započítáno do výměry bytu.
Výška stropů cca 3 metry dodává bytu mimořádnou vzdušnost a dostatek denního světla. Byt má nepopsatelnou atmosféru a klid, který je cítit ihned po vstupu a je dále umocněn orientací do tichého vnitrobloku byt je téměř součástí zahrady.
Dispozice bytu nabízí reálnou možnost úpravy na 3+KK, což z něj činí ideální volbu jak pro rodinné bydlení, tak pro dlouhodobou investici. Původní půdorys i návrh nové dispozice jsou k dispozici v příloze. Možnost přestavby rád osobně představím při prohlídce.
Byt má podíl na užívání společné zahrady ve vnitrobloku, která je téměř na dosah ruky z bytu. Zahrada nabízí ideální prostor pro odpočinek, relaxaci, posezení či letní grilování. Jednosměrná ulice zajišťuje klidné bydlení bez rušivého provozu.
Ve všech pokojích jsou nově repasované původní dřevěné parkety. Repasované jsou rovněž původní dřevěné dveře a zárubně včetně klik a zámků. Plastová okna prošla kompletním servisem. Vstupní dveře jsou bezpečnostní protipožární s vícebodovým zámkem. V komoře jsou připraveny vývody pro nové umístění kotle.
Královo Pole patří dlouhodobě mezi nejvyhledávanější a cenově rostoucí lokality Brna. Lokalita je oblíbená jak mezi investory, tak mezi rodinami díky klidnému charakteru, výborné dopravní dostupnosti, školám, školkám, zeleni a kompletní občanské vybavenosti. Stabilní poptávka a omezená nabídka cihlových bytů v této oblasti vytváří velmi dobrý potenciál dlouhodobého zhodnocení.
Velkou předností je okamžité napojení na velký městský okruh a rychlá dostupnost centra města MHD. V okolí se nachází menší obchody, kavárny, restaurace i obchodní centrum Královo Pole.
Byt je vhodný jak pro komfortní rodinné bydlení, tak jako dlouhodobá investice s potenciálem dalšího růstu hodnoty. Nový vlastník si jej může přetvořit dle vlastních představ a potřeb.
V současné době probíhá příprava pro kompletní rekonstrukci sklepů a zateplení stropů. Vše hrazeno z fondu oprav bez navýšení FO.
Pro více informací nebo domluvení prohlídky mě neváhejte kontaktovat.

Cena
8 800 000 Kč /za nemovitost Spočítat hypotéku
Aktualizováno
18. 1. 2026
Adresa
Kartouzská, Brno, Ponava
ID
N00051
Stavba
Cihlová
Stav objektu
Velmi dobrý
Patro
1. z 5
Lokalita objektu
Centrum obce
Vlastnictví
Osobní
Užitná plocha
79 m2
Podlahová plocha
79 m2
Třída energetické náročnosti
G - Mimořádně nehospodárná
Elektřina
230V
Plyn
Plynovod
Odpad
Veřejná kanalizace
Telekomunikace
Internet, Kabelová televize
Voda
Vodovod
Sklep
Lodžie

Máte zájem o tuto nemovitost?

Tímto, v souladu s nařízením Evropského parlamentu a Rady (EU) 2016/679, v platném znění, prohlašuji, že mi je alespoň 16 let a uděluji tak svůj souhlas se zpracováním zadaných údajů (jméno, telefon, e-mail, ip adresa) společnosti B3 Technology, s.r.o., IČ: 07330600, se sídlem Novostavby 126/23, 435 11 Lom (správce dat), za účelem předání dotazu z tohoto formuláře Vámi vybranému inzerentovi a zpětného kontaktování mé osoby. Osobní údaje bude správce zpracovávat manuálně i automaticky přímo prostřednictvím svých zaměstnanců. Informace předané tímto formulářem budou uloženy v databázi správce maximálně po dobu 10 let. Odvolání souhlasu s uložením a zpracováním poskytnutých dat lze e-mailem na info@realitymat.cz. V případě podezření na neoprávněné použití Vámi poskytnutých údajů máte právo předat podnět k šetření Úřadu pro ochranu osobních údajů. Více informací
Chystáte se prodat nemovitost?
Pomůžeme Vám!

Kontakt

Boris Roubec

Boris Roubec

Přihlášení k odběru

Nenechte si ujít nejnovější nabídky prodeje bytů 2+1 v Brně.

Podobné nabídky