Pronájem bytu 2+kk, Brno, Leitnerova, 65 m2

Leitnerova, Staré Brno


19 000 Kč /za měsíc
Získejte výhodnou HYPOTÉKU

(+ náklady, + provize RK, včetně právního servisu)


Regionální dodavatelé v Brně

Popis

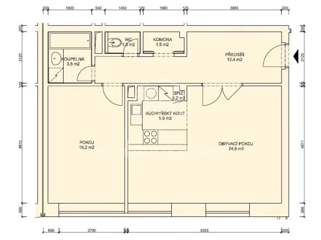
Svádíte každodenní boj o parkovací místo se sousedy v centru města? Už nemusíte. Sníte o bydlení v samotném centru Brna, ale zároveň máte rádi soukromí? Pak právě Vám je určen nový, velmi prostorný byt 2kk (65 m²) s garážovým stáním, umístěný ve 2. patře cihlového bytového domu s výtahem na ulici Leitnerova v Brně.

Dispozice: zádveří, chodba, samostatné WC, technická místnost, ložnice a kuchyň s prostorným obývacím pokojem.

Byt je zařízený – je zde kompletně vybavená kuchyňská linka (lednička s mrazákem, mikrovlnná trouba, trouba, varná deska, digestoř, myčka), jídelní stůl se 4 židlemi. V obývacím prostoru je konferenční stolek (sedací souprava chybí). Ložnice nabízí pohodlné dvojlůžko a šatní skříň. V zádveří je k dispozici šatní skříň, botník, zrcadlo a věšák. V koupelně nechybí vana se sprchou a pračka.

Byt se nabízí s garážovým stáním, tzv. parkování v zakladači (viz fotodokumentace). Ve vnitrobloku je velký dvůr – pěkná zahrada, která je využitelná společně s ostatními nájemníky.

Nájemné činí 19.000 Kč + zálohy na energie 5.000 Kč (pro 2 osoby), kde je zahrnuto: elektřina, vytápění, voda, správa domu a pojistné bytu. Televizi i internet si zařizuje nájemník sám na své náklady. Garážové stání je v ceně nájmu.

Je požadována vratná kauce ve výši jednoho měsíčního nájmu, provize je rovněž ve výši jednoho měsíčního nájmu + DPH.
Byt je volný od 1. 3. 2026.

Cena
19 000 Kč /za měsíc
Poznámka k ceně
+ náklady, + provize RK, včetně právního servisu
Aktualizováno
14. 1. 2026
Adresa
Leitnerova, Staré Brno
ID
00234
Stavba
Cihlová
Stav objektu
Novostavba
Patro
3. z 6
Vybaveno
Ano
Druh objektu
Rohový
Lokalita objektu
Centrum obce
Vlastnictví
Osobní
Užitná plocha
65 m2
Třída energetické náročnosti
G - Mimořádně nehospodárná
Výtah
Parkování

Máte zájem o tuto nemovitost?

Tímto, v souladu s nařízením Evropského parlamentu a Rady (EU) 2016/679, v platném znění, prohlašuji, že mi je alespoň 16 let a uděluji tak svůj souhlas se zpracováním zadaných údajů (jméno, telefon, e-mail, ip adresa) společnosti B3 Technology, s.r.o., IČ: 07330600, se sídlem Novostavby 126/23, 435 11 Lom (správce dat), za účelem předání dotazu z tohoto formuláře Vámi vybranému inzerentovi a zpětného kontaktování mé osoby. Osobní údaje bude správce zpracovávat manuálně i automaticky přímo prostřednictvím svých zaměstnanců. Informace předané tímto formulářem budou uloženy v databázi správce maximálně po dobu 10 let. Odvolání souhlasu s uložením a zpracováním poskytnutých dat lze e-mailem na info@realitymat.cz. V případě podezření na neoprávněné použití Vámi poskytnutých údajů máte právo předat podnět k šetření Úřadu pro ochranu osobních údajů. Více informací
Chystáte se prodat nemovitost?
Pomůžeme Vám!

Kontakt

Mgr. Renata Dundáčková

Mgr. Renata Dundáčková

Přihlášení k odběru

Nenechte si ujít nejnovější nabídky pronájmu bytů 2+kk v Brně.

Podobné nabídky