Prodej vily, Praha, Na pískách, 528 m2

Na pískách, Praha 6


Cena na vyžádání /za nemovitost
Získejte výhodnou HYPOTÉKU

(cena u makléře)


Regionální dodavatelé v Praze 6

Stěhovací služby

Výkup a prodej starého nábytku

Popis

Nabízíme k prodeji prvorepublikovou, vícegenerační, samostatnou vilu z 30.let na pozemku o velikosti 985 m2 v rezidenční čtvrti Prahy 6 – Hanspaulka
Celková užitná plocha domu je cca 528 m2.
Vila má jedno podzemní a 3 nadzemní podlaží.
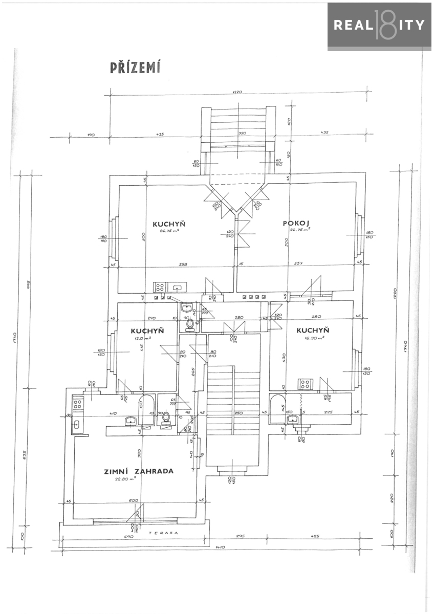
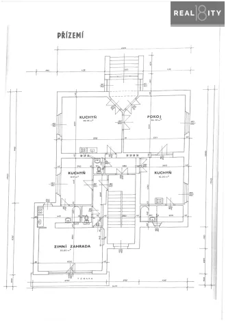
V přízemí domu se nachází vstupní hala se schodištěm, kuchyň, čtyři pokoje, koupelna, samostatná toaleta a komora.
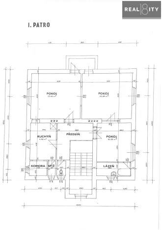
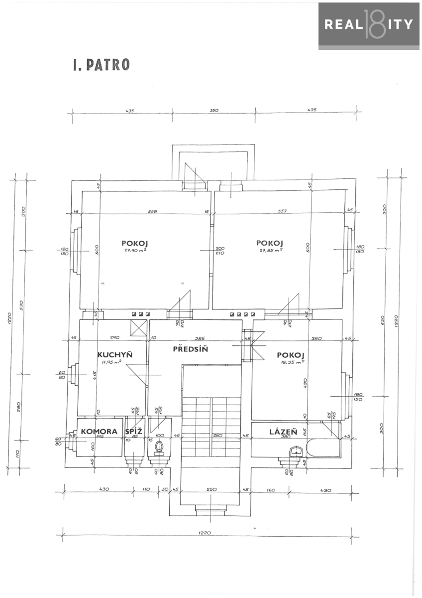
V 1. patře se nachází kuchyň, komora, 3 pokoje, zimní zahrada, koupelna, samostatná toaleta.
V podkroví jsou dva pokoje, koupelna s vanou, toaletou, vstup na půdu, kde lze vybudovat další obytný prostor.
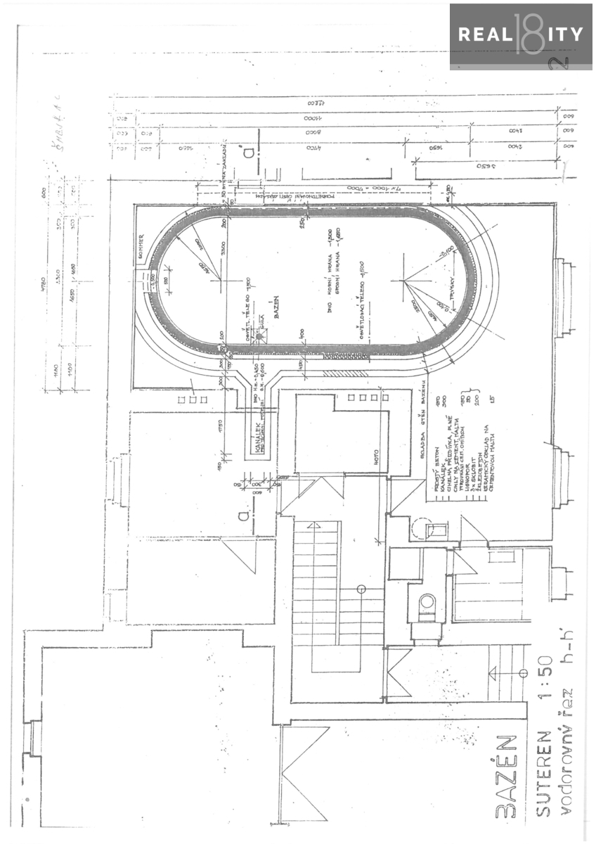
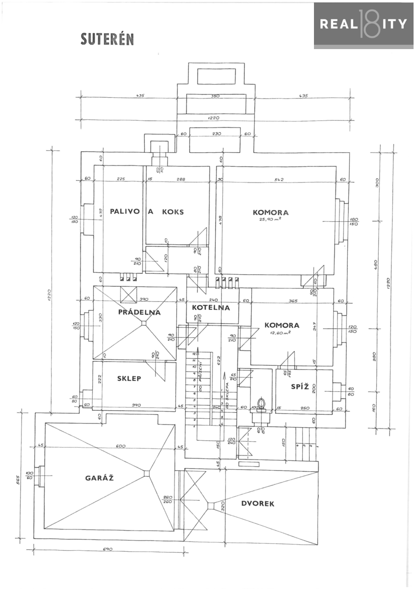
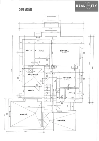
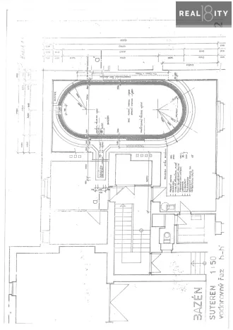
V 1. podzemním podlaží se nachází prádelna se sušárnou, kotelna, bazén, sauna, koupelna se sprchovým koutem a toaletou.
Podlahu pokrývají parkety, dlažba. Špaletová okna. Vytápění plynovým kotlem, ohřev vody bojlerem.
Garáž, další možnost parkování na zpevněném povrchu u domu.
Vila je z roku 1932 v původním, avšak v udržovaném stavu, má valbovou (zkosení ze všech 4 stran) střechu.
Vila má velký potenciál využití. Je vhodná pro bydlení i pro podnikání.
Výborné spojení autem i MHD do centra Prahy a na letiště, u domu autobusová zastávka Dyrinka.
V okolí jsou v docházkové vzdálenosti tenisové kurty, obchod, restaurace, park.
Pro rezidenty parkovaní zajištěno na modré zóně.
Dům byl postaven před r. 1947, PENB se nevyžaduje.
Výhradní zprostředkování koupě této nemovitosti vám zajistí klidný a bezstarostný průběh celé transakce.
V případě zájmu o prohlídku či jakýchkoliv dotazů týkající se koupě této nemovitosti nás neváhejte kontaktovat na uvedeném telefonním čísle či prostřednictvím emailu.

Cena
Cena na vyžádání Spočítat hypotéku
Poznámka k ceně
cena u makléře
Aktualizováno
1. 4. 2026
Adresa
Na pískách, Praha 6
ID
R321
Stavba
Cihlová
Stav objektu
Před rekonstrukcí
Vybaveno
Ne
Typ objektu
Patrový
Druh objektu
Samostatný
Lokalita objektu
Klidná část obce
Užitná plocha
528 m2
Zastavěná plocha
269 m2
Plocha pozemku
985 m2
Plocha zahrady
716 m2
Třída energetické náročnosti
G - Mimořádně nehospodárná
Plyn
Plynovod
Odpad
Veřejná kanalizace
Komunikace
Asfaltová
Voda
Vodovod
Garáž
Převod do OV

Máte zájem o tuto nemovitost?

Tímto, v souladu s nařízením Evropského parlamentu a Rady (EU) 2016/679, v platném znění, prohlašuji, že mi je alespoň 16 let a uděluji tak svůj souhlas se zpracováním zadaných údajů (jméno, telefon, e-mail, ip adresa) společnosti B3 Technology, s.r.o., IČ: 07330600, se sídlem Novostavby 126/23, 435 11 Lom (správce dat), za účelem předání dotazu z tohoto formuláře Vámi vybranému inzerentovi a zpětného kontaktování mé osoby. Osobní údaje bude správce zpracovávat manuálně i automaticky přímo prostřednictvím svých zaměstnanců. Informace předané tímto formulářem budou uloženy v databázi správce maximálně po dobu 10 let. Odvolání souhlasu s uložením a zpracováním poskytnutých dat lze e-mailem na info@realitymat.cz. V případě podezření na neoprávněné použití Vámi poskytnutých údajů máte právo předat podnět k šetření Úřadu pro ochranu osobních údajů. Více informací
Chystáte se prodat nemovitost?
Pomůžeme Vám!

Kontakt

Ing. Olga Nikitina

Ing. Olga Nikitina

Přihlášení k odběru

Nenechte si ujít nejnovější nabídky prodeje vil v Praze 6.

Podobné nabídky