Soccer reality

Pronájem skladu, Praha - Horní Počernice, Ve žlíbku, 382 m2 (ID: 2048392)

Ve žlíbku, Praha 9, Horní Počernice


22 000 Kč /za měsíc
Získejte výhodnou HYPOTÉKU

(+ služby areálu 1.910 Kč/měs)


Regionální dodavatelé v Praze 9

Stěhovací služby

Výkup a prodej starého nábytku

Popis

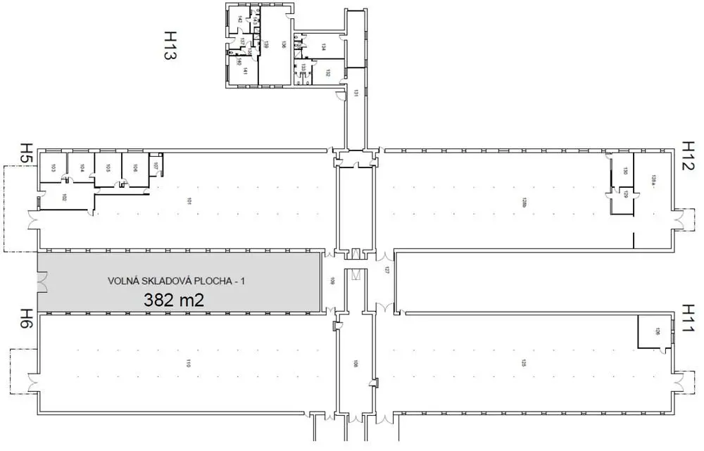
Nabízím k pronájmu venkovní skladovou plochu v komerčním areálu v Praze 9 - Horních Počernicích, ul. Ve Žlíbku. Areál se nachází na okraji Horních Počernic s výborným dopravním napojením na městský okruh a dálniční síť, zastávka MHD přímo před areálem. Přístup do areálu je 24 hod. denně, je zde nepřetržitá ostraha, kamerový systém a obchůzkový systém s GPS monitoringem. K dispozici je venkovní uzamčená plocha o ploše 382 m2 s dostatečným manipulačním prostorem a příjezdem pro kamiony. Měsíční poplatky za společné služby je 1.910 Kč. K dispozici ihned.

Cena
22 000 Kč /za měsíc
Poznámka k ceně
+ služby areálu 1.910 Kč/měs
Aktualizováno
13. 1. 2026
Adresa
Ve žlíbku, Praha 9, Horní Počernice
ID
81
Stavba
Cihlová
Stav objektu
Dobrý
Typ objektu
Přízemní
Užitná plocha
382 m2
Bezbarierový přístup

Máte zájem o tuto nemovitost?

Tímto, v souladu s nařízením Evropského parlamentu a Rady (EU) 2016/679, v platném znění, prohlašuji, že mi je alespoň 16 let a uděluji tak svůj souhlas se zpracováním zadaných údajů (jméno, telefon, e-mail, ip adresa) společnosti B3 Technology, s.r.o., IČ: 07330600, se sídlem Novostavby 126/23, 435 11 Lom (správce dat), za účelem předání dotazu z tohoto formuláře Vámi vybranému inzerentovi a zpětného kontaktování mé osoby. Osobní údaje bude správce zpracovávat manuálně i automaticky přímo prostřednictvím svých zaměstnanců. Informace předané tímto formulářem budou uloženy v databázi správce maximálně po dobu 10 let. Odvolání souhlasu s uložením a zpracováním poskytnutých dat lze e-mailem na info@realitymat.cz. V případě podezření na neoprávněné použití Vámi poskytnutých údajů máte právo předat podnět k šetření Úřadu pro ochranu osobních údajů. Více informací
Chystáte se prodat nemovitost?
Pomůžeme Vám!

Kontakt

Vanda Vlašánková

Vanda Vlašánková

Přihlášení k odběru

Nenechte si ujít nejnovější nabídky pronájmu skladů v Praze 9.

Podobné nabídky