Prodej bytu 3+kk, Jablonec nad Nisou, Krkonošská, 91 m2 (ID: 2047744)

Krkonošská, Jablonec nad Nisou, Kokonín


8 856 000 Kč /za nemovitost
HYPOTÉKA od 39 581 Kč /měs.
Regionální dodavatelé v Jablonci nad Nisou

Rekonstrukce

Úklidové služby

Popis

Byt připravený k nastěhování – kolaudace dokončena!

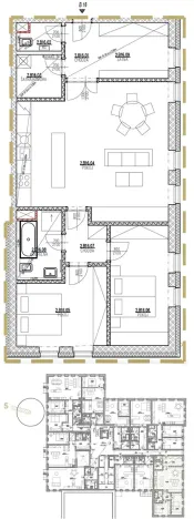
Nabízíme k prodeji velkorysý byt B16 o dispozici 3+kk a celkové výměře 96,5 m² dle NOZ (čistá užitná plocha 90,9 m²). Byt se nachází v 2. podlaží a je orientován převážně na jihozápad. Byt disponuje, mimo jiné, technickou místností a velkou předsíní s možností přepažení na další pokoj/pracovnu, samozřejmostí je i sklepní kóje o velikosti 2,1 m². Cena zahrnuje i parkovací stání – vše je uvedeno včetně DPH.

Byt je součástí rezidenčního projektu Bytový dům Sklárna, který vzniká v klidné části Jablonce nad Nisou – Kokoníně, v areálu bývalé sklárny obklopeném zelení. Projekt nabízí celkem 39 bytových jednotek – v novostavbě i zrekonstruované části bývalé huti. Uzavřený areál bude sloužit výhradně rezidentům a jejich návštěvám, součástí je i dětské hřiště a společné zelené plochy.

Všechny byty v projektu mají vysoký standard vybavení: kvalitní vinylové podlahy s akustickou podložkou, teplovodní podlahové vytápění, francouzská okna s izolačním trojsklem, moderní sanita značky Grohe, velkoformátové obklady v koupelnách atd.

Lokalita spojuje výhody klidného bydlení v přírodě s plnou občanskou vybaveností města Jablonce nad Nisou. V blízkosti se nachází Černostudniční hřeben, Bártlův vrch i Jizerské hory – ideální pro bydlení, sport a relaxaci po celý rok.

Více informací a kompletní nabídku bytů najdete na webových stránkách projektu – odkaz naleznete níže v sekci Kontakt. Byt prodává přímo developer – neplatíte žádnou provizi!

Cena
8 856 000 Kč /za nemovitost Spočítat hypotéku
Aktualizováno
12. 1. 2026
Adresa
Krkonošská, Jablonec nad Nisou, Kokonín
ID
353/17 (B16)
Stavba
Cihlová
Stav objektu
Novostavba
Patro
2.
Vlastnictví
Osobní
Užitná plocha
91 m2
Třída energetické náročnosti
B - Velmi úsporná
Sklep
Parkování

Máte zájem o tuto nemovitost?

Tímto, v souladu s nařízením Evropského parlamentu a Rady (EU) 2016/679, v platném znění, prohlašuji, že mi je alespoň 16 let a uděluji tak svůj souhlas se zpracováním zadaných údajů (jméno, telefon, e-mail, ip adresa) společnosti B3 Technology, s.r.o., IČ: 07330600, se sídlem Novostavby 126/23, 435 11 Lom (správce dat), za účelem předání dotazu z tohoto formuláře Vámi vybranému inzerentovi a zpětného kontaktování mé osoby. Osobní údaje bude správce zpracovávat manuálně i automaticky přímo prostřednictvím svých zaměstnanců. Informace předané tímto formulářem budou uloženy v databázi správce maximálně po dobu 10 let. Odvolání souhlasu s uložením a zpracováním poskytnutých dat lze e-mailem na info@realitymat.cz. V případě podezření na neoprávněné použití Vámi poskytnutých údajů máte právo předat podnět k šetření Úřadu pro ochranu osobních údajů. Více informací
Chystáte se prodat nemovitost?
Pomůžeme Vám!

Kontakt

Filip Štěpán

Filip Štěpán

Přihlášení k odběru

Nenechte si ujít nejnovější nabídky prodeje bytů 3+kk v Jablonci nad Nisou.

Podobné nabídky