Pronájem bytu 4+1, Teplice, Jiřího Wolkera, 125 m2

Jiřího Wolkera, Teplice


18 750 Kč /za měsíc
Získejte výhodnou HYPOTÉKU

(+ 500 za osobu voda, elektřina a plyn přepis)


Regionální dodavatelé v Teplicích

Okna a dveře

Rekonstrukce

Popis

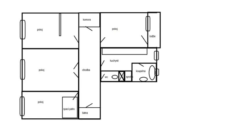
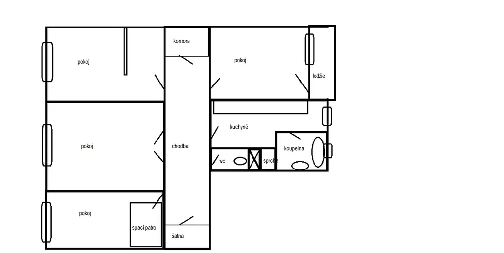
Nabízím dlouhodobý pronájem v prostorném čtyřpokojovém bytě s lodžií a šatnou.
Byt je v 1.patře menšího činžovního domu se zahrádkou na okraji Šanova.
Byt je bez nábytku, pouze kuchyňská linka se sporákem, nový plynový kondenzační kotel. v předsíni a 2 pokojích je oddělená šatna, v nejmenším pokoji spací patro.
Koupelna je vybavená vanou i sprchovým koutem, samostatné wc.
Za domem je zahrádka pro nájemníky, v suterénu samostatný prostorný sklep.
V době jsou pouze 4 byty s bezproblémovými nájemníky.
Volné začátkem února, bude bílá nová výmalba.
Podmínkou pronájmu je vyšší kauce, v ceně nejsou energie.

Cena
18 750 Kč /za měsíc
Poznámka k ceně
+ 500 za osobu voda, elektřina a plyn přepis
Aktualizováno
7. 1. 2026
Adresa
Jiřího Wolkera, Teplice
Stavba
Cihlová
Stav objektu
Dobrý
Patro
2. z 4
Vybaveno
Ne
Lokalita objektu
Klidná část obce
Vlastnictví
Osobní
Užitná plocha
125 m2
Plocha zahrady
100 m2
Třída energetické náročnosti
D - Méně úsporná
Elektřina
230V
Plyn
Plynovod
Odpad
Veřejná kanalizace
Komunikace
Asfaltová
Telekomunikace
Kabelové rozvody
Doprava
Vlak, Silnice, MHD, Autobus
Voda
Vodovod
Topné těleso
Radiátory
Zdroj topení
Plynový kondenzační kotel
Zdroj teplé vody
Plynový kondenzační kotel
Sklep
Lodžie
Výtah
Bezbarierový přístup

Máte zájem o tuto nemovitost?

Tímto, v souladu s nařízením Evropského parlamentu a Rady (EU) 2016/679, v platném znění, prohlašuji, že mi je alespoň 16 let a uděluji tak svůj souhlas se zpracováním zadaných údajů (jméno, telefon, e-mail, ip adresa) společnosti B3 Technology, s.r.o., IČ: 07330600, se sídlem Novostavby 126/23, 435 11 Lom (správce dat), za účelem předání dotazu z tohoto formuláře Vámi vybranému inzerentovi a zpětného kontaktování mé osoby. Osobní údaje bude správce zpracovávat manuálně i automaticky přímo prostřednictvím svých zaměstnanců. Informace předané tímto formulářem budou uloženy v databázi správce maximálně po dobu 10 let. Odvolání souhlasu s uložením a zpracováním poskytnutých dat lze e-mailem na info@realitymat.cz. V případě podezření na neoprávněné použití Vámi poskytnutých údajů máte právo předat podnět k šetření Úřadu pro ochranu osobních údajů. Více informací
Chystáte se prodat nemovitost?
Pomůžeme Vám!

Kontakt

Ing. Iva Fáborská

Ing. Iva Fáborská

Přihlášení k odběru

Nenechte si ujít nejnovější nabídky pronájmu bytů 4+1 v Teplicích.

Podobné nabídky