Prodej bytu 4+kk, Jihlava, Heidenheimská, 86 m2 (ID: 2042163)

Heidenheimská, Jihlava, Horní Kosov


6 948 000 Kč /za nemovitost
HYPOTÉKA od 31 053 Kč /měs.

(žádná provize)


Regionální dodavatelé v Jihlavě

Popis

Nabízíme ke koupi byt č. 1 o dispozici 4+kk a podlahové ploše 85,6 m2, s balkonem (8 m2). Byt se bude nacházet v 1. nadzemním podlaží bytového domu BD3, bude dokončen v závěru roku 2026. Výstavba BD3 je součástí úspěšného projektu Residence KASKÁDA na Horním Kosově v Jihlavě, který je zárukou pohodlného a kvalitního bydlení.
Standardem bytů budou vinylové podlahy a dveře s obložkovou zárubní. U obkladů a dlažby (v koupelně a na WC), podlah i dveří bude možno vybírat z několika odstínů a dekorů. V rámci klientských změn lze provádět v bytě úpravy příček/nenosných zdí, instalací, povrchových úprav i zařizovacích předmětů. Boční okna domu, kde se byt nachází, budou mít instalované předokenní žaluzie zdarma.
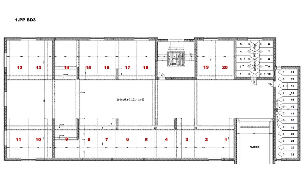
Bytový dům má 4 nadzemní a 1 podzemní podlaží. V nadzemních podlažích se nachází 23 bytových jednotek různých velikosti a kategorií 2+kk až 4+kk. V 1. NP bude kromě bytových jednotek umístěna také kolárna/kočárkárna, technická místnost a úklidová komora. V 1. PP bude 20 samostatných parkovacích stání určených pro osobní automobily (nejsou součástí ceny bytu) a dále zde budou sklepní kóje pro každou bytovou jednotku. Schodiště a výtahová kabina budou propojovat bytový dům od 1. PP do 4.NP. Bytový dům bude vybaven systémem ramp – bezbariérová rampa pro přístup do domu a rampa pro sjezd do garáže. Možnost parkování bude také u bytového domu (8 parkovacích míst).
Klidný provoz v této atraktivní lokalitě zajišťují kruhové objezdy, zpomalovací pásy i chodníky po obou stranách vozovky. Výhodná poloha nabízí možnost bezprostředního kontaktu s přírodou, pohodlné spojení v rámci MHD s celou Jihlavou, ale také rychlé dopravní napojení na dálnici D1.
Díky našemu obchodnímu partnerovi můžete získat hypotéku s úrokovou sazbou již od 3,99 % p.a.
Prohlídka identického bytu je možná po předchozí domluvě.

Cena
6 948 000 Kč /za nemovitost Spočítat hypotéku
Poznámka k ceně
žádná provize
Aktualizováno
9. 1. 2026
Adresa
Heidenheimská, Jihlava, Horní Kosov
Stavba
Cihlová
Stav objektu
Ve výstavbě
Patro
1. z 5
Vybaveno
Částečně
Lokalita objektu
Klidná část obce
Vlastnictví
Osobní
Užitná plocha
86 m2
Třída energetické náročnosti
A - Mimořádně úsporná
Ukazatel energetické náročnosti
52 kWh/m2 za rok
Odpad
Veřejná kanalizace
Topení
Podlahové
Komunikace
Asfaltová
Telekomunikace
Internet, Kabelové rozvody
Doprava
Silnice, MHD
Voda
Vodovod
Topné těleso
Podlahové vytápění
Balkon
Sklep
Výtah
Bezbarierový přístup
Parkování

Máte zájem o tuto nemovitost?

Tímto, v souladu s nařízením Evropského parlamentu a Rady (EU) 2016/679, v platném znění, prohlašuji, že mi je alespoň 16 let a uděluji tak svůj souhlas se zpracováním zadaných údajů (jméno, telefon, e-mail, ip adresa) společnosti B3 Technology, s.r.o., IČ: 07330600, se sídlem Novostavby 126/23, 435 11 Lom (správce dat), za účelem předání dotazu z tohoto formuláře Vámi vybranému inzerentovi a zpětného kontaktování mé osoby. Osobní údaje bude správce zpracovávat manuálně i automaticky přímo prostřednictvím svých zaměstnanců. Informace předané tímto formulářem budou uloženy v databázi správce maximálně po dobu 10 let. Odvolání souhlasu s uložením a zpracováním poskytnutých dat lze e-mailem na info@realitymat.cz. V případě podezření na neoprávněné použití Vámi poskytnutých údajů máte právo předat podnět k šetření Úřadu pro ochranu osobních údajů. Více informací
Chystáte se prodat nemovitost?
Pomůžeme Vám!

Kontakt

Pavlína Zábranská

Pavlína Zábranská

Přihlášení k odběru

Nenechte si ujít nejnovější nabídky prodeje bytů 4+kk v Jihlavě.

Podobné nabídky