Pronájem obchodního prostoru, Brno, Joštova, 78 m2 (ID: 2041326)

Joštova, Brno


65 000 Kč /za měsíc
Získejte výhodnou HYPOTÉKU
Regionální dodavatelé v Brně

Popis

Pronájem obchodních prostor v centru Brna – ul. Joštova

Nabízíme k pronájmu atraktivní obchodní prostory v prestižní a frekventované lokalitě na ulici Joštova, přímo v centru Brna. Prostory jsou vhodné zejména pro obchod či různé typy služeb (např. bankovní, finanční, advokátní, realitní, daňové aj.).
Prostory se nacházejí v přízemí budovy a disponují výkladci a přímým vstupem z ulice.

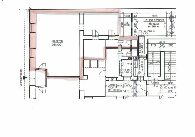
Dispozice a výměry prostor (celkem cca 78 m²):
• hlavní obchodní plocha: 52 m²
• sklad: 15 m²
• kuchyňka
• WC s předsíňkou

Vybavení a technické parametry:
• ústřední vytápění
• klimatizační jednotka
• samostatné měření energií
• průkaz energetické náročnosti budovy: PENB třídy G

Dostupnost a cena:
• prostory budou k dispozici od 1. 3. 2026
• nájemné: 65 000 Kč / měsíc + zálohy na energie a služby
• provize RK je ve výši 1 měsíčního nájmu

V případě zájmu rádi poskytneme další informace nebo domluvíme prohlídku.

Cena
65 000 Kč /za měsíc
Aktualizováno
5. 1. 2026
Adresa
Joštova, Brno
Stavba
Cihlová
Stav objektu
Velmi dobrý
Patro
1.
Vybaveno
Částečně
Lokalita objektu
Centrum obce
Užitná plocha
78 m2
Třída energetické náročnosti
G - Mimořádně nehospodárná
Elektřina
230V
Odpad
Veřejná kanalizace
Komunikace
Asfaltová
Telekomunikace
Internet
Doprava
MHD
Voda
Vodovod
Topné těleso
Radiátory
Zdroj topení
Centrální dálkové
Zdroj teplé vody
Průtokový ohřívač
Bezbarierový přístup

Máte zájem o tuto nemovitost?

Tímto, v souladu s nařízením Evropského parlamentu a Rady (EU) 2016/679, v platném znění, prohlašuji, že mi je alespoň 16 let a uděluji tak svůj souhlas se zpracováním zadaných údajů (jméno, telefon, e-mail, ip adresa) společnosti B3 Technology, s.r.o., IČ: 07330600, se sídlem Novostavby 126/23, 435 11 Lom (správce dat), za účelem předání dotazu z tohoto formuláře Vámi vybranému inzerentovi a zpětného kontaktování mé osoby. Osobní údaje bude správce zpracovávat manuálně i automaticky přímo prostřednictvím svých zaměstnanců. Informace předané tímto formulářem budou uloženy v databázi správce maximálně po dobu 10 let. Odvolání souhlasu s uložením a zpracováním poskytnutých dat lze e-mailem na info@realitymat.cz. V případě podezření na neoprávněné použití Vámi poskytnutých údajů máte právo předat podnět k šetření Úřadu pro ochranu osobních údajů. Více informací
Chystáte se prodat nemovitost?
Pomůžeme Vám!

Kontakt

Ing.Miloš Kocian

Ing.Miloš Kocian

Přihlášení k odběru

Nenechte si ujít nejnovější nabídky pronájmu obchodních prostor v Brně.

Podobné nabídky