Pronájem bytu 2+kk, Praha - Staré Město, Kozí, 39 m2 (ID: 2041048)

Kozí, Praha, Staré Město


27 500 Kč /za měsíc
Získejte výhodnou HYPOTÉKU

(Poplatky za služby a energie se hradí zvlášť)


Regionální dodavatelé v Praze 1

Stěhovací služby

Výkup a prodej starého nábytku

Popis

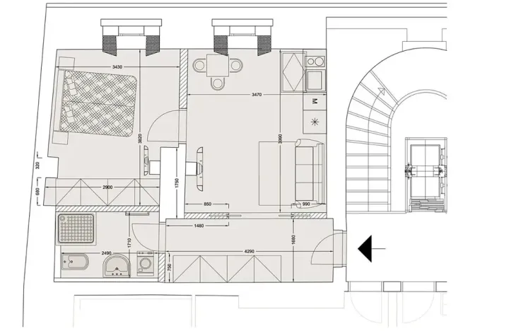
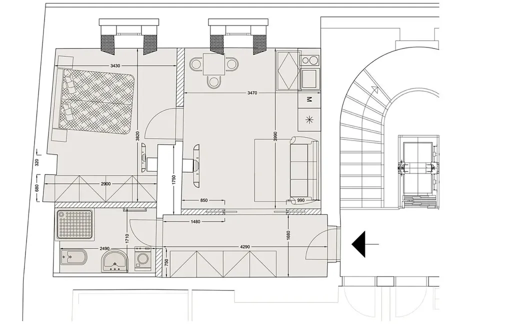
Designový mezonet 2+kk (1 ložnice, 1 koupelna), o celkové obytné ploše 40m2, je situován v 5. patře zrekonstruované rezidenční historické budovy s výtahem, v prestižní lokalitě Staré Město na Praze 1, nedaleko Staroměstského náměstí, v ulici Kozí.
Interiér klimatizovaného duplexu je zařízený IKEA nábytkem. Dispozičně byt nabízí vstupní chodbu (7,32 m2) , obývací pokoj ( 15,02 m2) s kuchyňským koutem vybaveným vestavěnými spotřebiči (sklokeramická varná deska, mikrovlnná trouba a lednice), dále ložnici (12,56m2) a stylovou koupelnu (4,5 m2) s umyvadlem, sprchovým koutem, toaletou a pračkou. Součástí vybavení bytu je také klimatizace, pračka.

Budova se nachází v historické lokalitě Staré Město, v bezprostřední blízkosti Staroměstského náměstí nebo kostela sv. Mikuláše. Tato lokalita nabízí mnoho restaurací, kaváren, designových obchodů a butiků, nedaleko se nachází také Havelské tržiště nebo Městská knihovna. Skvělá dostupnost MHD autobusové zastávky "Pařížská" a "Staroměstské náměstí" jsou vzdáleny jen minutu pěšky, stanice metra "Staroměstská" (linka A) pak 4 minuty chůze a tramvajová zastávka "Staroměstská" pouhých 5 minut chůze.

Zálohové poplatky za služby spojené s užíváním bytu: domovní služby, voda, vytápění a teplá voda jsou ve výší 3500, Kč/měs./osobu (pokud dvě osoby pak celkem 5.600, Kč/byt/měsíc. Elektrická energie se převádí na nájemce. Vratná kauce 2 nájmy. Provize RK.

Cena
27 500 Kč /za měsíc
Poznámka k ceně
Poplatky za služby a energie se hradí zvlášť
Aktualizováno
5. 1. 2026
Adresa
Kozí, Praha, Staré Město
ID
953303
Stavba
Smíšená
Stav objektu
Velmi dobrý
Patro
6.
Vybaveno
Částečně
Vlastnictví
Osobní
Užitná plocha
39 m2
Podlahová plocha
39 m2
Třída energetické náročnosti
E - Nehospodárná
Elektřina
230V
Plyn
Plynovod
Doprava
Silnice, MHD
Voda
Vodovod
Výtah

Máte zájem o tuto nemovitost?

Tímto, v souladu s nařízením Evropského parlamentu a Rady (EU) 2016/679, v platném znění, prohlašuji, že mi je alespoň 16 let a uděluji tak svůj souhlas se zpracováním zadaných údajů (jméno, telefon, e-mail, ip adresa) společnosti B3 Technology, s.r.o., IČ: 07330600, se sídlem Novostavby 126/23, 435 11 Lom (správce dat), za účelem předání dotazu z tohoto formuláře Vámi vybranému inzerentovi a zpětného kontaktování mé osoby. Osobní údaje bude správce zpracovávat manuálně i automaticky přímo prostřednictvím svých zaměstnanců. Informace předané tímto formulářem budou uloženy v databázi správce maximálně po dobu 10 let. Odvolání souhlasu s uložením a zpracováním poskytnutých dat lze e-mailem na info@realitymat.cz. V případě podezření na neoprávněné použití Vámi poskytnutých údajů máte právo předat podnět k šetření Úřadu pro ochranu osobních údajů. Více informací
Chystáte se prodat nemovitost?
Pomůžeme Vám!

Kontakt

Eva Cinculová

Eva Cinculová

Přihlášení k odběru

Nenechte si ujít nejnovější nabídky pronájmu bytů 2+kk v Praze 1.

Podobné nabídky