Pronájem bytu 2+kk, Praha - Staré Město, Na Perštýně, 73 m2 (ID: 2039390)

Na Perštýně, Praha, Staré Město


32 000 Kč /za měsíc
Získejte výhodnou HYPOTÉKU

(+ poplatky 1.250 Kč/os/měs, energie se přehlašují na nájemce, provize 1 nájem)


Regionální dodavatelé v Praze 1

Stěhovací služby

Výkup a prodej starého nábytku

Popis

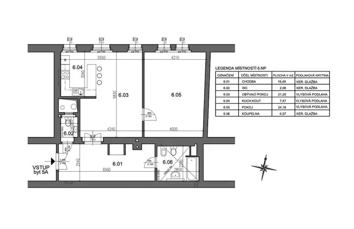
Nabízím k pronájmu malebný byt 2+kk v centru Prahy v ul. Na Perštýně, lukrativní poloha v blízkosti stanic metra a tramvajové zastávky, v blízkosti spousta obchodního domu Máj a Quadria.
Byt se nachází v 5.patře renovovaného secesního domu s výtahem. Byt má celkovou plochu 73 m2, kuch kout je plně vybaven spotřebiči. V bytě jsou vestavěné skříně, koupelna je s vanou. Byt je vhodný pro 1 osobu nebo pro pár.
Měsíční poplatky jsou 900 Kč/os, záloha na vodu je 350 Kč/os/měs, energie v bytě se přehlašují na nájemce. Majitelé požadují vratnou kauci 2 nájmy.
Byt bude k dispozici od února 2026, prohlídky jsou možné po dohodě předem.

Cena
32 000 Kč /za měsíc
Poznámka k ceně
+ poplatky 1.250 Kč/os/měs, energie se přehlašují na nájemce, provize 1 nájem
Aktualizováno
3. 1. 2026
Adresa
Na Perštýně, Praha, Staré Město
ID
75
Stavba
Cihlová
Stav objektu
Velmi dobrý
Patro
6. z 7
Vlastnictví
Osobní
Užitná plocha
73 m2
Podlahová plocha
73 m2
Bezbarierový přístup

Máte zájem o tuto nemovitost?

Tímto, v souladu s nařízením Evropského parlamentu a Rady (EU) 2016/679, v platném znění, prohlašuji, že mi je alespoň 16 let a uděluji tak svůj souhlas se zpracováním zadaných údajů (jméno, telefon, e-mail, ip adresa) společnosti B3 Technology, s.r.o., IČ: 07330600, se sídlem Novostavby 126/23, 435 11 Lom (správce dat), za účelem předání dotazu z tohoto formuláře Vámi vybranému inzerentovi a zpětného kontaktování mé osoby. Osobní údaje bude správce zpracovávat manuálně i automaticky přímo prostřednictvím svých zaměstnanců. Informace předané tímto formulářem budou uloženy v databázi správce maximálně po dobu 10 let. Odvolání souhlasu s uložením a zpracováním poskytnutých dat lze e-mailem na info@realitymat.cz. V případě podezření na neoprávněné použití Vámi poskytnutých údajů máte právo předat podnět k šetření Úřadu pro ochranu osobních údajů. Více informací
Chystáte se prodat nemovitost?
Pomůžeme Vám!