Prodej ubytování, Benecko, 635 m2 (ID: 2039116)

Benecko


Cena na vyžádání /za nemovitost
Získejte výhodnou HYPOTÉKU
Regionální dodavatelé v Benecku

Rekonstrukce

Úklidové služby

Popis

Benecko-Prodej pensionu s Wellness a barem, zázemím.3x byt. Wellness: vyhřívaný vnitřní bazén, 2x sauna / fin. + pára. Barem, hernou. Šatnou a lyžárnou.Kryté venkovní grilování. Dům se nachází v centrální části obce s vyhlídkou na Krkonoše a s přímým dostupem na lanovku Kejnos.
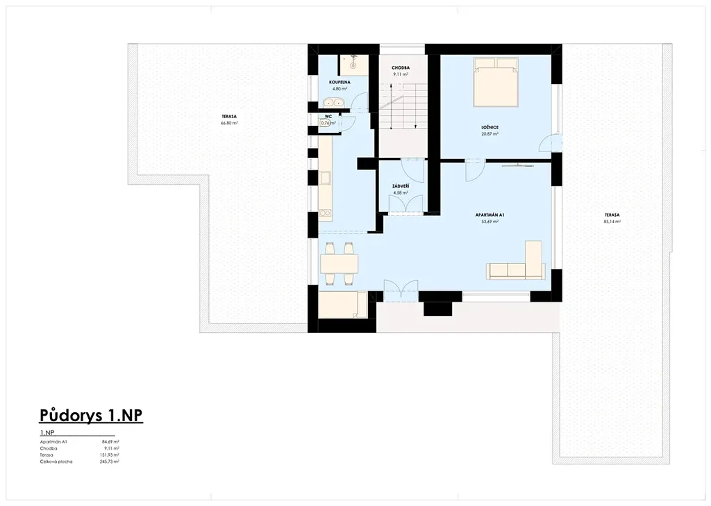
Tato luxusní nemovitost, která prošla v roce 2018 cekovou rekonstrukcí s přístavbou welness-bazénu,saun/finská a parní/,zázemí a teras. Tento dům zajistí vysoké požadavky budoucího nového majitele. Více info najdete v naší galerii včetně projektu půdorysů.
Vybavení je součástí prodeje. Příjezd po celý rok po asfaltové komunikaci. Vlasní parkovací stání 6x z toho 2x kryté. Na nemovitosti neváznou žádná břemena, či jiná zástavní práva. Těšíme se na osobní setkání, spolupráci přímo na Benecku spojenou s prohlídkou domu..

Cena
Cena na vyžádání Spočítat hypotéku
Aktualizováno
27. 1. 2026
Adresa
Benecko
ID
0002
Stavba
Cihlová
Stav objektu
Velmi dobrý
Užitná plocha
635 m2
Třída energetické náročnosti
E - Nehospodárná
Parkování

Máte zájem o tuto nemovitost?

Tímto, v souladu s nařízením Evropského parlamentu a Rady (EU) 2016/679, v platném znění, prohlašuji, že mi je alespoň 16 let a uděluji tak svůj souhlas se zpracováním zadaných údajů (jméno, telefon, e-mail, ip adresa) společnosti B3 Technology, s.r.o., IČ: 07330600, se sídlem Novostavby 126/23, 435 11 Lom (správce dat), za účelem předání dotazu z tohoto formuláře Vámi vybranému inzerentovi a zpětného kontaktování mé osoby. Osobní údaje bude správce zpracovávat manuálně i automaticky přímo prostřednictvím svých zaměstnanců. Informace předané tímto formulářem budou uloženy v databázi správce maximálně po dobu 10 let. Odvolání souhlasu s uložením a zpracováním poskytnutých dat lze e-mailem na info@realitymat.cz. V případě podezření na neoprávněné použití Vámi poskytnutých údajů máte právo předat podnět k šetření Úřadu pro ochranu osobních údajů. Více informací
Chystáte se prodat nemovitost?
Pomůžeme Vám!

Kontakt

Miroslav Šafář

Miroslav Šafář

Přihlášení k odběru

Nenechte si ujít nejnovější nabídky prodeje ubytování v Benecku.

Podobné nabídky