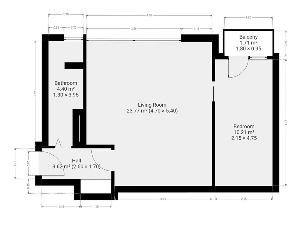
Pronájem bytu 2+kk, Praha - Holešovice, U staré plynárny, 46 m2

U staré plynárny, Holešovice - Praha 7


17 500 Kč /za měsíc
Získejte výhodnou HYPOTÉKU

(vratná jistota, náklady na bydlení 3968 Kč, poplatek za podnájem)


Regionální dodavatelé v Praze 7

Stěhovací služby

Výkup a prodej starého nábytku

Popis

K dlouhodobému podnájmu nabízíme krásný byt o dispozici 2+kk v oblíbené lokalitě Praha 7 - Holešovice. Byt o celkové výměře 46 m2 se nachází v nejvyšším, 5. patře cihlového domu bez výtahu. K bytu patří i balkon.

Byt se nabízí částečně vybavený. Kuchyně disponuje lednicí s mrazákem, elektrickou troubou s plynovou varnou deskou, mikrovlnnou troubou a digestoří. Obývací část je zařízena pohovkou, konferenčním stolem a obývací stěnou. Součástí ložnice je postel a 2 šatní skříně. V koupelně je vana, umyvadlo, koupelnová skříňka, pračka a WC. V předsíni je vestavěná skříň.

V okolí domu najdeme restaurace a kavárny, supermarkety Albert, Penny Market a Billa, polikliniku s lékárnou, poštu, holešovickou tržnici, městskou knihovnu, multifunkční prostor VNITROBLOCK, hudební klub Cross Club, Centrum současného umění DOX, divadlo La Fabrika, městskou zeleň (Tamirův park, Park U Vody, Ladislavův park) atd. Pár minut chůze od domu je vzdálena tramvajová zastávka Ortenovo náměstí a v docházkové vzdálenosti je stanice metra C - Nádraží Holešovice a vlaková stanice Praha-Holešovice.

Byt je volný k nastěhování ihned.

Energetická třída: G (průkaz nedodán).

Cena
17 500 Kč /za měsíc
Poznámka k ceně
vratná jistota, náklady na bydlení 3968 Kč, poplatek za podnájem
Aktualizováno
1. 1. 2026
Adresa
U staré plynárny, Holešovice - Praha 7
ID
N5913
Stavba
Cihlová
Stav objektu
Velmi dobrý
Patro
6. z 6
Vybaveno
Částečně
Typ objektu
Patrový
Lokalita objektu
Klidná část obce
Vlastnictví
Osobní
Užitná plocha
46 m2
Podlahová plocha
46 m2
Třída energetické náročnosti
G - Mimořádně nehospodárná
Elektřina
230V
Plyn
Plynovod
Topení
Ústřední plynové
Doprava
Vlak, Dálnice, Silnice, MHD, Autobus
Voda
Vodovod
Balkon
Výtah

Máte zájem o tuto nemovitost?

Tímto, v souladu s nařízením Evropského parlamentu a Rady (EU) 2016/679, v platném znění, prohlašuji, že mi je alespoň 16 let a uděluji tak svůj souhlas se zpracováním zadaných údajů (jméno, telefon, e-mail, ip adresa) společnosti B3 Technology, s.r.o., IČ: 07330600, se sídlem Novostavby 126/23, 435 11 Lom (správce dat), za účelem předání dotazu z tohoto formuláře Vámi vybranému inzerentovi a zpětného kontaktování mé osoby. Osobní údaje bude správce zpracovávat manuálně i automaticky přímo prostřednictvím svých zaměstnanců. Informace předané tímto formulářem budou uloženy v databázi správce maximálně po dobu 10 let. Odvolání souhlasu s uložením a zpracováním poskytnutých dat lze e-mailem na info@realitymat.cz. V případě podezření na neoprávněné použití Vámi poskytnutých údajů máte právo předat podnět k šetření Úřadu pro ochranu osobních údajů. Více informací
Chystáte se prodat nemovitost?
Pomůžeme Vám!

Kontakt

Miloslava Kačerová

Miloslava Kačerová

Přihlášení k odběru

Nenechte si ujít nejnovější nabídky pronájmu bytů 2+kk v Praze 7.

Podobné nabídky