Pronájem výrobních prostor, Šebrov-Kateřina, 243 m2

Šebrov-Kateřina


25 000 Kč /za měsíc
Získejte výhodnou HYPOTÉKU

(+ energie, bez DPH)


Regionální dodavatelé v Šebrově

Popis

Ve výhradním zastoupení nabízím k pronájmu komerční prostory pro výrobu a skladování s kancelářemi nacházející se
na adrese Šebrov č. p. 21, okres Blansko. Velmi dobrá dopravní dostupnost, vzdálenost obce od Brna je 13 km,

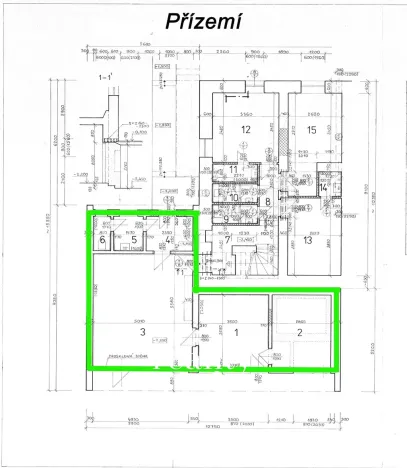
Předmětem pronájmu jsou prostory vyznačené v půdorysech, neoznačené jsou prostory společné (šatny, sprchy, WC,
kuchyňka, chodby), případně prostory užívané majitelem: - dílny v přízemí, k pronájmu místnosti 1,2,3,5,6 - 55,3 m2,
společné prostory - dílna v prvním patře, k pronájmu místnost 4 - 68,4 m2.společné prostory místnost 5 a 6 je užívána
majitelem. Přístup pro zásobování do prostor je z nákladové rampy. - dílna ve druhém patře 74,1 m2, - kanceláře ve
druhém patře, k pronájmu místnosti 3,4,5 - 45 m2 - ostatní jsou společné prostory.
Nájemní smlouvu lze uzavřít jak na dobu neurčitou, tak na dobu určitou. Majitel požaduje složení jistoty ve ve výši jednoho
měsíčního nájmu.

Měsíční záloha na energie spojené s užíváním pronajatých prostor je celkem 17.442,- Kč.
internet - 242,-Kč
plyn - 10.000,-Kč
elektřina - 7000,-Kč
vodné+ stočné - 200,-Kč

PENB nebyl dodán proto uvádíme hodnotu G.

V případě zájmu o prohlídku mě neváhejte kontaktovat a domluvit si osobní prohlídku.

Cena
25 000 Kč /za měsíc
Poznámka k ceně
+ energie, bez DPH
Aktualizováno
31. 12. 2025
Adresa
Šebrov-Kateřina
ID
00806
Stavba
Cihlová
Stav objektu
Dobrý
Vybaveno
Částečně
Lokalita objektu
Centrum obce
Užitná plocha
243 m2
Třída energetické náročnosti
G - Mimořádně nehospodárná
Elektřina
230V
Plyn
Plynovod
Odpad
Veřejná kanalizace
Doprava
Silnice, Autobus
Voda
Vodovod
Topné těleso
Radiátory
Zdroj topení
Plynový kotel
Zdroj teplé vody
Plynový kotel
Výtah

Máte zájem o tuto nemovitost?

Tímto, v souladu s nařízením Evropského parlamentu a Rady (EU) 2016/679, v platném znění, prohlašuji, že mi je alespoň 16 let a uděluji tak svůj souhlas se zpracováním zadaných údajů (jméno, telefon, e-mail, ip adresa) společnosti B3 Technology, s.r.o., IČ: 07330600, se sídlem Novostavby 126/23, 435 11 Lom (správce dat), za účelem předání dotazu z tohoto formuláře Vámi vybranému inzerentovi a zpětného kontaktování mé osoby. Osobní údaje bude správce zpracovávat manuálně i automaticky přímo prostřednictvím svých zaměstnanců. Informace předané tímto formulářem budou uloženy v databázi správce maximálně po dobu 10 let. Odvolání souhlasu s uložením a zpracováním poskytnutých dat lze e-mailem na info@realitymat.cz. V případě podezření na neoprávněné použití Vámi poskytnutých údajů máte právo předat podnět k šetření Úřadu pro ochranu osobních údajů. Více informací
Chystáte se prodat nemovitost?
Pomůžeme Vám!

Kontakt

Pavel Vlček

Pavel Vlček

Přihlášení k odběru

Nenechte si ujít nejnovější nabídky pronájmu výrobních prostor v Šebrově.