Prodej výrobních prostor, Svoboda nad Úpou, Horská, 1819 m2

Horská, Svoboda nad Úpou


26 250 000 Kč
HYPOTÉKA od 117 322 Kč /měs.
Regionální dodavatelé v Svobodě nad Úpou

Popis

Místo, kde dává development smysl

V atraktivní části Krkonoš nabízíme ke koupi komerční objekt určený ke kompletní rekonstrukci a přestavbě na bytový nebo apartmánový projekt. Lokalita dlouhodobě patří mezi vyhledávané destinace jak pro vlastní bydlení, tak pro investice a rekreační využití.

Majitelka nemovitosti garantuje vydání stavebního povolení – záměr je předjednán s úřady, dotčenými orgány i sousedy, což výrazně snižuje developerské riziko a zkracuje čas přípravy projektu.

Stávající stav nemovitosti
Budova původně sloužila jako výrobní a skladovací objekt.
V současnosti je pravidelně udržovaná, vytápěná a zabezpečená, ve dobrém technickém stavu odpovídajícím stáří stavby. Objekt je připraven k převzetí a dalším krokům developerského záměru.

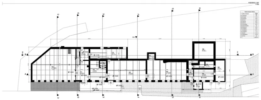
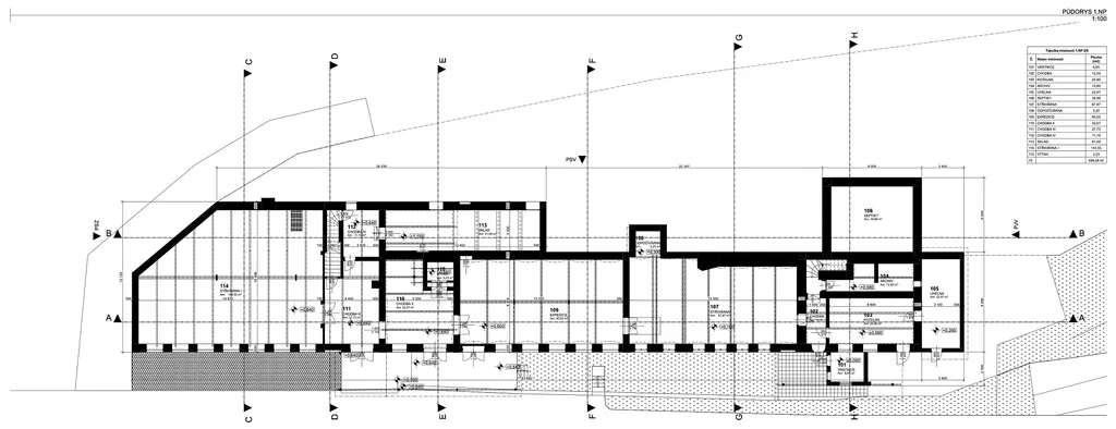
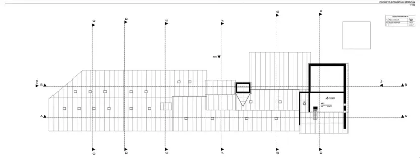
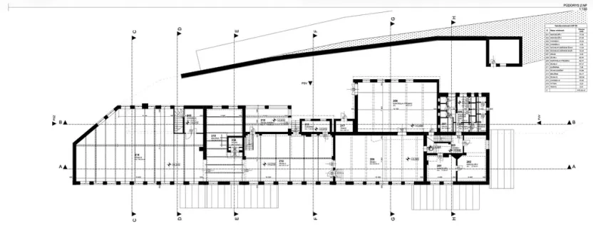
Plánovaný developerský potenciál
30 bytových jednotek o celkové užitné ploše cca 2 098 m²
3 ateliéry o ploše cca 153 m²
parkování:
10 stání v garážích
6 krytých stání
22 venkovních stání

Projekt je vhodný jak pro rozprodej jednotek, tak pro krátkodobé ubytování nebo kombinaci obou strategií.

Lokalita, která funguje
Svoboda nad Úpou je stabilní horské město s kompletní občanskou vybaveností – obchody, restaurace, školy, školky, zdravotní služby i sportovní infrastruktura.
Krkonoše – celoroční turistická oblast
3 minuty autem k nejbližšímu lyžařskému areálu
pěší turistika, cyklostezky, zimní sporty
dobrá dostupnost do okolních horských středisek
Díky kombinaci vybavenosti města a rekreačního potenciálu je lokalita atraktivní pro trvalé bydlení i investiční využití.

Ekonomický potenciál projektu (orientační)
očekávané náklady na rekonstrukci včetně nástavby: cca 90 mil. Kč
očekávané prodejní ceny jednotek: 90–100 tis. Kč / m²
výrazný potenciál zhodnocení po vydání stavebního povolení
Projekt je vhodný také pro investiční nákup s následným prodejem po vydání SP.

Pro koho je nabídka ideální
developer hledající projekt v Krkonoších
investor do rekreačních a apartmánových nemovitostí
investiční skupina s dlouhodobou strategií

Jedná se o zajímavou investiční příležitost v jedné z nejžádanějších horských lokalit v České republice, s garantovaným developerským záměrem a výrazným potenciálem dalšího růstu hodnoty.

V případě zájmu mě neváhejte kontaktovat, rád s vámi projekt osobně projdu a poskytnu doplňující informace.

Cena
26 250 000 Kč Spočítat hypotéku
Aktualizováno
23. 12. 2025
Adresa
Horská, Svoboda nad Úpou
ID
014
Stavba
Skeletová
Stav objektu
Před rekonstrukcí
Vybaveno
Ne
Lokalita objektu
Klidná část obce
Vlastnictví
Osobní
Užitná plocha
1819 m2
Plocha pozemku
1307 m2
Třída energetické náročnosti
G - Mimořádně nehospodárná

Máte zájem o tuto nemovitost?

Tímto, v souladu s nařízením Evropského parlamentu a Rady (EU) 2016/679, v platném znění, prohlašuji, že mi je alespoň 16 let a uděluji tak svůj souhlas se zpracováním zadaných údajů (jméno, telefon, e-mail, ip adresa) společnosti B3 Technology, s.r.o., IČ: 07330600, se sídlem Novostavby 126/23, 435 11 Lom (správce dat), za účelem předání dotazu z tohoto formuláře Vámi vybranému inzerentovi a zpětného kontaktování mé osoby. Osobní údaje bude správce zpracovávat manuálně i automaticky přímo prostřednictvím svých zaměstnanců. Informace předané tímto formulářem budou uloženy v databázi správce maximálně po dobu 10 let. Odvolání souhlasu s uložením a zpracováním poskytnutých dat lze e-mailem na info@realitymat.cz. V případě podezření na neoprávněné použití Vámi poskytnutých údajů máte právo předat podnět k šetření Úřadu pro ochranu osobních údajů. Více informací
Chystáte se prodat nemovitost?
Pomůžeme Vám!

Kontakt

Rentabil Estate s.r.o.

Rentabil Estate s.r.o.

Přihlášení k odběru

Nenechte si ujít nejnovější nabídky prodeje výrobních prostor v Svobodě nad Úpou.

Podobné nabídky