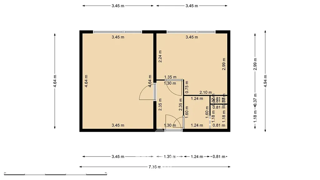
Prodej bytu 1+1, Jihlava, Královský vršek, 32 m2

Královský vršek, Jihlava


Cena na vyžádání /za nemovitost
Získejte výhodnou HYPOTÉKU

(volejte makléři)


Regionální dodavatelé v Jihlavě

Popis

Prodej bytu 1+1, 32 m² – Královský vršek, Jihlava

Nabízím k prodeji byt 1+1 o podlahové ploše 32 m², který se nachází v původním stavu a je určený ke kompletní rekonstrukci. Byt má umakartové jádro, dálkové vytápění, plyn a elektřinu u Innogy. Nízké měsíční náklady – poplatky do ASK 1.821 Kč ( teplo, voda, správa), elektřina 750 Kč, plyn 250 Kč

Výhody a potenciál bytu:
• možnost vytvořit si interiér podle vlastních představ
• nízké měsíční náklady
• vhodné i jako investice

Lokalita – vše na dosah:
Byt se nachází v žádané části Královského Vrchu s kompletní občanskou vybaveností v pěším dosahu: škola, školka, obchody, cyklostezky, zastávka MHD, zeleň a dětská hřiště.

V případě zájmu o financování pomohu i se zajištěním hypotečního úvěru.

Cena
Cena na vyžádání Spočítat hypotéku
Poznámka k ceně
volejte makléři
Aktualizováno
18. 12. 2025
Adresa
Královský vršek, Jihlava
ID
00834
Stavba
Panelová
Stav objektu
Před rekonstrukcí
Patro
1.
Vlastnictví
Osobní
Užitná plocha
32 m2
Třída energetické náročnosti
G - Mimořádně nehospodárná
Elektřina
230V
Plyn
Plynovod
Odpad
Veřejná kanalizace
Komunikace
Asfaltová
Doprava
Vlak, Dálnice, Silnice, MHD, Autobus
Voda
Vodovod
Topné těleso
Radiátory
Zdroj topení
Centrální dálkové
Zdroj teplé vody
Centrální dálkový ohřev
Sklep
Parkování

Máte zájem o tuto nemovitost?

Tímto, v souladu s nařízením Evropského parlamentu a Rady (EU) 2016/679, v platném znění, prohlašuji, že mi je alespoň 16 let a uděluji tak svůj souhlas se zpracováním zadaných údajů (jméno, telefon, e-mail, ip adresa) společnosti B3 Technology, s.r.o., IČ: 07330600, se sídlem Novostavby 126/23, 435 11 Lom (správce dat), za účelem předání dotazu z tohoto formuláře Vámi vybranému inzerentovi a zpětného kontaktování mé osoby. Osobní údaje bude správce zpracovávat manuálně i automaticky přímo prostřednictvím svých zaměstnanců. Informace předané tímto formulářem budou uloženy v databázi správce maximálně po dobu 10 let. Odvolání souhlasu s uložením a zpracováním poskytnutých dat lze e-mailem na info@realitymat.cz. V případě podezření na neoprávněné použití Vámi poskytnutých údajů máte právo předat podnět k šetření Úřadu pro ochranu osobních údajů. Více informací
Chystáte se prodat nemovitost?
Pomůžeme Vám!

Kontakt

Ing. Pavla Anna Doležalová, MSc.

Ing. Pavla Anna Doležalová, MSc.

Přihlášení k odběru

Nenechte si ujít nejnovější nabídky prodeje bytů 1+1 v Jihlavě.

Podobné nabídky