Prodej bytu 1+kk, Praha - Braník, Na vinohradu, 21 m2

Na vinohradu, Praha 4


3 880 000 Kč /za nemovitost
HYPOTÉKA od 17 341 Kč /měs.
Regionální dodavatelé v Praze 4

Stěhovací služby

Výkup a prodej starého nábytku

Popis

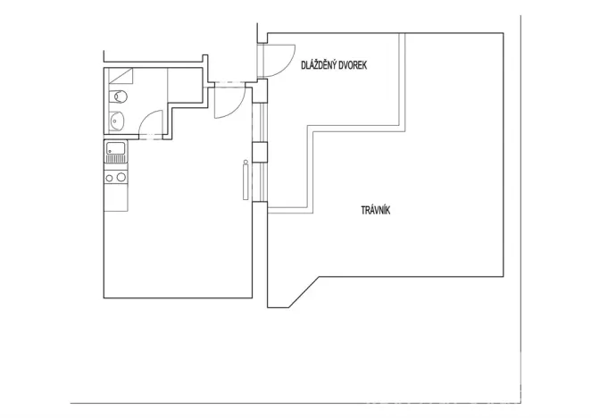
Nabízíme k prodeji jednotku, dispozice 1+kk (na LV je nemovitost vedená jako jiný nebytový prostor), plocha 20,9m2, je umístěný v podlaží 1 udržovaného bytového domu v oblíbené lokalitě Praha 4 – Braník, ulice Na Vinohradu.
Prostor je s kuchyňským koutem (kuchyňská linka, el. dvojvařič, lednice), koupelna se sprchovým koutem a toaletou, provedená v čistém a moderním stylu. Na podlahách je dlažba, plovoucí podlaha. Bezpečnostní dveře, internetové připojení, okna jsou orientována do klidného vnitrobloku, který je chráněný bez přístupu z ulice. Prostor je dobře dispozičně využitelný a díky světlým podlahám a neutrálním tónům působí vzdušně a příjemně.
Dům je ve velmi dobrém technickém stavu, s upravenými společnými prostory. Vstup do objektu je zabezpečen. Prostor je vhodný jak pro vlastní využití (pracovna, ateliér, bydlení), tak i jako investiční příležitost k pronájmu.
Lokalita Braník patří mezi vyhledávané části Prahy díky kombinaci klidného bydlení, zeleně a výborné dostupnosti do centra města. V bezprostředním okolí se nachází kompletní občanská vybavenost – obchody, restaurace, kavárny, sportovní areály, cyklostezky podél Vltavy i zastávky MHD. Rychlé spojení do centra Prahy zajišťují tramvajové a autobusové linky.
Pro více informací nebo domluvení prohlídky nás neváhejte kontaktovat.

Cena
3 880 000 Kč /za nemovitost Spočítat hypotéku
Aktualizováno
17. 12. 2025
Adresa
Na vinohradu, Praha 4
ID
972248
Stavba
Cihlová
Stav objektu
Dobrý
Patro
1. z 6
Vlastnictví
Osobní
Užitná plocha
21 m2
Podlahová plocha
21 m2
Třída energetické náročnosti
G - Mimořádně nehospodárná
Elektřina
230V
Odpad
Veřejná kanalizace
Topení
Ústřední dálkové
Doprava
MHD
Voda
Vodovod
Výtah

Máte zájem o tuto nemovitost?

Tímto, v souladu s nařízením Evropského parlamentu a Rady (EU) 2016/679, v platném znění, prohlašuji, že mi je alespoň 16 let a uděluji tak svůj souhlas se zpracováním zadaných údajů (jméno, telefon, e-mail, ip adresa) společnosti B3 Technology, s.r.o., IČ: 07330600, se sídlem Novostavby 126/23, 435 11 Lom (správce dat), za účelem předání dotazu z tohoto formuláře Vámi vybranému inzerentovi a zpětného kontaktování mé osoby. Osobní údaje bude správce zpracovávat manuálně i automaticky přímo prostřednictvím svých zaměstnanců. Informace předané tímto formulářem budou uloženy v databázi správce maximálně po dobu 10 let. Odvolání souhlasu s uložením a zpracováním poskytnutých dat lze e-mailem na info@realitymat.cz. V případě podezření na neoprávněné použití Vámi poskytnutých údajů máte právo předat podnět k šetření Úřadu pro ochranu osobních údajů. Více informací
Chystáte se prodat nemovitost?
Pomůžeme Vám!

Kontakt

Jan Bahorec

Jan Bahorec

Přihlášení k odběru

Nenechte si ujít nejnovější nabídky prodeje bytů 1+kk v Praze 4.

Podobné nabídky