Pronájem obchodního prostoru, Frýdlant nad Ostravicí, Hlavní, 254 m2

Hlavní, Frýdlant nad Ostravicí


50 800 Kč /za měsíc
Získejte výhodnou HYPOTÉKU
Regionální dodavatelé v Frýdlantu nad Ostravicí

Popis

Pronájem zavedeného komerčního prostoru s výlohou

Atraktivní prostor na frekventované ulici

Nabízíme k pronájmu světlý a prostorný obchodní / provozní prostor v atraktivní lokalitě Frýdlantu (č.p. 80) s možností okamžitého využití.
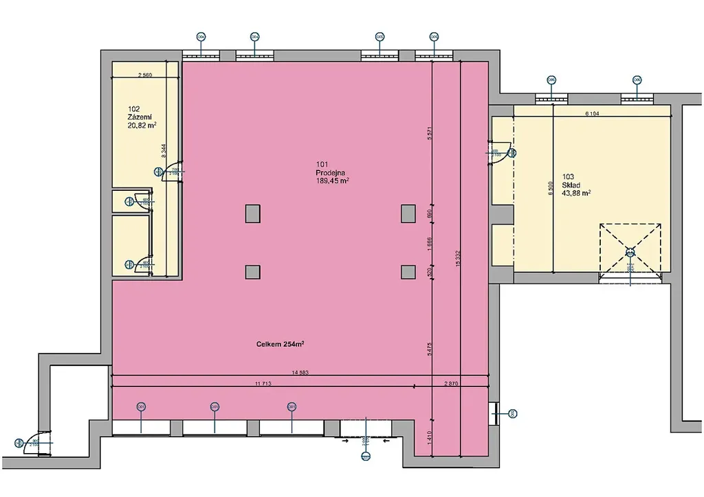
Celková výměra činí 254 m², z toho cca 44 m² sklad a cca 21 m² zázemí.

Díky výkladu přímo do ulice nabízí prostor výbornou viditelnost a přímý kontakt s chodícím i projíždějícím provozem.
To z něj činí ideální místo pro prodejnu, kavárnu, specializovaný obchod, showroom nebo klientsky orientované služby.

Dispozice a využití prostoru

Prostor má praktické a přehledné uspořádání s jasně čitelnou prodejní plochou, kterou lze snadno členit podle potřeb konkrétního provozu.
Interiér umožňuje flexibilní přizpůsobení vlastním požadavkům a konceptu podnikání.
Výhodou je také dobré napojení na místní dopravní síť a blízkost dalších provozoven a služeb.

Klíčové výhody
Výklad přímo do ulice a vysoká viditelnost
Přímý kontakt s kolemjdoucími i projíždějícími – ideální pro retail a služby typu walk-in
Flexibilní dispozice a možnost úprav podle potřeb nájemce
Skladové a provozní zázemí součástí prostoru
Dobrá dostupnost; parkování je možné na veřejném parkovišti přímo naproti prodejně
Historie zavedené prodejny – prostor byl dlouhodobě využíván jako drogerie TETA, což potvrzuje jeho vhodnost pro retail a stabilní zákaznický provoz
Pro koho je prostor vhodný

Prostor je vhodnou příležitostí pro podnikatele, kteří hledají viditelné a ověřené komerční místo k pronájmu.
Díky své velikosti a dispozici nemusí sloužit výhradně jako klasická prodejna – nabízí se také využití pro služby, showroom, klientské centrum
nebo kombinaci prodeje a firemního zázemí.

Další informace (nájemné, energie, podmínky pronájmu) budou sděleny na vyžádání. Neváhejte se ozvat a domluvit si osobní prohlídku prostoru.

Cena
50 800 Kč /za měsíc
Aktualizováno
16. 12. 2025
Adresa
Hlavní, Frýdlant nad Ostravicí
ID
101 Frýdlant
Stavba
Cihlová
Stav objektu
Dobrý
Užitná plocha
254 m2

Máte zájem o tuto nemovitost?

Tímto, v souladu s nařízením Evropského parlamentu a Rady (EU) 2016/679, v platném znění, prohlašuji, že mi je alespoň 16 let a uděluji tak svůj souhlas se zpracováním zadaných údajů (jméno, telefon, e-mail, ip adresa) společnosti B3 Technology, s.r.o., IČ: 07330600, se sídlem Novostavby 126/23, 435 11 Lom (správce dat), za účelem předání dotazu z tohoto formuláře Vámi vybranému inzerentovi a zpětného kontaktování mé osoby. Osobní údaje bude správce zpracovávat manuálně i automaticky přímo prostřednictvím svých zaměstnanců. Informace předané tímto formulářem budou uloženy v databázi správce maximálně po dobu 10 let. Odvolání souhlasu s uložením a zpracováním poskytnutých dat lze e-mailem na info@realitymat.cz. V případě podezření na neoprávněné použití Vámi poskytnutých údajů máte právo předat podnět k šetření Úřadu pro ochranu osobních údajů. Více informací
Chystáte se prodat nemovitost?
Pomůžeme Vám!

Kontakt

Pavel Svoboda

Pavel Svoboda

Přihlášení k odběru

Nenechte si ujít nejnovější nabídky pronájmu obchodních prostor v Frýdlantu nad Ostravicí.

Podobné nabídky