Pronájem obchodního prostoru, Přerov, Wilsonova, 24 m2

Wilsonova, Přerov I-Město


8 000 Kč /za měsíc
Získejte výhodnou HYPOTÉKU
Regionální dodavatelé v Přerově

Popis

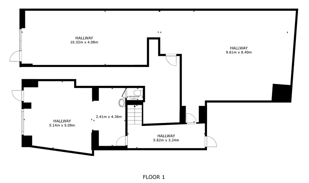
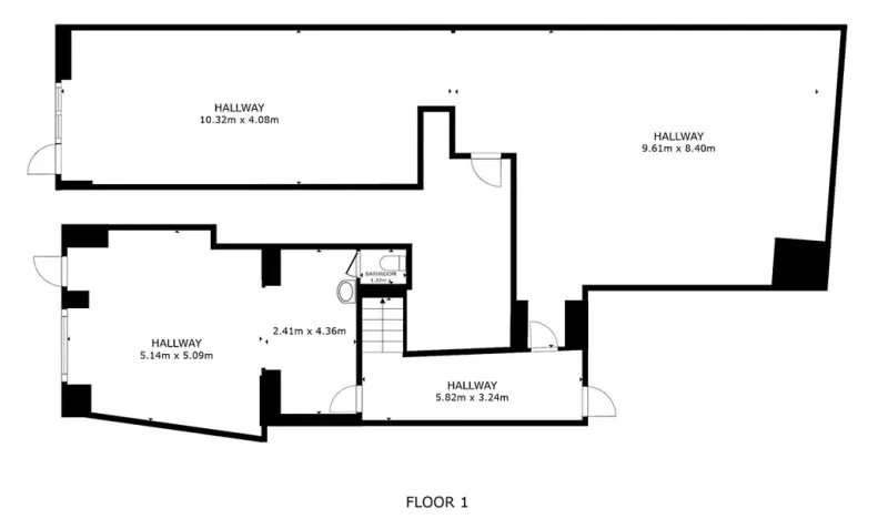
Nabízíme k pronájmu atraktivní komerční prostory v centru města Přerov, na adrese Wilsonova 37/2a, s výbornou dostupností a viditelností. Prostory jsou v domě, který je opečovávaný a v dobrém stavu.

Dispozice a plochy
prodejna s výlohou cca 20 m2 na které navazuje zázemí s WC a umyvadlem

Využití
Prostory jsou zkolaudovány pro výrobu, obchod a služby (neuvedené v přílohách 1–3 živnostenského zákona). Vhodné např. pro:
* obchod / showroom
* kanceláře
* ateliér
* služby
* menší výrobu

Technické informace
* vytápění plynovým kotlem nebo klimatizací

Finanční podmínky
* nájemné: 8 000 Kč / měsíc
* kauce: 1× měsíční nájem
* provize RK: 1× měsíční nájem
* energie dle skutečné spotřeby

Ve stejném domě se nabízí k pronájmu i větší komerční prostory více jak 260 m2, které je možné také pronajmout.

Lokalita

Centrum města Přerov – frekventované a dobře dostupné místo, vhodné pro podnikání s klientelou.
Pro více informací nebo domluvení prohlídky nás neváhejte kontaktovat.

Cena
8 000 Kč /za měsíc
Aktualizováno
16. 12. 2025
Adresa
Wilsonova, Přerov I-Město
ID
972253
Stavba
Cihlová
Stav objektu
Velmi dobrý
Užitná plocha
24 m2
Zastavěná plocha
280 m2
Podlahová plocha
24 m2
Třída energetické náročnosti
G - Mimořádně nehospodárná
Elektřina
230V
Plyn
Plynovod
Topné těleso
Kotel na tuhá paliva
Zdroj topení
Plynový kotel

Máte zájem o tuto nemovitost?

Tímto, v souladu s nařízením Evropského parlamentu a Rady (EU) 2016/679, v platném znění, prohlašuji, že mi je alespoň 16 let a uděluji tak svůj souhlas se zpracováním zadaných údajů (jméno, telefon, e-mail, ip adresa) společnosti B3 Technology, s.r.o., IČ: 07330600, se sídlem Novostavby 126/23, 435 11 Lom (správce dat), za účelem předání dotazu z tohoto formuláře Vámi vybranému inzerentovi a zpětného kontaktování mé osoby. Osobní údaje bude správce zpracovávat manuálně i automaticky přímo prostřednictvím svých zaměstnanců. Informace předané tímto formulářem budou uloženy v databázi správce maximálně po dobu 10 let. Odvolání souhlasu s uložením a zpracováním poskytnutých dat lze e-mailem na info@realitymat.cz. V případě podezření na neoprávněné použití Vámi poskytnutých údajů máte právo předat podnět k šetření Úřadu pro ochranu osobních údajů. Více informací
Chystáte se prodat nemovitost?
Pomůžeme Vám!

Kontakt

Ing. Jiří Podešva

Ing. Jiří Podešva

Přihlášení k odběru

Nenechte si ujít nejnovější nabídky pronájmu obchodních prostor v Přerově.

Podobné nabídky