Prodej bytu 5+kk, Unhošť, Buková, 115 m2

Buková, Unhošť


12 490 000 Kč /za nemovitost
HYPOTÉKA od 55 823 Kč /měs.

(včetně DPH, včetně poplatků, včetně provize)


Regionální dodavatelé v Unhošti

Popis

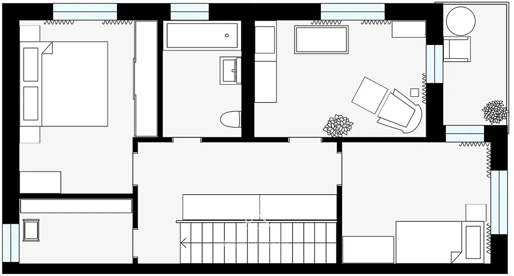
Komfort bytu, velikost domku

Rodinné bydlení, kde má každý svůj prostor. Mezonet o dispozici 5+kk poskytuje přes 115 m² moderního a praktického zázemí. Ideální pro rodinu, která chce klid mimo město, ale nechce se vzdát jeho výhod. Tady je kombinace obojího.

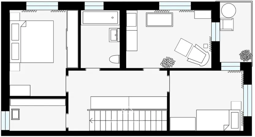
Dvě koupelny = konec rannímu chaosu
Přízemí je připravené pro společný rodinný život – velký obývák s kuchyní je srdcem bytu a přirozeným centrem rodiny. Pracujete na home office? Pak Vám přijde vhod pracovna, která může posloužit i jako pokoj pro hosty. V patře pak najdete soukromé pokoje, druhou koupelnu a šatnu, kterou jistě ocení Vaše drahá polovička.

Moderní řešení bez kompromisů
Byt je navržený pro potřeby moderní rodiny. Vestavěné úložné prostory, kvalitní materiály, promyšlené dispozice – žádné slepé kouty ani zbytečná místa, která se musí „nějak dořešit“. Kuchyně je připravená na pohodlné vaření – trouba i mikrovlnka jsou vestavěné, ve výšce očí. Kuchyňská linka je prostorná s dostatkem úložných prostor a výhledem do zahrady. Navíc přirozeně navazuje na obývací pokoj. Tohle je připravené bydlení, ne polotovar.

Zahrada – další prostor pro život
Součástí je zahrada o 677 m², na které vytvoříte místo, kde mohou děti bezpečně běhat od jara do podzimu. Terasa je dokonalá pro letní večery, obědy venku nebo posezení s přáteli. A pokud toužíte po zázemí venku, je tu už příprava na zahradní domek. A kdyby vás lákal bazén – nic tomu nebrání.

Dvě parkovací místa.
Žádné hledání, žádný boj se sousedy. K bytu patří dvě vlastní parkovací místa, což je v klidné neprůjezdní čtvrti Na Čeperce příjemná jistota.

Adresa, kde vám bude dobře
Na Čeperce je místo, které působí jako malá vesnička na kraji lesa – přitom jste 20 minut od Prahy. Okolí tvoří křivoklátské lesy, vyhlášené golfové hřiště Botanica, krásné trasy pro běh, kolo i výlety. Nákupy vyřešíte v Unhošti nebo v blízké nákupní zóně. A volný čas? Ten budete trávit v úplně jiném tempu.

Tak co už se tady vidíte? Stačí jen napsat, nebo zavolat a potkáme se na prohlídce.

Cena
12 490 000 Kč /za nemovitost Spočítat hypotéku
Poznámka k ceně
včetně DPH, včetně poplatků, včetně provize
Aktualizováno
16. 12. 2025
Adresa
Buková, Unhošť
ID
66341
Stavba
Cihlová
Stav objektu
Novostavba
Patro
1. z 2
Vybaveno
Ne
Lokalita objektu
Klidná část obce
Vlastnictví
Osobní
Užitná plocha
115 m2
Plocha zahrady
677 m2
Třída energetické náročnosti
A - Mimořádně úsporná
Ukazatel energetické náročnosti
56.9 kWh/m2 za rok
Odpad
Veřejná kanalizace
Voda
Vodovod
Topné těleso
Podlahové vytápění
Zdroj topení
Jiné
Balkon
Parkování

Máte zájem o tuto nemovitost?

Tímto, v souladu s nařízením Evropského parlamentu a Rady (EU) 2016/679, v platném znění, prohlašuji, že mi je alespoň 16 let a uděluji tak svůj souhlas se zpracováním zadaných údajů (jméno, telefon, e-mail, ip adresa) společnosti B3 Technology, s.r.o., IČ: 07330600, se sídlem Novostavby 126/23, 435 11 Lom (správce dat), za účelem předání dotazu z tohoto formuláře Vámi vybranému inzerentovi a zpětného kontaktování mé osoby. Osobní údaje bude správce zpracovávat manuálně i automaticky přímo prostřednictvím svých zaměstnanců. Informace předané tímto formulářem budou uloženy v databázi správce maximálně po dobu 10 let. Odvolání souhlasu s uložením a zpracováním poskytnutých dat lze e-mailem na info@realitymat.cz. V případě podezření na neoprávněné použití Vámi poskytnutých údajů máte právo předat podnět k šetření Úřadu pro ochranu osobních údajů. Více informací
Chystáte se prodat nemovitost?
Pomůžeme Vám!

Kontakt

Bc. Lukáš Holeček

Bc. Lukáš Holeček

Přihlášení k odběru

Nenechte si ujít nejnovější nabídky prodeje bytů 5+kk v Unhošti.

Tipy Realitymatu

Podobné nabídky