Molák reality

Pronájem obchodního prostoru, Litvínov, 90 m2

Litvínov


175 Kč /za metr čtvereční / měsíc
Získejte výhodnou HYPOTÉKU

(Cena je uvedena bez DPH, bez DPH, bez poplatků)


Regionální dodavatelé v Litvínově

Okna a dveře

Rekonstrukce

Zámečnické práce

Popis

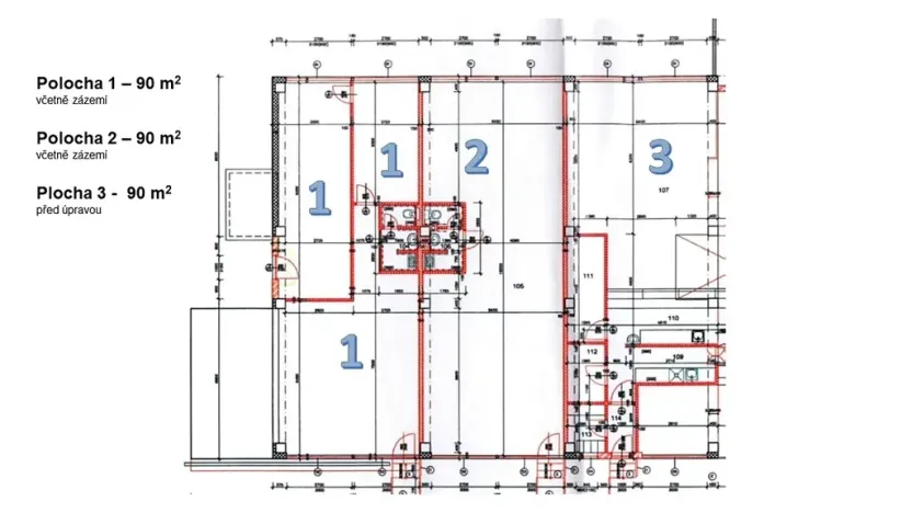
Nabízíme k pronájmu obchodní prostory s vlastním hygienickým zázemím o výměře 90 m2.
Prostory jsou vhodné pro malé i střední podnikatele jakéhokoliv zaměření. Prostory jsou vhodné jako obchodní prostory a lze je rozšířit na výměru 180 m2 či na celkovou výměru 270 m2.

Prostory se nacházejí v přízemí administrativní budovy v technologickém areálu BENETOL trade, a.s. v centru Litvínova, na adrese Nádražní 557. Denní návštěvnost areálu je okolo 250 osob.

Možnost parkování přímo před nabízenými obchodními prostory na našem parkovišti.

Areál je přístupný z veřejné komunikace přes silnici č. 27 a dále ulicí Nádražní a Čapkova. Vjezd je uzpůsoben pro osobní i nákladní kamionovou přepravu.
Areál disponuje: vrátnicí, nepřetržitou ostrahou, soukromou protipožární jednotkou.

Výměra obchodního prostoru: 90 m2 s možností rozšíření na maximální výměru až 270 m2.

Měsíční nájemné je bez DPH a bez energií a služeb.
Pronájem je možný IHNED.

Cena
175 Kč /za metr čtvereční / měsíc
Poznámka k ceně
Cena je uvedena bez DPH, bez DPH, bez poplatků
Aktualizováno
16. 12. 2025
Adresa
Litvínov
ID
00078
Stavba
Smíšená
Stav objektu
Dobrý
Patro
1. z 4
Vybaveno
Ne
Lokalita objektu
Centrum obce
Užitná plocha
90 m2
Třída energetické náročnosti
G - Mimořádně nehospodárná
Elektřina
230V
Odpad
Veřejná kanalizace
Komunikace
Asfaltová
Doprava
Vlak, Silnice, MHD, Autobus
Voda
Vodovod
Výtah
Parkování

Máte zájem o tuto nemovitost?

Tímto, v souladu s nařízením Evropského parlamentu a Rady (EU) 2016/679, v platném znění, prohlašuji, že mi je alespoň 16 let a uděluji tak svůj souhlas se zpracováním zadaných údajů (jméno, telefon, e-mail, ip adresa) společnosti B3 Technology, s.r.o., IČ: 07330600, se sídlem Novostavby 126/23, 435 11 Lom (správce dat), za účelem předání dotazu z tohoto formuláře Vámi vybranému inzerentovi a zpětného kontaktování mé osoby. Osobní údaje bude správce zpracovávat manuálně i automaticky přímo prostřednictvím svých zaměstnanců. Informace předané tímto formulářem budou uloženy v databázi správce maximálně po dobu 10 let. Odvolání souhlasu s uložením a zpracováním poskytnutých dat lze e-mailem na info@realitymat.cz. V případě podezření na neoprávněné použití Vámi poskytnutých údajů máte právo předat podnět k šetření Úřadu pro ochranu osobních údajů. Více informací
Chystáte se prodat nemovitost?
Pomůžeme Vám!

Kontakt

Hedvika Chmelová

Hedvika Chmelová

Přihlášení k odběru

Nenechte si ujít nejnovější nabídky pronájmu obchodních prostor v Litvínově.

Podobné nabídky