Pronájem bytu 3+1, Teplice, Karla Čapka, 80 m2 (ID: 2026530)

Karla Čapka, Teplice


19 000 Kč /za měsíc
Získejte výhodnou HYPOTÉKU
Regionální dodavatelé v Teplicích

Okna a dveře

Rekonstrukce

Zámečnické práce

Popis

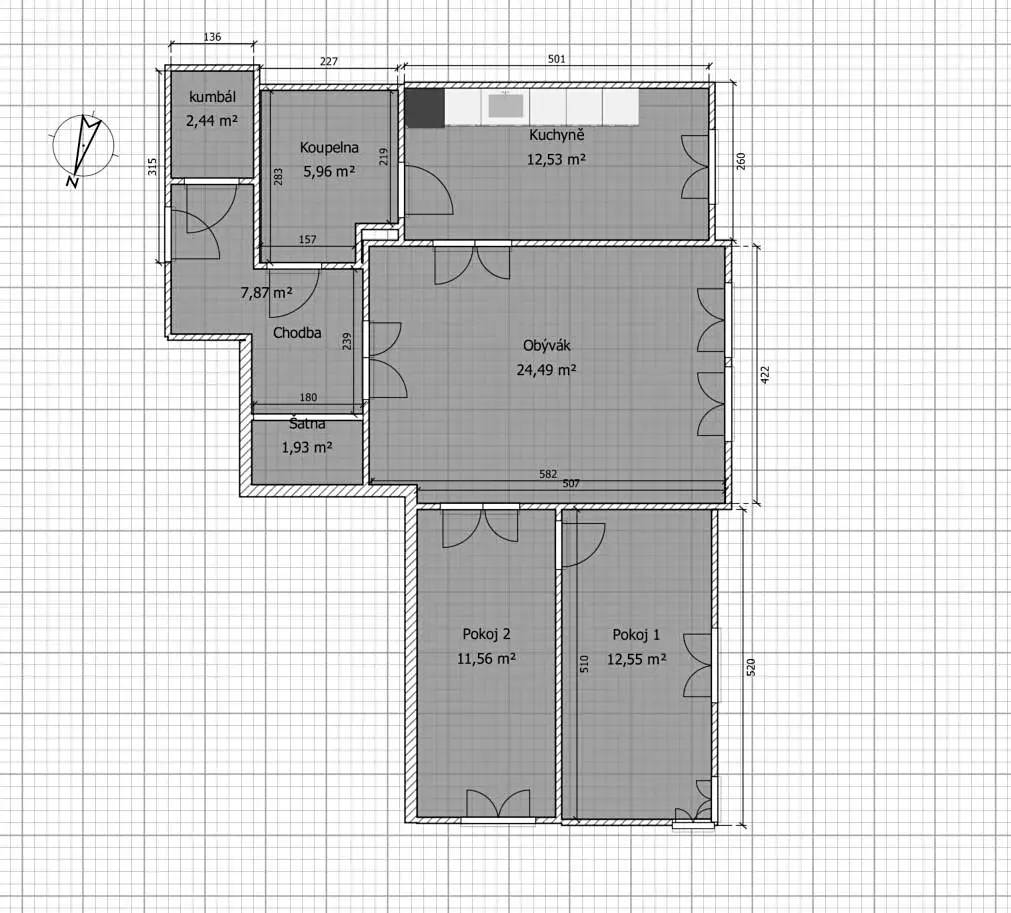
Nabízíme k pronájmu byt se zahradou a garáží o dispozici 3+1 a výměrou 80 m2 na adrese Karla Čapka 2466/48 v Teplicích. Byt je nyní v rekonstrukci a bude hotov na přelomu roku. Byt je pěkný, velký a pro představu velikosti pokojů je uveden půdorys bytu. V koupelně je sprchový kout, WC, prostor pro pračku se sušičkou, dvě umyvadla se skříňkou, topné těleso a plynový kotel. Celý byt prošel nákladnou rekonstrukcí včetně podlah, elektroinstalace, zdiva a snížení a zateplení stropů. Postupně budou doplněny fotografie.

Dům má svůj kamerový systém, je udržovaný, čistý, se slušnými nájemníky.

Velmi doporučujeme prohlídku.

Čisté nájemné: 19 000 Kč

Zálohy:
SUV: 650 Kč
Chodbové osvětlení: 100 Kč
Úklid: 100 Kč

Celkem zálohy za 1 osobu: 850 Kč
Každá další osoba: 650 Kč
Celkem nájemné včetně záloh za 1 osobu: 19 850 Kč

Kauce: 40 000 Kč
Provize : 5 000 Kč

Elektřina a plyn se přepisují na nájemníka.

Hledáme slušné, pracující nájemníky bez exekucí. Výhodou nekuřáci a bez mazlíčků (kromě terárií a akvárií).

Volné od 05.01.2026

Cena
19 000 Kč /za měsíc
Aktualizováno
11. 12. 2025
Adresa
Karla Čapka, Teplice
ID
1141
Stavba
Cihlová
Stav objektu
Velmi dobrý
Patro
3. z 3
Vlastnictví
Osobní
Užitná plocha
80 m2
Podlahová plocha
80 m2
Bezbarierový přístup

Máte zájem o tuto nemovitost?

Tímto, v souladu s nařízením Evropského parlamentu a Rady (EU) 2016/679, v platném znění, prohlašuji, že mi je alespoň 16 let a uděluji tak svůj souhlas se zpracováním zadaných údajů (jméno, telefon, e-mail, ip adresa) společnosti B3 Technology, s.r.o., IČ: 07330600, se sídlem Novostavby 126/23, 435 11 Lom (správce dat), za účelem předání dotazu z tohoto formuláře Vámi vybranému inzerentovi a zpětného kontaktování mé osoby. Osobní údaje bude správce zpracovávat manuálně i automaticky přímo prostřednictvím svých zaměstnanců. Informace předané tímto formulářem budou uloženy v databázi správce maximálně po dobu 10 let. Odvolání souhlasu s uložením a zpracováním poskytnutých dat lze e-mailem na info@realitymat.cz. V případě podezření na neoprávněné použití Vámi poskytnutých údajů máte právo předat podnět k šetření Úřadu pro ochranu osobních údajů. Více informací
Chystáte se prodat nemovitost?
Pomůžeme Vám!

Kontakt

Nikola Špániková

Nikola Špániková

Přihlášení k odběru

Nenechte si ujít nejnovější nabídky pronájmu bytů 3+1 v Teplicích.

Podobné nabídky