Pronájem bytu 2+kk, Praha - Stodůlky, Klausova, 65 m2

Klausova, Stodůlky - Praha 13


25 000 Kč /za měsíc
Získejte výhodnou HYPOTÉKU

(vratná jistota, náklady na bydlení 4.800,-Kč poplatek za podnájem)


Regionální dodavatelé v Praze 5

Stěhovací služby

Výkup a prodej starého nábytku

Popis

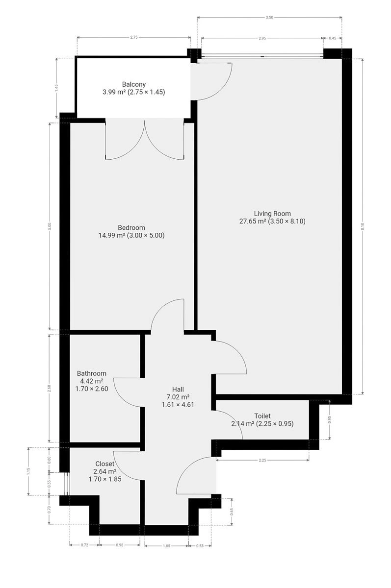
K dlouhodobému podnájmu Vám nabízíme kompletně zařízený byt s komorou, zasklenou lodžií a garážovým parkovacím stáním.

Byt je situován v 1.patře udržovaného cihlového domu s výtahem, ve velmi klidné pražských Stodůlek - Velká ohrada.

Skládá se ze vstupní chodby, samostatné toalety, koupelny zařízené vanou, pračkou, umyvadlem a velkým zrcadlem. velmi prostorná komora je vybavena regály.

Z ložnice, která je zařízena postelí a dvěma šatními skříněmi lze vejít na zasklenou lodžii.

Obývací pokoj, společný s kuchyňským koutem je kompletně zařízen a lze z něho vejít na lodžii.

Kuchyně je vybavena všemi spotřebiči - lednice, myčka, varná deska a digestoř. K dispozici může být i kávovar.

K bytu náleží garážové parkovací stání.

Dům se nachází v lokalitě, která je ideální pro rodinné bydlení. Přímo u domu je hned několik základních i mateřských škol. Dále je tu několik menších obchodů s potravinami a službami, hypemarket Albert a Lidl. Autobusová zastávka "Velká ohrada" je od domu necelé 3 minuty chůze.

Byt je k dispozici od 1.3.2026.

Zálohové platby už obsahují zálohy na elektřinu a pojištění domácnosti.

Cena
25 000 Kč /za měsíc
Poznámka k ceně
vratná jistota, náklady na bydlení 4.800,-Kč poplatek za podnájem
Aktualizováno
11. 12. 2025
Adresa
Klausova, Stodůlky - Praha 13
ID
N5906
Stavba
Cihlová
Stav objektu
Velmi dobrý
Patro
1. z 4
Vybaveno
Ano
Typ objektu
Patrový
Lokalita objektu
Klidná část obce
Vlastnictví
Osobní
Užitná plocha
65 m2
Podlahová plocha
65 m2
Třída energetické náročnosti
G - Mimořádně nehospodárná
Elektřina
230V
Topení
Ústřední dálkové
Doprava
Dálnice, Silnice, MHD, Autobus
Garáž
Lodžie
Výtah
Bezbarierový přístup
Parkování

Máte zájem o tuto nemovitost?

Tímto, v souladu s nařízením Evropského parlamentu a Rady (EU) 2016/679, v platném znění, prohlašuji, že mi je alespoň 16 let a uděluji tak svůj souhlas se zpracováním zadaných údajů (jméno, telefon, e-mail, ip adresa) společnosti B3 Technology, s.r.o., IČ: 07330600, se sídlem Novostavby 126/23, 435 11 Lom (správce dat), za účelem předání dotazu z tohoto formuláře Vámi vybranému inzerentovi a zpětného kontaktování mé osoby. Osobní údaje bude správce zpracovávat manuálně i automaticky přímo prostřednictvím svých zaměstnanců. Informace předané tímto formulářem budou uloženy v databázi správce maximálně po dobu 10 let. Odvolání souhlasu s uložením a zpracováním poskytnutých dat lze e-mailem na info@realitymat.cz. V případě podezření na neoprávněné použití Vámi poskytnutých údajů máte právo předat podnět k šetření Úřadu pro ochranu osobních údajů. Více informací
Chystáte se prodat nemovitost?
Pomůžeme Vám!

Kontakt

Miloslava Kačerová

Miloslava Kačerová

Přihlášení k odběru

Nenechte si ujít nejnovější nabídky pronájmu bytů 2+kk v Praze 5.

Podobné nabídky