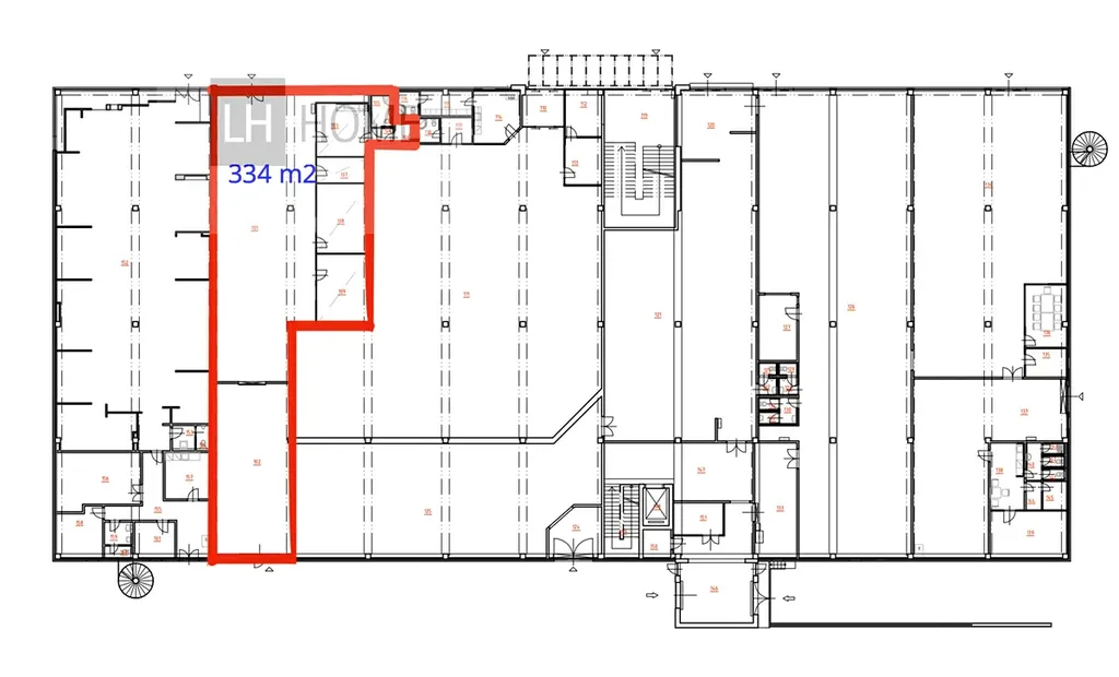
Pronájem obchodního prostoru, Liberec, 334 m2

Liberec


250 Kč /za metr čtvereční / měsíc
Získejte výhodnou HYPOTÉKU
Regionální dodavatelé v Liberci

Rekonstrukce

Úklidové služby

Popis

Nabídka k pronájmu nebytových obchodních prostor v Liberci o výměře 334 m2.

Součástí nebytového prostoru je vlastní kuchyňka a sociální zařízení, šatna, kanceláře. V zadní části se nachází sklad s garážovými vraty.
Obchodní prostory se nachází v OD SPECTRUM a jsou situovány vedle známého obchodního centra NISA Liberec. Vlastní parkoviště se 70 místy. Nabízíme výhodné podmínky pronájmu.

V obchodním centru NISA a jeho okolí jsou tito nájemci:
Sconto nábytek, McDonald, hypermarket Albert, Datart, iWant, Orsay, Deichmann, Bambule, DM Drogerie, Baťa, Uncle Sam, CCC, Cinestar, Reserved, HM, Tescoma, Pompo, New Yorker, A3 Sport, Intersport, Martes sport, Alpinepro a mnoho dalších.

Nájemné: 250,-Kč/m2 bez DPH (celkem 83.500,-Kč bez DPH)

Energie a služby jsou dle skutečné spotřeby.

Cena
250 Kč /za metr čtvereční / měsíc
Aktualizováno
8. 12. 2025
Adresa
Liberec
ID
Liberec
Stavba
Smíšená
Stav objektu
Velmi dobrý
Vybaveno
Ne
Užitná plocha
334 m2
Zastavěná plocha
334 m2
Třída energetické náročnosti
B - Velmi úsporná

Máte zájem o tuto nemovitost?

Tímto, v souladu s nařízením Evropského parlamentu a Rady (EU) 2016/679, v platném znění, prohlašuji, že mi je alespoň 16 let a uděluji tak svůj souhlas se zpracováním zadaných údajů (jméno, telefon, e-mail, ip adresa) společnosti B3 Technology, s.r.o., IČ: 07330600, se sídlem Novostavby 126/23, 435 11 Lom (správce dat), za účelem předání dotazu z tohoto formuláře Vámi vybranému inzerentovi a zpětného kontaktování mé osoby. Osobní údaje bude správce zpracovávat manuálně i automaticky přímo prostřednictvím svých zaměstnanců. Informace předané tímto formulářem budou uloženy v databázi správce maximálně po dobu 10 let. Odvolání souhlasu s uložením a zpracováním poskytnutých dat lze e-mailem na info@realitymat.cz. V případě podezření na neoprávněné použití Vámi poskytnutých údajů máte právo předat podnět k šetření Úřadu pro ochranu osobních údajů. Více informací
Chystáte se prodat nemovitost?
Pomůžeme Vám!

Kontakt

Pavel Vakeš

Pavel Vakeš

Přihlášení k odběru

Nenechte si ujít nejnovější nabídky pronájmu obchodních prostor v Liberci.

Podobné nabídky