Prodej bytu 2+kk, Orihuela, Španělsko, 69 m2 (ID: 2023151)

Orihuela


186 500 € /za nemovitost

Regionální dodavatelé

Popis

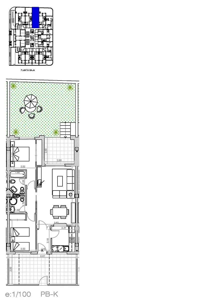
Byt v Orihuela Costa – Novostavba, zrekonstruované apartmány v Lomas de Cabo Roig

Lokalita: Orihuela Costa
Cena: 160 500 EUR
Dispozice: 2 ložnice, 2 koupelny
Užitná plocha: 69 m²

Exkluzivní zrekonstruované apartmány v prestižní lokalitě Lomas de Cabo Roig
Objevte jedinečnou příležitost vlastnit zrekonstruovaný byt v oblasti Lomas de Cabo Roig, jedné z nejvyhledávanějších lokalit v Orihuela Costa. Tento rezidenční komplex, původně postavený v roce 2008, prochází rekonstrukcí a bude dokončen v červnu 2025. K prohlídce je k dispozici ukázkový dům, který vám umožní zhlédnout kvalitní povrchové úpravy.

Možnosti pro každého
Projekt nabízí 27 zrekonstruovaných apartmánů s různými dispozicemi:
Apartmány 1 a 2+kk – ideální pro rekreační bydlení nebo investici.
Přízemní apartmány s vlastní zahradou, perfektní pro venkovní život.
Apartmány ve středním patře s prostornými terasami, ideální pro vychutnání středomořského klimatu.
Penthousy s privátními solárii, které nabízejí otevřený výhled a maximální soukromí.
Každý byt je vybaven kuchyní se spotřebiči a sprchovými zástěnami v koupelnách, což zajišťuje kompletní řešení na klíč.
Exkluzivní komunitní vybavení
Rezidenční komplex nabízí komfort a relaxaci díky následujícím prvkům:
Společný bazén obklopený krásně upravenou zahradou.
Výtah pro pohodlný přístup do všech pater.
Podzemní parkování (volitelné, za příplatek).
Bezkonkurenční poloha v Orihuela Costa

Lomas de Cabo Roig je prestižní rezidenční oblast, která se nachází jen 2 km od pláže Cabo Roig, jednoho z nejkrásnějších míst na Orihuela Costa. Oblast je dobře napojena na silnice a nabízí širokou škálu služeb včetně obchodů, restaurací a nákupních center.

Vzdálenosti ke klíčovým místům:
Pláže Cabo Roig a Campoamor – 5 minut jízdy.
Nákupní centrum Zenia Boulevard – 5 km.
Golfové hřiště Villamartín – 4 km.
Letiště Alicante – 30 minut jízdy autem.
Letiště Murcia-Corvera – 1 hodina jízdy autem.
Chytrá investice v Costa Blanca

Tento projekt nabízí vynikající polohu, kompletně zrekonstruované byty a špičkové vybavení, což činí tento byt ideální příležitostí pro investici, rekreační bydlení nebo trvalé bydlení. Nezmeškejte tuto jedinečnou šanci vlastnit nemovitost v jedné z nejžádanějších oblastí Costa Blanca za výjimečnou cenu.
Kontaktujte nás dnes pro více informací nebo domluvte si prohlídku!

Cena
186 500 € /za nemovitost
Aktualizováno
7. 12. 2025
Adresa
Orihuela
Stavba
Panelová
Stav objektu
Novostavba
Patro
1.
Vlastnictví
Osobní
Užitná plocha
69 m2
Bazén

Máte zájem o tuto nemovitost?

Tímto, v souladu s nařízením Evropského parlamentu a Rady (EU) 2016/679, v platném znění, prohlašuji, že mi je alespoň 16 let a uděluji tak svůj souhlas se zpracováním zadaných údajů (jméno, telefon, e-mail, ip adresa) společnosti B3 Technology, s.r.o., IČ: 07330600, se sídlem Novostavby 126/23, 435 11 Lom (správce dat), za účelem předání dotazu z tohoto formuláře Vámi vybranému inzerentovi a zpětného kontaktování mé osoby. Osobní údaje bude správce zpracovávat manuálně i automaticky přímo prostřednictvím svých zaměstnanců. Informace předané tímto formulářem budou uloženy v databázi správce maximálně po dobu 10 let. Odvolání souhlasu s uložením a zpracováním poskytnutých dat lze e-mailem na info@realitymat.cz. V případě podezření na neoprávněné použití Vámi poskytnutých údajů máte právo předat podnět k šetření Úřadu pro ochranu osobních údajů. Více informací
Chystáte se prodat nemovitost?
Pomůžeme Vám!

Kontakt

Martina Kroupová

Martina Kroupová

Přihlášení k odběru

Nenechte si ujít nejnovější nabídky prodeje bytů 2+kk.

Podobné nabídky