Pronájem bytu 3+kk, Teplice, Trnovanská, 73 m2

Trnovanská, Teplice, Trnovany


11 500 Kč /za měsíc
Získejte výhodnou HYPOTÉKU
Regionální dodavatelé v Teplicích

Okna a dveře

Rekonstrukce

Zámečnické práce

Popis

Pronájem bez provize!

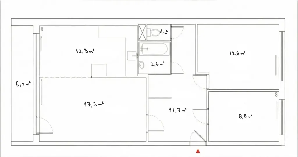
Nabízím k pronájmu byt kategorie 3+1 předělaný na 3+kk v Teplicích-Trnovanech nacházející se ve třetím patře revitalizovaného panelového domu (zateplení, výtah, střecha).

Byt sestává z prostorné vstupní chodby, obývacího pokoje s kuchyní (kuchyňská linka se sklokeramickou varnou deskou, vestavěnou troubou a digestoří), dvou pokojů, koupelny a WC. Z obývacího pokoje vstup na lodžii. K bytu náleží skladová komora na patře.

Nájemné 11.500 Kč. Zálohy na služby 5.000 Kč (každoroční vyúčtování samozřejmostí). Elektřina převedena na nájemce.
Vratná jistina ve výši dvou nájmů.

Cena
11 500 Kč /za měsíc
Aktualizováno
7. 12. 2025
Adresa
Trnovanská, Teplice, Trnovany
Stavba
Panelová
Stav objektu
Dobrý
Patro
3.
Vlastnictví
Osobní
Užitná plocha
73 m2

Máte zájem o tuto nemovitost?

Tímto, v souladu s nařízením Evropského parlamentu a Rady (EU) 2016/679, v platném znění, prohlašuji, že mi je alespoň 16 let a uděluji tak svůj souhlas se zpracováním zadaných údajů (jméno, telefon, e-mail, ip adresa) společnosti B3 Technology, s.r.o., IČ: 07330600, se sídlem Novostavby 126/23, 435 11 Lom (správce dat), za účelem předání dotazu z tohoto formuláře Vámi vybranému inzerentovi a zpětného kontaktování mé osoby. Osobní údaje bude správce zpracovávat manuálně i automaticky přímo prostřednictvím svých zaměstnanců. Informace předané tímto formulářem budou uloženy v databázi správce maximálně po dobu 10 let. Odvolání souhlasu s uložením a zpracováním poskytnutých dat lze e-mailem na info@realitymat.cz. V případě podezření na neoprávněné použití Vámi poskytnutých údajů máte právo předat podnět k šetření Úřadu pro ochranu osobních údajů. Více informací
Chystáte se prodat nemovitost?
Pomůžeme Vám!

Kontakt

Luboš Hradec

Luboš Hradec

Přihlášení k odběru

Nenechte si ujít nejnovější nabídky pronájmu bytů 3+kk v Teplicích.

Podobné nabídky