Pronájem komerční nemovitosti, Praha - Vinohrady, Chrudimská, 360 m2 (ID: 2021822)

Chrudimská, Praha, Vinohrady


350 Kč /za metr čtvereční / měsíc
Získejte výhodnou HYPOTÉKU
Regionální dodavatelé v Praze 3

Stěhovací služby

Výkup a prodej starého nábytku

Popis

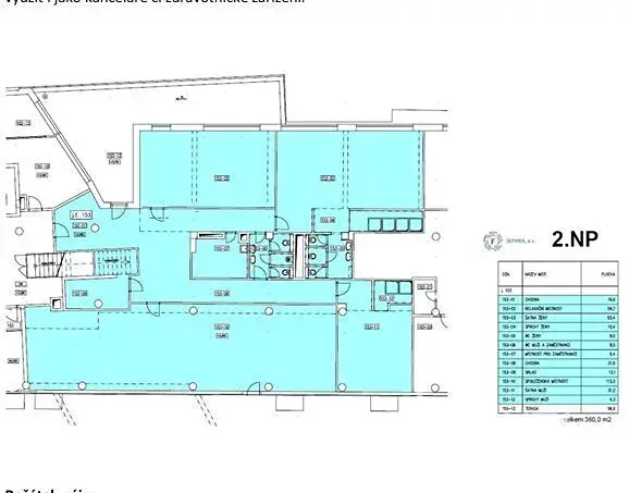
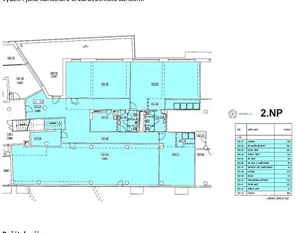
Nebytové prostory s pronajímatelnou plochou 360 m2 ve 2. NP s výtahem a se vstupem z pasáže, která spojuje ulici Hradeckou a Chrudimskou. Aktuálně jsou prostory provozované jako studio HOT YOGY. Ideální pro zájemce hledající podobné využití (masážní studio, YOGA studio, pilates, apod.). Lze i po
dohodě se stávajícím nájemcem převzít zařízení a vybavení studia, není to však podmínkou. Prostory je možné po úpravě využít i jako kanceláře či zdravotnické zařízení.
Počátek nájmu - prostory jsou k dispozici po domluvě se stávajícím nájemníkem.
Nájemné - cena k jednání, od 350,- Kč/m2/měsíc (bez DPH).
Zálohy na služby - určí se dle zvoleného provozu. Na základě aktuálních cen energií a využití prostoru je stanovena výše zúčtovatelných záloh na služby a vlastní spotřebu na 145,- Kč/m2/měsíc vč. DPH, s ročním vyúčtováním.
Doba nájmu - ideálně na dobu určitou, min. 3 let.
Jistota - ve výši 2měsíčních nájmů vč. DPH a 2 záloh na služby bude uhrazena při podpisu smlouvy, resp. nejpozději v den počátku nájmu.
Technická specifikace nebytového prostoru:
- elektrická energie, přívod teplé a studené vody, centrální vytápění
- vlastní sociální zázemí
- vzduchotechnika
- vstup do společných prostor na čipy
- světlá výška 2,9 m
Vybavení budovy:
- ostraha 24/7
- EPS, CCTV
- vstup na čipy
- podzemní garáže
Pronajímatel je připraven:
- konzultovat technické požadavky nájemce na úpravu prostor
- realizovat stavební úpravy prostor
- zajistit projednávání požadovaných změn s dotčenými orgány

Cena
350 Kč /za metr čtvereční / měsíc
Aktualizováno
5. 12. 2025
Adresa
Chrudimská, Praha, Vinohrady
ID
N05038
Stavba
Skeletová
Stav objektu
Velmi dobrý
Užitná plocha
360 m2
Podlahová plocha
360 m2
Třída energetické náročnosti
C - Úsporná
Odpad
Veřejná kanalizace
Telekomunikace
Internet, Kabelové rozvody, Ostatní
Doprava
MHD
Voda
Vodovod

Máte zájem o tuto nemovitost?

Tímto, v souladu s nařízením Evropského parlamentu a Rady (EU) 2016/679, v platném znění, prohlašuji, že mi je alespoň 16 let a uděluji tak svůj souhlas se zpracováním zadaných údajů (jméno, telefon, e-mail, ip adresa) společnosti B3 Technology, s.r.o., IČ: 07330600, se sídlem Novostavby 126/23, 435 11 Lom (správce dat), za účelem předání dotazu z tohoto formuláře Vámi vybranému inzerentovi a zpětného kontaktování mé osoby. Osobní údaje bude správce zpracovávat manuálně i automaticky přímo prostřednictvím svých zaměstnanců. Informace předané tímto formulářem budou uloženy v databázi správce maximálně po dobu 10 let. Odvolání souhlasu s uložením a zpracováním poskytnutých dat lze e-mailem na info@realitymat.cz. V případě podezření na neoprávněné použití Vámi poskytnutých údajů máte právo předat podnět k šetření Úřadu pro ochranu osobních údajů. Více informací
Chystáte se prodat nemovitost?
Pomůžeme Vám!

Kontakt

Miroslava Zemanová

Miroslava Zemanová

Přihlášení k odběru

Nenechte si ujít nejnovější nabídky pronájmu komerčních nemovitostí v Praze 3.

Podobné nabídky