Pronájem bytu 2+kk, Praha - Sedlec, V rokli, 46 m2

V rokli, Sedlec - Praha 6


16 000 Kč /za měsíc
Získejte výhodnou HYPOTÉKU

(vratná jistota, náklady na bydlení 7800 Kč, poplatek za podnájem)


Regionální dodavatelé v Praze 6

Stěhovací služby

Výkup a prodej starého nábytku

Popis

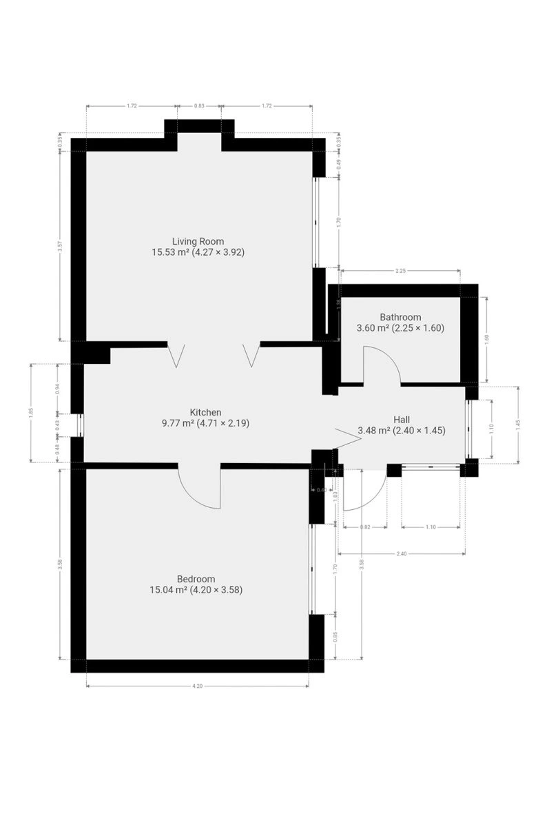
K dlouhodobému podnájmu nabízíme příjemný byt o dispozici 2+Kk v klidné lokalitě Praha Suchdol - Sedlec. Byt o podlahové ploše 46 m2 se nachází v 1. patře cihlového rodinného domu. K bytu patří i sdílená zahrada a prostorný sklep. K domu náleží i samostatná garáž, kterou je možné dopronajmout za 2.000 Kč/měsíc.

Byt se nabízí částečně vybavený. Kuchyně disponuje lednicí, myčkou, elektrickou troubou, sklokeramickou varnou deskou, mikrovlnnou troubou a digestoří. Obývací část je zařízena jídelním stolem s židlemi. Součástí ložnice je prostorná vestavěná skříň. V koupelně nalezneme sprchový kout a sanitu.

Ohřev vody a vytápění je na elektřinu.

Autobusová zastávka Sedlecký přívoz je vzdálena čtyři minuty chůze.


Majitel preferuje zájemce bez domácích mazlíčků.
Byt je volný k nastěhování od 1.2.2026.

Uvedena energetická kategorie G, jelikož nemáme k dispozici PENB.

Byt pronajímá Ideální nájemce - služba, se kterou budete bydlet bezstarostně a za férových podmínek. Když se něco přihodí, k dispozici jsou správci, kteří s vámi vše vyřeší. Pomůžeme s veškerou administrativou, s nastavením plateb a zajistíme vám speciální pojištění. Pojďte bydlet s námi!

Cena
16 000 Kč /za měsíc
Poznámka k ceně
vratná jistota, náklady na bydlení 7800 Kč, poplatek za podnájem
Aktualizováno
3. 12. 2025
Adresa
V rokli, Sedlec - Praha 6
ID
N3408
Stavba
Cihlová
Stav objektu
Velmi dobrý
Patro
1.
Vybaveno
Částečně
Typ objektu
Přízemní
Vlastnictví
Osobní
Užitná plocha
46 m2
Podlahová plocha
46 m2
Plocha zahrady
110 m2
Elektřina
230V
Topení
Lokální plynové
Sklep
Výtah

Máte zájem o tuto nemovitost?

Tímto, v souladu s nařízením Evropského parlamentu a Rady (EU) 2016/679, v platném znění, prohlašuji, že mi je alespoň 16 let a uděluji tak svůj souhlas se zpracováním zadaných údajů (jméno, telefon, e-mail, ip adresa) společnosti B3 Technology, s.r.o., IČ: 07330600, se sídlem Novostavby 126/23, 435 11 Lom (správce dat), za účelem předání dotazu z tohoto formuláře Vámi vybranému inzerentovi a zpětného kontaktování mé osoby. Osobní údaje bude správce zpracovávat manuálně i automaticky přímo prostřednictvím svých zaměstnanců. Informace předané tímto formulářem budou uloženy v databázi správce maximálně po dobu 10 let. Odvolání souhlasu s uložením a zpracováním poskytnutých dat lze e-mailem na info@realitymat.cz. V případě podezření na neoprávněné použití Vámi poskytnutých údajů máte právo předat podnět k šetření Úřadu pro ochranu osobních údajů. Více informací
Chystáte se prodat nemovitost?
Pomůžeme Vám!

Kontakt

Miloslava Kačerová

Miloslava Kačerová

Přihlášení k odběru

Nenechte si ujít nejnovější nabídky pronájmu bytů 2+kk v Praze 6.

Podobné nabídky