Prodej vily, Salzburg,Rakousko, 245 m2

Salzburg,Rakousko


Cena na vyžádání /za nemovitost

(cena u makléře)


Regionální dodavatelé

Popis

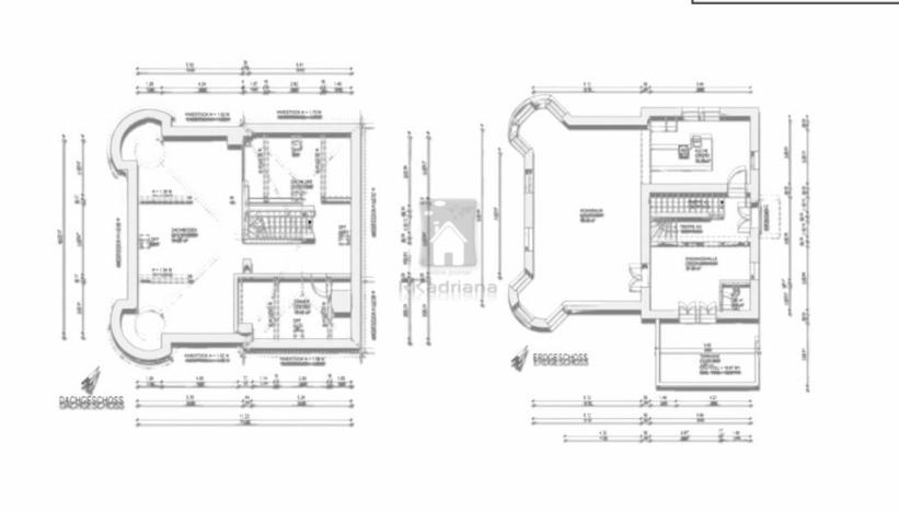
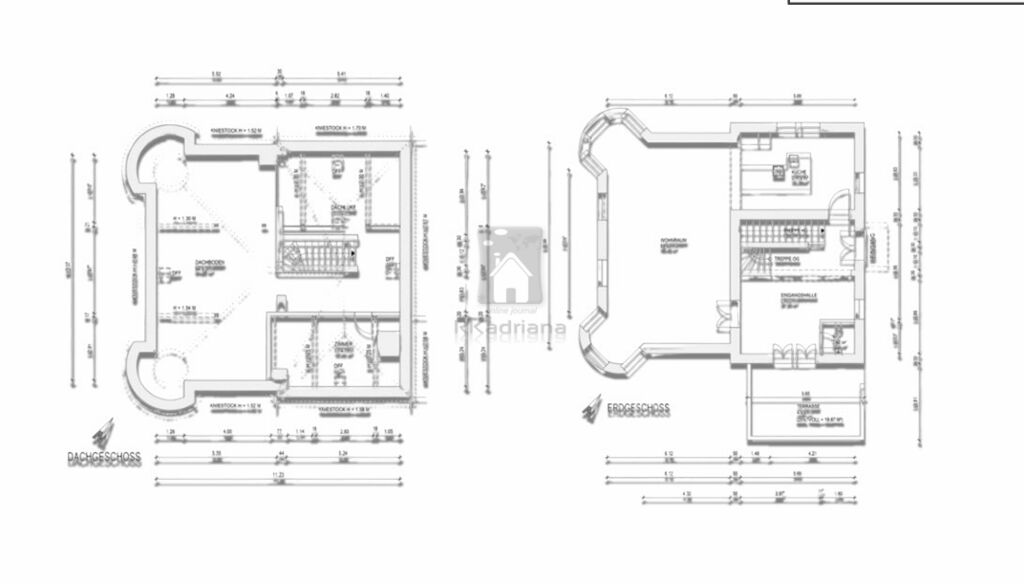
Nabízíme k prodeji exkluzivní vilu v malebné obci Salzburg, situovanou v atraktivní lokalitě, která slibuje jedinečné spojení klidného bydlení s elegancí a moderním komfortem. Tento patrový dům s cihlovou konstrukcí a velmi dobrým stavem představuje ideální volbu pro náročné kupující, kteří hledají prostor, styl a kvalitu.
S užitnou plochou 245 m² se nemovitost rozprostírá na prostorném pozemku o výměře 1188 m², což umožňuje maximální pohodlí a komfort pro život i zábavu. Interiér vilu disponuje pěti a více pokoji, které jsou navrženy tak, aby poskytovaly příjemné a vzdušné prostředí s dostatkem přirozeného světla. Prostorné obytné místnosti s moderním designem a kvalitními materiály vytvářejí harmonické a příjemné zázemí pro rodinný život.
Dům je vybaven radiátory a teplou vodu zajišťuje plynový kotel, což přispívá k vysoké energetické efektivitě a pohodlnému vytápění během chladných měsíců. Majitelé ocení také přípojku na plyn a elektřinu, které zvyšují komfort a dostupnost zdrojů.
Umístění v obci Salzburg zajišťuje nejen snadný přístup k městské infrastruktuře, ale také blízkost přírody, historických památek a kulturního vyžití. Tato vila se nachází v klidné řadové zástavbě a nabízí dostatek soukromí pro své obyvatele, zatímco je však stále v dosahu všech důležitých služeb a atrakcí.
Exkluzivita této nemovitosti spočívá v jejím jedinečném charakteru, kvalitním provedení a atraktivní lokalitě, která láká nejen k trvalému bydlení, ale také k relaxaci a odpočinku v malebném rakouském prostředí.
V případě zájmu o prohlídku nás neváhejte kontaktovat.

Cena
Cena na vyžádání
Poznámka k ceně
cena u makléře
Aktualizováno
28. 11. 2025
Adresa
Salzburg,Rakousko
ID
2769
Stavba
Cihlová
Stav objektu
Velmi dobrý
Typ objektu
Patrový
Druh objektu
Řadový
Užitná plocha
245 m2
Plocha pozemku
1188 m2
Třída energetické náročnosti
G - Mimořádně nehospodárná
Převod do OV

Máte zájem o tuto nemovitost?

Tímto, v souladu s nařízením Evropského parlamentu a Rady (EU) 2016/679, v platném znění, prohlašuji, že mi je alespoň 16 let a uděluji tak svůj souhlas se zpracováním zadaných údajů (jméno, telefon, e-mail, ip adresa) společnosti B3 Technology, s.r.o., IČ: 07330600, se sídlem Novostavby 126/23, 435 11 Lom (správce dat), za účelem předání dotazu z tohoto formuláře Vámi vybranému inzerentovi a zpětného kontaktování mé osoby. Osobní údaje bude správce zpracovávat manuálně i automaticky přímo prostřednictvím svých zaměstnanců. Informace předané tímto formulářem budou uloženy v databázi správce maximálně po dobu 10 let. Odvolání souhlasu s uložením a zpracováním poskytnutých dat lze e-mailem na info@realitymat.cz. V případě podezření na neoprávněné použití Vámi poskytnutých údajů máte právo předat podnět k šetření Úřadu pro ochranu osobních údajů. Více informací
Chystáte se prodat nemovitost?
Pomůžeme Vám!

Kontakt

Kateřina Hradecká

Kateřina Hradecká

Přihlášení k odběru

Nenechte si ujít nejnovější nabídky prodeje vil.

Podobné nabídky