Pronájem bytu 1+kk, Praha - Staré Město, Martinská, 32 m2

Martinská, Praha, Staré Město


17 900 Kč /za měsíc
Získejte výhodnou HYPOTÉKU

(Poplatky za služby a energie se hradí zvlášť.)


Regionální dodavatelé v Praze 1

Stěhovací služby

Výkup a prodej starého nábytku

Popis

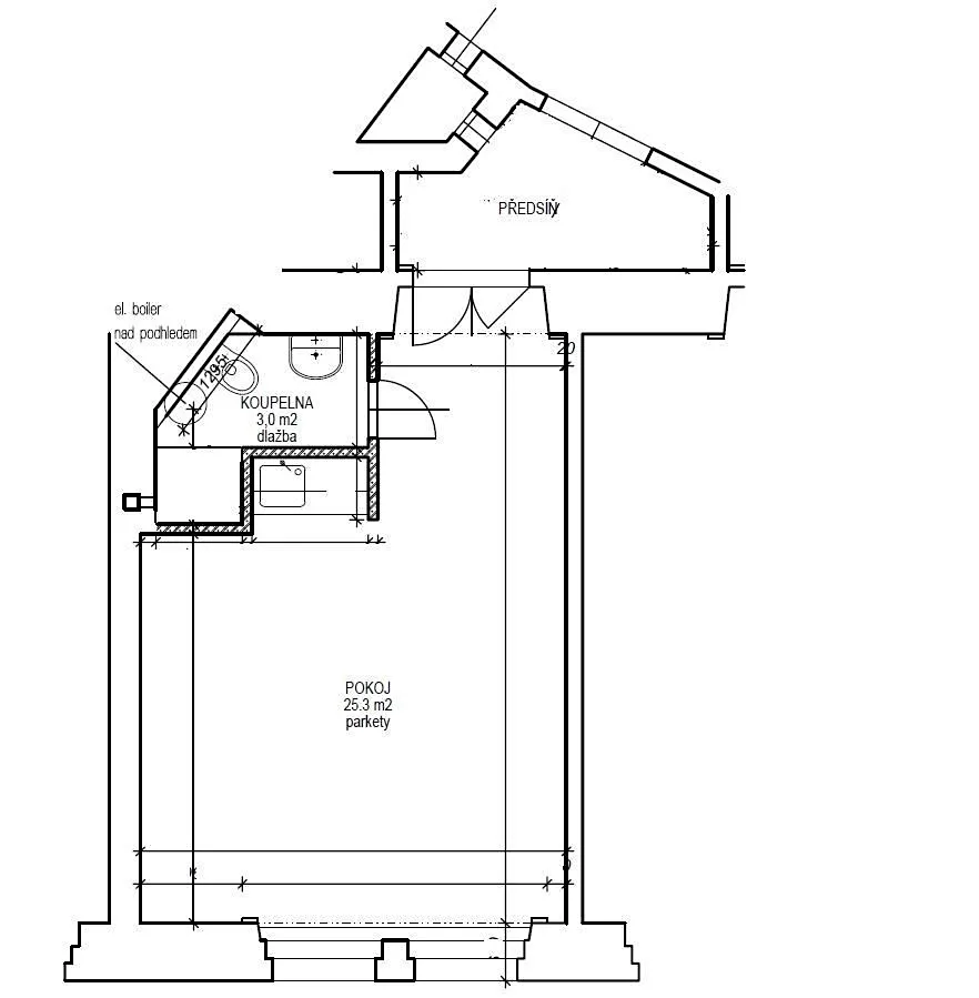
Útulný světlý byt 1+kk o celkové obytné ploše 32 m2, je situován ve 4. patře domu po rekonstrukci s výtahem ve velmi žádané rezidenční lokalitě na Praze 1 Staré Město, Martinská ulice.
Byt je po kompletní rekonstrukci a dispozičně nabízí jednu obytnou místnost s kuchyňským koutem, koupelnu (sprchový kout, toalety, umyvadlo) a vstupní halu s vestavěnými úložnými prostory. K vybavení bytu patří kvalitní dřevěné parkety, dlažba, bezpečností dveře a elektrický kotel.
Byt se nachází v historické části města, s veškerou občanskou vybaveností (supermarket Tesco, lékárna, restaurace, kavárny, banky, atd), v pěší dostupností nábřeží Vltavy, parku Kampa, Malé Strany Petřín, také Národního divadla, a jiných historických památek. Dobrá dopravní dostupnost metrem (Můstek/Národní třída) anebo tramvají do každé části Prahy.

Poplatky za služby a energie se hradí zvlášť. Vratná kauce 2 nájmy. Provize RK.
Byt je k dispozici od února 2026. Prohlídky možné po dohodě.

Cena
17 900 Kč /za měsíc
Poznámka k ceně
Poplatky za služby a energie se hradí zvlášť.
Aktualizováno
28. 11. 2025
Adresa
Martinská, Praha, Staré Město
ID
954457
Stavba
Cihlová
Stav objektu
Velmi dobrý
Patro
5.
Vybaveno
Ne
Vlastnictví
Osobní
Užitná plocha
32 m2
Podlahová plocha
32 m2
Třída energetické náročnosti
G - Mimořádně nehospodárná
Elektřina
230V
Výtah

Máte zájem o tuto nemovitost?

Tímto, v souladu s nařízením Evropského parlamentu a Rady (EU) 2016/679, v platném znění, prohlašuji, že mi je alespoň 16 let a uděluji tak svůj souhlas se zpracováním zadaných údajů (jméno, telefon, e-mail, ip adresa) společnosti B3 Technology, s.r.o., IČ: 07330600, se sídlem Novostavby 126/23, 435 11 Lom (správce dat), za účelem předání dotazu z tohoto formuláře Vámi vybranému inzerentovi a zpětného kontaktování mé osoby. Osobní údaje bude správce zpracovávat manuálně i automaticky přímo prostřednictvím svých zaměstnanců. Informace předané tímto formulářem budou uloženy v databázi správce maximálně po dobu 10 let. Odvolání souhlasu s uložením a zpracováním poskytnutých dat lze e-mailem na info@realitymat.cz. V případě podezření na neoprávněné použití Vámi poskytnutých údajů máte právo předat podnět k šetření Úřadu pro ochranu osobních údajů. Více informací
Chystáte se prodat nemovitost?
Pomůžeme Vám!

Kontakt

Eva Cinculová

Eva Cinculová

Přihlášení k odběru

Nenechte si ujít nejnovější nabídky pronájmu bytů 1+kk v Praze 1.

Podobné nabídky