Prodej atypického bytu, Praha - Karlín, Šaldova, 194 m2 (ID: 2016238)

Šaldova, Praha, Karlín


30 990 000 Kč /za nemovitost
HYPOTÉKA od 138 507 Kč /měs.
Regionální dodavatelé v Praze 8

Stěhovací služby

Výkup a prodej starého nábytku

Popis

Nabízíme k prodeji exkluzivní bydlení v jedné z nejžádanějších pražských lokalit – v Karlíně, v ulici Šaldova, která leží v srdci městské části Prahy 8. Vstup do prostorného bytu se nachází ve čtvrtém podlaží zrekonstruovaného domu s výtahem.

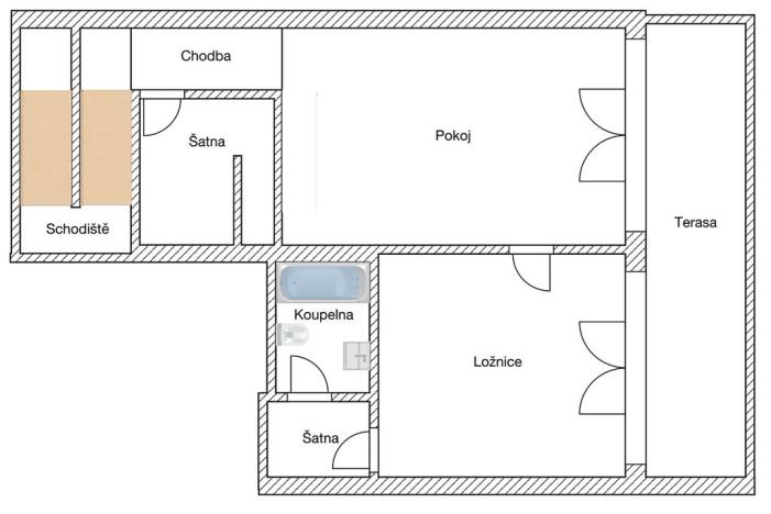
Celková užitná plocha bytu v osobním vlastnictví s dispozicí 6+KK a třemi koupelnami (na každém podlaží jedna) činí 193,84 m², z čehož čistá obytná plocha je 163,86 m². Byt disponuje shodně prostornou lodžií, umístěnou v nižším podlaží, která je uzavíratelná posuvnými skly a terasou ve vyšším podlaží. Každá z nich má výměru 14,99 m². Praktická je též prostorná šatna na podlaží u manželské ložnice.
Vysoká kvalita interiéru bytu s důrazem na detail a moderní životní styl (kuchyňská linka s ostrůvkem), podtrhuje nadstandardní obytné podmínky. U kuchyně je také k dispozici spíž o výměře 4,87 m2.
Byt poskytuje nejen dostatek soukromí a klidu, ale také unikátní panoramatický výhled, který zvyšuje estetický zážitek z bydlení. Zvláště působivá je uzavíratelná lodžie, která je ideálním místem pro oddych a relaxaci, nabízí klid uprostřed rušného města. Orientace bytu je na východ a západ.
K bytu náleží dvě kóje umístěné v suterénu za parkovacími stáními, tyto kóje jsou každá o rozměru 9,5 m². Vlastní parkovací stání v této části města představuje velkou výhodu, zejména pak tyto, jelikož jsou přímo naproti výjezdu z podzemní garáže.
Dům, kde se byt nachází, prošel kompletní rekonstrukcí s důrazem na zanechání industriálních prvků, disponuje moderním technickým vybavením, včetně kabelového internetu, centrálního vytápění a klimatizací.
Co se týče lokality, Karlín je známý svým bohatým kulturním životem, skvělými restauracemi, kavárnami a parky, které jsou ideální pro volnočasové aktivity. Obslužnost veřejnou dopravou je na té nejvyšší úrovni díky blízkosti tramvajových zastávek i stanice metra, což zajišťuje rychlou dostupnost do centra města.
Všechny uvedené vlastnosti a vybavení s výhledy, atypické i praktické prvky, by měly splnit očekávání nejnáročnějších klientů hledajících luxusní a přitom útulné bydlení.

Byt je možné financovat hypotékou.

Nezávazné prohlídky a další konzultace jsou možné na základě telefonické, emailové dohody, přičemž nabízím maximální flexibilitu a přizpůsobení se požadavkům zákazníka, zejména o víkendech.
Tato nemovitost představuje výjimečnou příležitost pro ty, kteří hledají kvalitní domov v atraktivní části Prahy.
Těším se na viděnou.

Cena
30 990 000 Kč /za nemovitost Spočítat hypotéku
Aktualizováno
28. 11. 2025
Adresa
Šaldova, Praha, Karlín
ID
967136
Stavba
Smíšená
Stav objektu
Dobrý
Patro
5. z 7
Vybaveno
Částečně
Vlastnictví
Osobní
Užitná plocha
194 m2
Podlahová plocha
163 m2
Třída energetické náročnosti
G - Mimořádně nehospodárná
Elektřina
230V
Odpad
Veřejná kanalizace
Komunikace
Asfaltová
Telekomunikace
Telefon, Internet
Doprava
MHD
Voda
Vodovod
Topné těleso
Podlahové vytápění
Zdroj topení
Ústřední dálkové
Garáž
Sklep
Lodžie
Výtah
Parkování

Máte zájem o tuto nemovitost?

Tímto, v souladu s nařízením Evropského parlamentu a Rady (EU) 2016/679, v platném znění, prohlašuji, že mi je alespoň 16 let a uděluji tak svůj souhlas se zpracováním zadaných údajů (jméno, telefon, e-mail, ip adresa) společnosti B3 Technology, s.r.o., IČ: 07330600, se sídlem Novostavby 126/23, 435 11 Lom (správce dat), za účelem předání dotazu z tohoto formuláře Vámi vybranému inzerentovi a zpětného kontaktování mé osoby. Osobní údaje bude správce zpracovávat manuálně i automaticky přímo prostřednictvím svých zaměstnanců. Informace předané tímto formulářem budou uloženy v databázi správce maximálně po dobu 10 let. Odvolání souhlasu s uložením a zpracováním poskytnutých dat lze e-mailem na info@realitymat.cz. V případě podezření na neoprávněné použití Vámi poskytnutých údajů máte právo předat podnět k šetření Úřadu pro ochranu osobních údajů. Více informací
Chystáte se prodat nemovitost?
Pomůžeme Vám!

Kontakt

Josef Holub

Josef Holub

Přihlášení k odběru

Nenechte si ujít nejnovější nabídky prodeje atypických bytů v Praze 8.

Podobné nabídky