Prodej obchodního prostoru, Praha - Holešovice, Jateční, 244 m2

Jateční, Praha, Holešovice


19 500 000 Kč /za nemovitost
HYPOTÉKA od 87 153 Kč /měs.

(Včetně provize RK a právního servisu)


Regionální dodavatelé v Praze 7

Stěhovací služby

Výkup a prodej starého nábytku

Popis

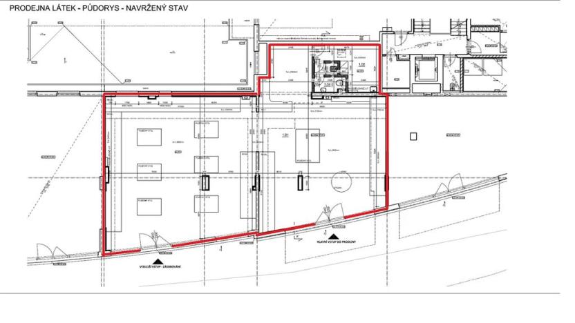
Nabízíme k prodeji komerční prostor o celkové výměře 244 m² v Praze 7 – Holešovicích. Prostor se fakticky skládá ze dvou samostatných jednotek, z nichž každá má vlastní vstup z ulice, takže jej lze v případě potřeby stavebně i provozně rozdělit na dvě nezávislé části. Jednotka se nachází v přízemí domu, s přímým vstupem z ulice a velkými výkladci. K prostoru náleží čtyři parkovací stání v garážích domu.

Prostor byl dlouhodobě využíván jako prodejna látek a galanterie. V současné době je obchod uzavřen, nicméně je možné jej převzít jako již připravený provoz – včetně vybavení a zásob zboží. V obchodě se nyní nacházejí látky a galanterie v hodnotě cca 12 195 000 Kč (hodnota zásob bez DPH činí 10 078 512 Kč).

Varianta 1 – prodej prostor + zásoby zboží jako funkční obchod

Celková kupní cena činí 25,7 mil. Kč (bez DPH).
V této variantě kupující získá:
• nebytový prostor v hodnotě cca 19,7 mil. Kč,
• zásoby látek a galanterie v hodnotě cca 6 mil. Kč (toto zboží podléhá DPH).

Konkrétní struktura ceny a rozdělení mezi nemovitost a zásoby bude upřesněno při osobním jednání.

Varianta 2 – samostatný prodej prostor

Je možný také samostatný prodej zásob zboží jinému zájemci a následný prodej samotného prostoru. V takovém případě bude výsledná kupní cena prostor určena podle dohody a dle dosažené prodejní ceny zásob; orientačně se počítá s částkou okolo 22,6 mil. Kč bez DPH za prázdný prostor.

Prostor je vhodný jak pro pokračování v provozu obchodu s látkami, tak pro jiný maloobchod, showroom či služby, které ocení viditelné umístění v oblíbené lokalitě Holešovic, možnost rozdělení na dva samostatné provozy a komfort v podobě čtyř parkovacích míst v garážích domu.

Cena
19 500 000 Kč /za nemovitost Spočítat hypotéku
Poznámka k ceně
Včetně provize RK a právního servisu
Aktualizováno
28. 11. 2025
Adresa
Jateční, Praha, Holešovice
Stavba
Smíšená
Stav objektu
Velmi dobrý
Užitná plocha
244 m2
Podlahová plocha
244 m2
Třída energetické náročnosti
B - Velmi úsporná
Ukazatel energetické náročnosti
84 kWh/m2 za rok
Elektřina
230V
Voda
Vodovod
Garáž

Máte zájem o tuto nemovitost?

Tímto, v souladu s nařízením Evropského parlamentu a Rady (EU) 2016/679, v platném znění, prohlašuji, že mi je alespoň 16 let a uděluji tak svůj souhlas se zpracováním zadaných údajů (jméno, telefon, e-mail, ip adresa) společnosti B3 Technology, s.r.o., IČ: 07330600, se sídlem Novostavby 126/23, 435 11 Lom (správce dat), za účelem předání dotazu z tohoto formuláře Vámi vybranému inzerentovi a zpětného kontaktování mé osoby. Osobní údaje bude správce zpracovávat manuálně i automaticky přímo prostřednictvím svých zaměstnanců. Informace předané tímto formulářem budou uloženy v databázi správce maximálně po dobu 10 let. Odvolání souhlasu s uložením a zpracováním poskytnutých dat lze e-mailem na info@realitymat.cz. V případě podezření na neoprávněné použití Vámi poskytnutých údajů máte právo předat podnět k šetření Úřadu pro ochranu osobních údajů. Více informací
Chystáte se prodat nemovitost?
Pomůžeme Vám!

Kontakt

Ekaterina Shchekaleva

Ekaterina Shchekaleva

Přihlášení k odběru

Nenechte si ujít nejnovější nabídky prodeje obchodních prostor v Praze 7.

Podobné nabídky