Prodej bytu 3+kk, Praha - Břevnov, Za Strahovem, 54 m2

Za Strahovem, Praha, Břevnov


8 300 000 Kč /za nemovitost
HYPOTÉKA od 37 096 Kč /měs.
Regionální dodavatelé v Praze 6

Stěhovací služby

Výkup a prodej starého nábytku

Popis

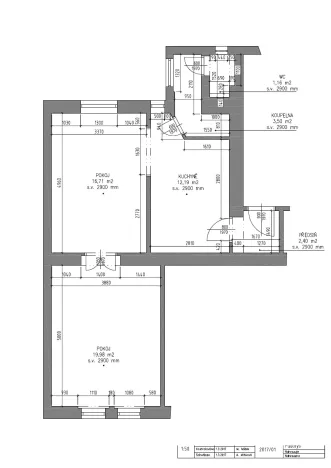
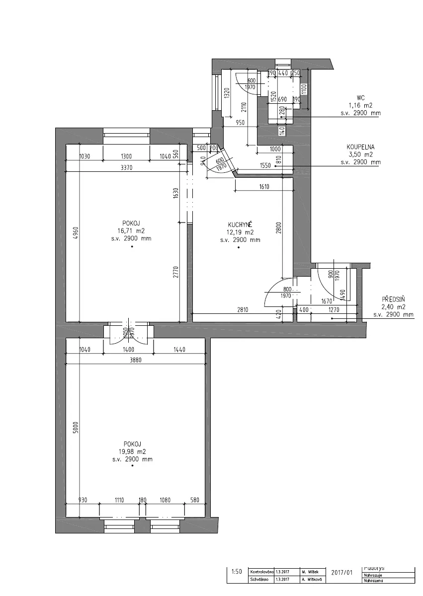
Ve výhradním zastoupení majitele nabízím k prodeji světlý byt 3+kk o CP 54,1 m2 s věcným břemenem užívání zahrady za domem ve prospěch bytu.

Byt se skládá z:
- předsíně (2,4 m2)
- prostorné kuchyně (12,19 m2) s plně vybavenou linkou (myčka, pračka, plynová varná deska, el. trouba, digestoř a lednice)
- průchozího pokoje (16,71 m2)
- ložnice (19,98 m2)
- koupelny se sprchovým koutem a WC (3,50 m2 a 1,16 m2)

Velkou výhodou bytu je jeho umístění v klidné části pražského Břevnova, která nabízí jak spoustu zeleně (park Královka, Smiřického) a sportovišť (Strahov), tak i výbornou dopravní dostupnost do centra města. Veškerá občanská vybavenost na dosah ruky (obchody, škola, školka, lékaři, park,...).

V případě otázek nebo zájmu mě neváhejte kontaktovat.

Cena
8 300 000 Kč /za nemovitost Spočítat hypotéku
Náklady na bydlení
3292 + elektřina, plyn, internet
Aktualizováno
26. 11. 2025
Adresa
Za Strahovem, Praha, Břevnov
Stavba
Cihlová
Stav objektu
Velmi dobrý
Patro
3.
Lokalita objektu
Klidná část obce
Vlastnictví
Osobní
Užitná plocha
54 m2
Třída energetické náročnosti
G - Mimořádně nehospodárná
Elektřina
230V
Plyn
Plynovod
Odpad
Veřejná kanalizace
Komunikace
Dlážděná
Doprava
Silnice, MHD, Autobus
Voda
Vodovod
Topné těleso
Radiátory
Zdroj topení
Plynový kotel
Zdroj teplé vody
Plynový kotel

Máte zájem o tuto nemovitost?

Tímto, v souladu s nařízením Evropského parlamentu a Rady (EU) 2016/679, v platném znění, prohlašuji, že mi je alespoň 16 let a uděluji tak svůj souhlas se zpracováním zadaných údajů (jméno, telefon, e-mail, ip adresa) společnosti B3 Technology, s.r.o., IČ: 07330600, se sídlem Novostavby 126/23, 435 11 Lom (správce dat), za účelem předání dotazu z tohoto formuláře Vámi vybranému inzerentovi a zpětného kontaktování mé osoby. Osobní údaje bude správce zpracovávat manuálně i automaticky přímo prostřednictvím svých zaměstnanců. Informace předané tímto formulářem budou uloženy v databázi správce maximálně po dobu 10 let. Odvolání souhlasu s uložením a zpracováním poskytnutých dat lze e-mailem na info@realitymat.cz. V případě podezření na neoprávněné použití Vámi poskytnutých údajů máte právo předat podnět k šetření Úřadu pro ochranu osobních údajů. Více informací
Chystáte se prodat nemovitost?
Pomůžeme Vám!

Kontakt

Lukáš Fryč

Lukáš Fryč

Přihlášení k odběru

Nenechte si ujít nejnovější nabídky prodeje bytů 3+kk v Praze 6.

Podobné nabídky