Pronájem skladu, Čerčany, Mlynářská, 222 m2

Mlynářská, Čerčany


34 000 Kč /za měsíc
Získejte výhodnou HYPOTÉKU

(+DPH)


Regionální dodavatelé v Čerčanech

Popis

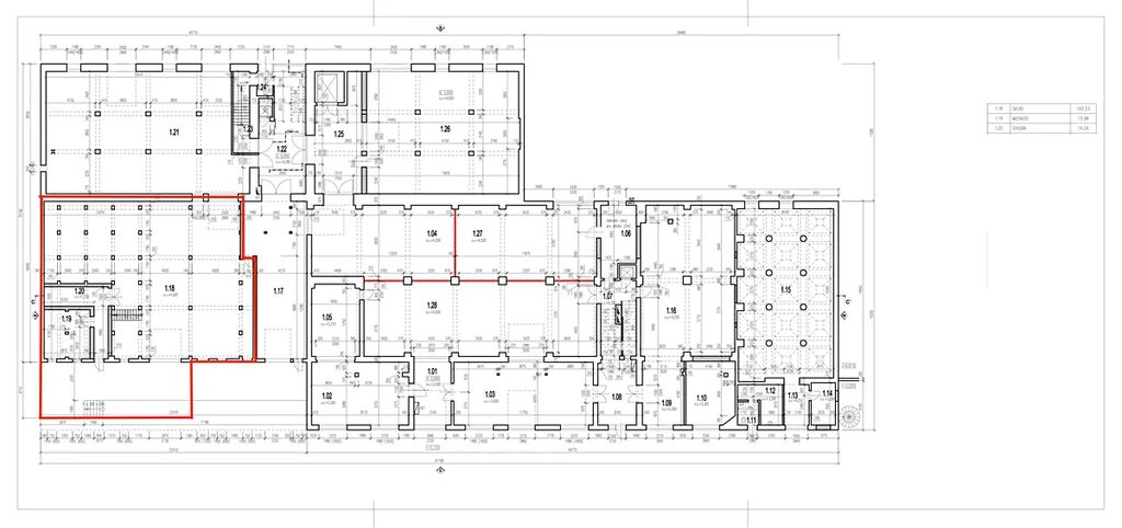
Nabízíme k pronájmu skladovací prostory v Čerčanech. Jedná se o skladový prostor 222 m2 a cca 40 m2 rampy.

Prostor nabízí 192,5 m2 skladu se sekčními vraty s přístupem z rampy a samostatnou místnost 16 m2 využitelnou jako kancelář nebo skladovací prostor lehčího zboží. Celý prostor je vyznačený v půdorysu v inzerátu.

Parkování je možné před vyhrazenou částí rampy. Areál je přístupný 24/7.

Prostor je k dispozici od 1. března 2026 (aktuálně je sklad ještě využíván současným nájemníkem).

Měsíční nájemné za celou halu činí 34 000 Kč + DPH. Energie se vyúčtovávají ročně dle skutečné spotřeby.
Při uzavření nájmu se také hradí kauce ve výši 2 nájmů - 68 000 Kč a dále provize ve výši jednoho nájmu 34 000 Kč + DPH.

Pro více informací o této nemovitosti nebo sjednání prohlídky mě, prosím, kontaktujte.

Cena
34 000 Kč /za měsíc
Poznámka k ceně
+DPH
Aktualizováno
26. 11. 2025
Adresa
Mlynářská, Čerčany
Stavba
Smíšená
Stav objektu
Velmi dobrý
Užitná plocha
222 m2

Máte zájem o tuto nemovitost?

Tímto, v souladu s nařízením Evropského parlamentu a Rady (EU) 2016/679, v platném znění, prohlašuji, že mi je alespoň 16 let a uděluji tak svůj souhlas se zpracováním zadaných údajů (jméno, telefon, e-mail, ip adresa) společnosti B3 Technology, s.r.o., IČ: 07330600, se sídlem Novostavby 126/23, 435 11 Lom (správce dat), za účelem předání dotazu z tohoto formuláře Vámi vybranému inzerentovi a zpětného kontaktování mé osoby. Osobní údaje bude správce zpracovávat manuálně i automaticky přímo prostřednictvím svých zaměstnanců. Informace předané tímto formulářem budou uloženy v databázi správce maximálně po dobu 10 let. Odvolání souhlasu s uložením a zpracováním poskytnutých dat lze e-mailem na info@realitymat.cz. V případě podezření na neoprávněné použití Vámi poskytnutých údajů máte právo předat podnět k šetření Úřadu pro ochranu osobních údajů. Více informací
Chystáte se prodat nemovitost?
Pomůžeme Vám!

Kontakt

Vendula Šťávová

Vendula Šťávová

Přihlášení k odběru

Nenechte si ujít nejnovější nabídky pronájmu skladů v Čerčanech.

Tipy Realitymatu

Podobné nabídky