Pronájem obchodního prostoru, Praha - Stodůlky, Hábova, 248 m2 (ID: 2011059)

Hábova, Praha, Stodůlky


123 652 Kč /za měsíc
Získejte výhodnou HYPOTÉKU

(+ DPH + cca 10 701 Kč + elektřina)


Regionální dodavatelé v Praze 5

Stěhovací služby

Výkup a prodej starého nábytku

Popis

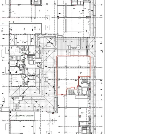
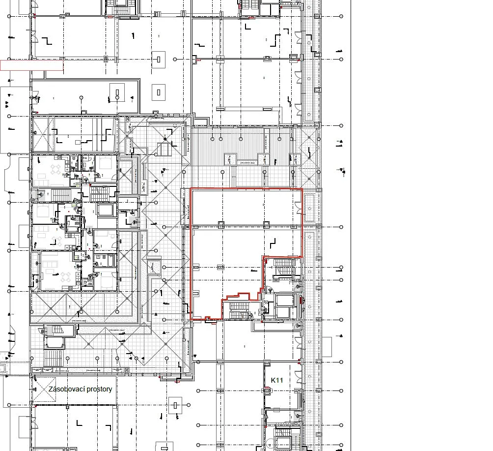
Nabízíme k pronájmu atraktivní obchodní prostory o výměře 247,8 m² ve stavu „shell & core,“ situované v přízemí nově dokončeného polyfunkčního projektu Paprsek Stodůlky, v docházkové vzdálenosti stanice metra B – Stodůlky.

Prostory disponují bezbariérovým přístupem a možností využití venkovní plochy formou předzahrádky. Díky své poloze a dispozici jsou vhodné pro gastronomický provoz (restaurace, kavárna), prodejnu, kanceláře, ordinaci či další typy obchodních a službových konceptů.
Projekt je zasazen do zavedené a hustě osídlené rezidenční lokality s vysokou koncentrací potenciálních zákazníků. Velkou výhodou je umístění přímo v rámci projektu, jehož součástí je supermarket Albert, lékárna, trafika a další služby, které generují stabilní každodenní pohyb zákazníků a zajišťují vysokou frekvenci návštěvnosti. Součástí areálu je přibližně 270 bytových jednotek a více než 2 300 m² obchodních ploch. V bezprostřední blízkosti se navíc nachází oblíbená odpočinková zóna Centrálního parku.

Významným benefitem projektu je kvalitně řešené parkování pro zákazníky přímo v rámci objektu. K dispozici je cca 30 parkovacích stání v podzemních garážích určených pro návštěvníky, přičemž parkování je zdarma po dobu 2 hodin. Celý prostor je monitorován moderním kamerovým systémem, který zajišťuje vysokou úroveň bezpečnosti a kontroly provozu.

Tento standard parkování odpovídá současným nárokům na komfortní městské retailové prostředí a představuje důležitý faktor pro stabilní návštěvnost, vyšší obraty a celkovou atraktivitu provozovny z pohledu koncového zákazníka.

Prostory jsou ihned k dispozici. V rámci projektu je možné pronajmout také menší jednotku o výměře 164,7 m². Za příplatek lze zajistit parkovací stání nebo sklepní kóji o velikosti 15,6 m².

Pro více informací či sjednání prohlídky nás neváhejte kontaktovat.

Cena
123 652 Kč /za měsíc
Poznámka k ceně
+ DPH + cca 10 701 Kč + elektřina
Aktualizováno
1. 4. 2026
Adresa
Hábova, Praha, Stodůlky
Stavba
Smíšená
Stav objektu
Novostavba
Patro
1. z 8
Vybaveno
Ne
Lokalita objektu
Rušná část obce
Užitná plocha
248 m2
Třída energetické náročnosti
B - Velmi úsporná
Elektřina
230V
Odpad
Veřejná kanalizace
Komunikace
Asfaltová
Telekomunikace
Telefon, Internet, Kabelová televize, Kabelové rozvody, Ostatní
Doprava
Dálnice, Silnice, MHD, Autobus
Voda
Vodovod
Topné těleso
Radiátory
Zdroj topení
Centrální dálkové
Zdroj teplé vody
Centrální dálkový ohřev
Garáž
Bezbarierový přístup

Máte zájem o tuto nemovitost?

Tímto, v souladu s nařízením Evropského parlamentu a Rady (EU) 2016/679, v platném znění, prohlašuji, že mi je alespoň 16 let a uděluji tak svůj souhlas se zpracováním zadaných údajů (jméno, telefon, e-mail, ip adresa) společnosti B3 Technology, s.r.o., IČ: 07330600, se sídlem Novostavby 126/23, 435 11 Lom (správce dat), za účelem předání dotazu z tohoto formuláře Vámi vybranému inzerentovi a zpětného kontaktování mé osoby. Osobní údaje bude správce zpracovávat manuálně i automaticky přímo prostřednictvím svých zaměstnanců. Informace předané tímto formulářem budou uloženy v databázi správce maximálně po dobu 10 let. Odvolání souhlasu s uložením a zpracováním poskytnutých dat lze e-mailem na info@realitymat.cz. V případě podezření na neoprávněné použití Vámi poskytnutých údajů máte právo předat podnět k šetření Úřadu pro ochranu osobních údajů. Více informací
Chystáte se prodat nemovitost?
Pomůžeme Vám!

Kontakt

Ing. Petr Strnad

Ing. Petr Strnad

Přihlášení k odběru

Nenechte si ujít nejnovější nabídky pronájmu obchodních prostor v Praze 5.

Podobné nabídky