Prodej bytu 1+kk, Náchod, Na Letné, 42 m2

Na Letné, Náchod


2 799 000 Kč /za nemovitost
HYPOTÉKA od 12 510 Kč /měs.
Regionální dodavatelé v Náchodě

Popis

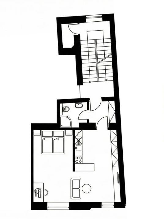
Nabízíme k prodeji světlý a udržovaný investiční byt o dispozici 1+kk a celkové ploše 47 m², umístěný ve 3. patře cihlového domu v klidné a oblíbené lokalitě Na Letné v Náchodě.

Byt je pronajat řádně platícímu nájemci za 9.799kč/mes +poplatky. Ode dne kdy byt koupíte můžete počítat se stabilním výnosem z nájmu a potenciálem růstu ceny nemovitosti.

Dispozice a vybavení:
Byt je po rekonstrukci, s novými plastovými okny. Prostorný obytný byt s kuchyňským koutem, který je plně vybaven varnou deskou, troubou, myčkou a lednicí. Koupelna je vybavena sprchovým koutem, umyvadlem a toaletou.

K bytu náleží:
- Komora v mezipatře – praktický úložný prostor u bytu (1,8 m²)
- Sklepní kóje v suterénu domu (3,1 m²)

Dům a lokalita:
Cihlový dům je po rekonstrukci, ve velmi dobrém stavu, s upravenými společnými prostory. Ulice Na Letné patří mezi vyhledávané části Náchoda – nabízí dostatek zeleně, klidné prostředí a zároveň výbornou dostupnost do centra města. V okolí je kompletní občanská vybavenost – obchody, školy, školky, nemocnice, MHD i volnočasové aktivity.

Pro koho je nemovitost vhodná:
- Ideální pro jednotlivce, pár, nebo menší rodinu k vlastnímu bydlení
- jako investice, měsíční splátku dokážete téměř celou hradit z případného tržního nájmu

Nemovitost nemá žádné právní vady, věcná břemena apod.

V případě zájmu o více informací nebo prohlídku nás neváhejte kontaktovat.

Cena
2 799 000 Kč /za nemovitost Spočítat hypotéku
Aktualizováno
11. 12. 2025
Adresa
Na Letné, Náchod
ID
N434
Stavba
Cihlová
Stav objektu
Velmi dobrý
Patro
3. z 4
Typ objektu
Patrový
Vlastnictví
Osobní
Užitná plocha
42 m2
Podlahová plocha
47 m2
Třída energetické náročnosti
D - Méně úsporná
Sklep
Výtah

Máte zájem o tuto nemovitost?

Tímto, v souladu s nařízením Evropského parlamentu a Rady (EU) 2016/679, v platném znění, prohlašuji, že mi je alespoň 16 let a uděluji tak svůj souhlas se zpracováním zadaných údajů (jméno, telefon, e-mail, ip adresa) společnosti B3 Technology, s.r.o., IČ: 07330600, se sídlem Novostavby 126/23, 435 11 Lom (správce dat), za účelem předání dotazu z tohoto formuláře Vámi vybranému inzerentovi a zpětného kontaktování mé osoby. Osobní údaje bude správce zpracovávat manuálně i automaticky přímo prostřednictvím svých zaměstnanců. Informace předané tímto formulářem budou uloženy v databázi správce maximálně po dobu 10 let. Odvolání souhlasu s uložením a zpracováním poskytnutých dat lze e-mailem na info@realitymat.cz. V případě podezření na neoprávněné použití Vámi poskytnutých údajů máte právo předat podnět k šetření Úřadu pro ochranu osobních údajů. Více informací
Chystáte se prodat nemovitost?
Pomůžeme Vám!

Kontakt

Call Centrum CAPITAL Trust, a.s .

Call Centrum CAPITAL Trust, a.s .

Přihlášení k odběru

Nenechte si ujít nejnovější nabídky prodeje bytů 1+kk v Náchodě.

Podobné nabídky