Prodej skladu, Bělov, 214 m2

Bělov


Cena na vyžádání /za nemovitost
Získejte výhodnou HYPOTÉKU

(dohodou, cena k jednání)


Regionální dodavatelé v Bělově

Popis

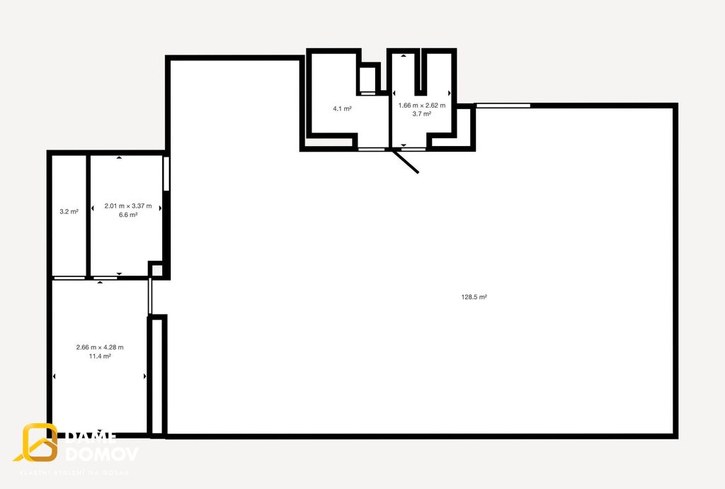
V obci Bělov, opravdu pár minut od Otrokovic, nabízíme k prodeji zajímavý objekt s bohatou historií – bývalou Bělovskou hospodu, dnes upravenou na dům s prostory pro uskladnění aut, nebo motorek a se zázemím.

Nemovitost je v dobrém technickém stavu a je napojena na elektřinu, obecní vodovod i kanalizaci. Dominantou je hlavní místnost – „sál“ – s vjezdem přes elektricky ovládaná vrata kde uskladníte až 15 aut nebo mnoho motocyklů. Dále je zde kancelář, kuchyňka, sociální zázemí (toalety, sprcha) a sklep. Bočním průchodem se dostanete na zadní dvorek, včetně úložného prostoru a vstupu na půdu, která nabízí možnost rozšíření obytné či užitné části.

Současné využití objektu je ideální pro sběratele, nadšence do automobilů a motorek, nebo pro více vlastníků, kteří potřebují bezpečné a kryté parkování. Díky dispozici a poloze se po jednoduché úpravě nabízí i široké spektrum dalších možností pro Vaše potřeby. Rodinný dům pro bydlení, nebo pronájem, kombinace bydlení a podnikání, dílna, sklad, případně jiné činnosti pro veřejnost, nebo svou potřebu.

Bělov má základní občanskou vybavenost a výborné spojení – do Otrokovic pár minut, do Zlína cca 15 minut, rychlý nájezd na dálnici D55 směr Uherské Hradiště či Brno. Okolní příroda je ideální pro procházky a cyklovýlety.



Pokud Vás tato nabídka zaujala, neváhejte nás kontaktovat pro bližší informace k objektu, nebo domluvení prohlídky.

Cena
Cena na vyžádání Spočítat hypotéku
Poznámka k ceně
dohodou, cena k jednání
Aktualizováno
21. 11. 2025
Adresa
Bělov
ID
14317
Stavba
Cihlová
Stav objektu
Dobrý
Typ objektu
Přízemní
Druh objektu
Řadový
Lokalita objektu
Centrum obce
Užitná plocha
214 m2
Podlahová plocha
214 m2
Plocha pozemku
272 m2
Třída energetické náročnosti
G - Mimořádně nehospodárná
Elektřina
230V, 400V
Odpad
Veřejná kanalizace
Komunikace
Asfaltová
Doprava
Silnice, Autobus
Voda
Vodovod

Máte zájem o tuto nemovitost?

Tímto, v souladu s nařízením Evropského parlamentu a Rady (EU) 2016/679, v platném znění, prohlašuji, že mi je alespoň 16 let a uděluji tak svůj souhlas se zpracováním zadaných údajů (jméno, telefon, e-mail, ip adresa) společnosti B3 Technology, s.r.o., IČ: 07330600, se sídlem Novostavby 126/23, 435 11 Lom (správce dat), za účelem předání dotazu z tohoto formuláře Vámi vybranému inzerentovi a zpětného kontaktování mé osoby. Osobní údaje bude správce zpracovávat manuálně i automaticky přímo prostřednictvím svých zaměstnanců. Informace předané tímto formulářem budou uloženy v databázi správce maximálně po dobu 10 let. Odvolání souhlasu s uložením a zpracováním poskytnutých dat lze e-mailem na info@realitymat.cz. V případě podezření na neoprávněné použití Vámi poskytnutých údajů máte právo předat podnět k šetření Úřadu pro ochranu osobních údajů. Více informací
Chystáte se prodat nemovitost?
Pomůžeme Vám!

Kontakt

Radek Motyka

Radek Motyka

Přihlášení k odběru

Nenechte si ujít nejnovější nabídky prodeje skladů v Bělově.

Podobné nabídky