Pronájem bytu 2+kk, Praha - Řepy, Šimonova, 53 m2 (ID: 2010137)

Šimonova, Praha, Řepy


18 900 Kč /za měsíc
Získejte výhodnou HYPOTÉKU

(+ 3200 Kč zálohy na služby + elektřina, vratná jistota 22100 Kč, provize 22100 Kč + DPH)


Regionální dodavatelé v Praze 6

Stěhovací služby

Výkup a prodej starého nábytku

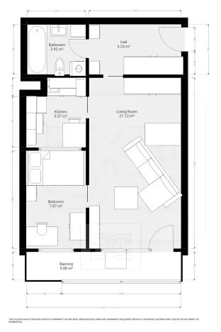
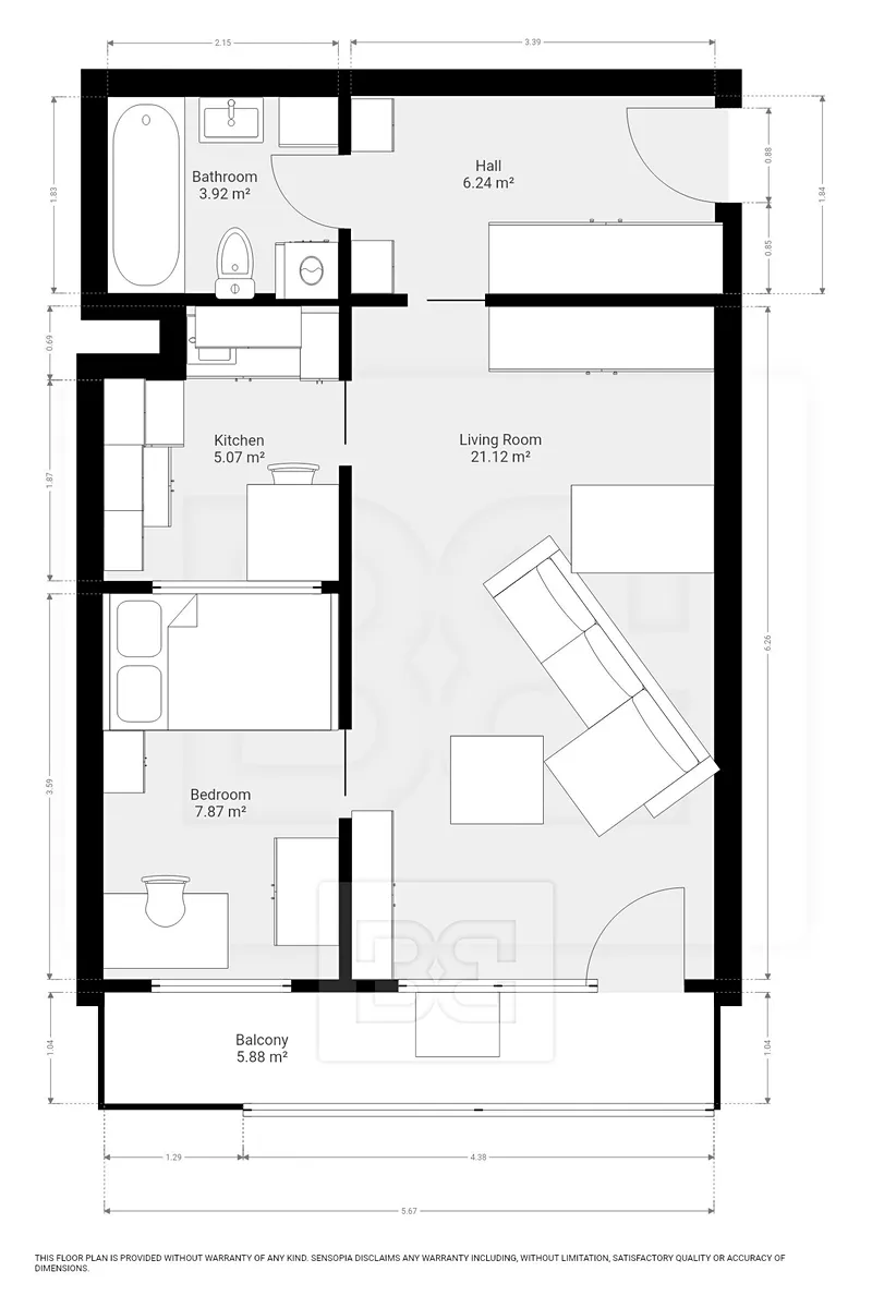
Popis

K nastěhování ihned.

Nabízíme k pronájmu krásny byt 2+kk o velikosti 53m², situovaný v pečlivě udržovaném panelovém domě s výtahem. Celý byt je řešený atypicky a disponuje na míru vyrobeným nábytkem a posuvnými dveřmi pro maximální využití prostoru.

Dispozice bytu:
• Vstupní předsíň s vestavěnými skříněmi
• Koupelna s vanou, toaletou, umyvadlem, pračkou a vestavnou úložnou skříní
• Prostorný obývací pokoj s vestavěnou skříní, pracovním stolem a gaučem
• Kuchyně je umístěna samostatně a je kompletně vybavena ( myčkou, lednicí, elektrickou troubou. digestoří)
• Samostatná ložnice s postelí, pracovním stolem a skříní
• K bytu náleží sklepní


Lokalita:
Byt se nachází v oblíbené části Řep s výbornou občanskou vybaveností v okolí (obchody, služby, školy, MHD) i dostupností do centra města.


Měsíční nájem činí 18900 Kč. Poplatky za služby 3200 Kč + elektrická energie. Vratná kauce 22100 Kč. Provize RK 22100 Kč + DPH.

Pozor, velkou výhodou pro potenciální nájemce je, že byt je v profesionální správě společnosti Bohemian Estates, jenž správu pro majitele tohoto bytu vykonává. Nájemci je k dispozici kontaktní osoba, která řeší veškeré záležitosti s nájmem spojené (údržba, platby nájemného, vyúčtování, dodatky, a pod.). Nájemci je tak zajištěno bezproblémové užívání bytu s kompletním servisem.

Cena
18 900 Kč /za měsíc
Poznámka k ceně
+ 3200 Kč zálohy na služby + elektřina, vratná jistota 22100 Kč, provize 22100 Kč + DPH
Aktualizováno
20. 11. 2025
Adresa
Šimonova, Praha, Řepy
ID
N08563
Stavba
Panelová
Stav objektu
Velmi dobrý
Patro
4. z 11
Lokalita objektu
Klidná část obce
Vlastnictví
Družstevní
Užitná plocha
53 m2
Třída energetické náročnosti
B - Velmi úsporná
Ukazatel energetické náročnosti
81 kWh/m2 za rok
Doprava
Vlak, Dálnice, Silnice, MHD, Autobus
Topné těleso
Radiátory
Zdroj topení
Ústřední dálkové
Zdroj teplé vody
Centrální dálkový ohřev
Sklep
Lodžie

Máte zájem o tuto nemovitost?

Tímto, v souladu s nařízením Evropského parlamentu a Rady (EU) 2016/679, v platném znění, prohlašuji, že mi je alespoň 16 let a uděluji tak svůj souhlas se zpracováním zadaných údajů (jméno, telefon, e-mail, ip adresa) společnosti B3 Technology, s.r.o., IČ: 07330600, se sídlem Novostavby 126/23, 435 11 Lom (správce dat), za účelem předání dotazu z tohoto formuláře Vámi vybranému inzerentovi a zpětného kontaktování mé osoby. Osobní údaje bude správce zpracovávat manuálně i automaticky přímo prostřednictvím svých zaměstnanců. Informace předané tímto formulářem budou uloženy v databázi správce maximálně po dobu 10 let. Odvolání souhlasu s uložením a zpracováním poskytnutých dat lze e-mailem na info@realitymat.cz. V případě podezření na neoprávněné použití Vámi poskytnutých údajů máte právo předat podnět k šetření Úřadu pro ochranu osobních údajů. Více informací
Chystáte se prodat nemovitost?
Pomůžeme Vám!

Kontakt

Adam Kubeš

Adam Kubeš

Přihlášení k odběru

Nenechte si ujít nejnovější nabídky pronájmu bytů 2+kk v Praze 6.

Podobné nabídky