Prodej bytu 3+kk, Praha - Modřany, K Vystrkovu, 73 m2

K Vystrkovu, Praha, Modřany


11 990 000 Kč /za nemovitost
HYPOTÉKA od 53 588 Kč /měs.

(včetně poplatků, včetně provize, včetně právního servisu)


Regionální dodavatelé v Praze 4

Stěhovací služby

Výkup a prodej starého nábytku

Popis

Vítejte ve Staromodřanské rezidenci — moderním bytovém domě v ulici K Vystrkovu, postaveném v roce 2016. Dům se nachází v klidné části pražských Modřan a nabízí ideální spojení pohodového bydlení v zeleni s výbornou dopravní dostupností do centra Prahy. Zastávky MHD jsou v docházkové vzdálenosti, tramvají se dostanete do centra zhruba za dvacet minut, a skvělé je i napojení na městský okruh a hlavní silniční tahy.

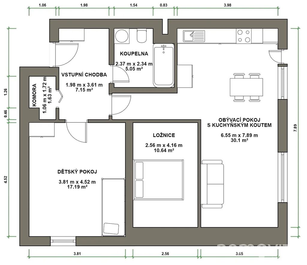
Nabízený byt je atypické 3+kk o celkové ploše 72,8 m², situovaný v přízemí domu. Jeho jedinečnost podtrhuje zahrada o výměře téměř 140 m², která náleží k bytu s právem výlučného užívání – ideální pro rodinné posezení, grilování nebo odpočinek v soukromí. Dispozice bytu nabízí prostorný obývací pokoj s kuchyňským koutem, dvě ložnice a moderní koupelnu. Dominantou obytné části je designová červená kuchyňská linka v lesku, která dodává prostoru charakter a osobitý styl.

K bytu náleží parkovací stání v kryté garáži s velmi pohodlným a širokým vjezdem a také praktická sklepní kóje.

Okolí Staromodřanské rezidence nabízí vše, co si můžete přát pro aktivní i rodinný život. V těsné blízkosti se nachází oblíbená cyklostezka podél Vltavy, ideální pro běh, brusle nebo klidné procházky. Nedaleko najdete školy, školky, obchody, lékaře i restaurace – vše pohodlně dostupné pěšky.

Modřany navíc procházejí dynamickým rozvojem. V bezprostřední blízkosti vzniká nový projekt Cukrovar Modřany, který do lokality přinese další služby, kavárny, obchody a kulturní prostory. Díky tomu oblast získává ještě větší hodnotu a stává se jednou z nejžádanějších částí Prahy pro moderní městské bydlení.

Byt ve Staromodřanské rezidenci je ideální volbou pro ty, kdo hledají klidné, moderní a komfortní bydlení s výbornou dopravní dostupností a rostoucím potenciálem celé lokality. Kombinace soukromé zahrady, promyšlené dispozice a atraktivního okolí tvoří z této nabídky jedinečnou příležitost. Přijďte se přesvědčit osobně – možná právě tady na vás čeká váš nový domov.

Inzerát obsahuje mimo fotografií a plánku také video a virtuální prohlídku nemovitosti - prosím o shlédnutí, ať máte maximum informací.

Budu se na Vás těšit na prohlídkách.

Cena
11 990 000 Kč /za nemovitost Spočítat hypotéku
Poznámka k ceně
včetně poplatků, včetně provize, včetně právního servisu
Aktualizováno
19. 11. 2025
Adresa
K Vystrkovu, Praha, Modřany
ID
28780
Stavba
Skeletová
Stav objektu
Velmi dobrý
Patro
1. z 6
Vybaveno
Částečně
Vlastnictví
Osobní
Užitná plocha
73 m2
Plocha zahrady
140 m2
Třída energetické náročnosti
B - Velmi úsporná
Ukazatel energetické náročnosti
87 kWh/m2 za rok
Elektřina
230V
Odpad
Veřejná kanalizace
Komunikace
Asfaltová
Doprava
Vlak, Dálnice, Silnice, MHD, Autobus
Voda
Vodovod
Topné těleso
Radiátory
Zdroj topení
Plynový kondenzační kotel
Garáž
Sklep
Terasa
Výtah
Bezbarierový přístup
Parkování

Máte zájem o tuto nemovitost?

Tímto, v souladu s nařízením Evropského parlamentu a Rady (EU) 2016/679, v platném znění, prohlašuji, že mi je alespoň 16 let a uděluji tak svůj souhlas se zpracováním zadaných údajů (jméno, telefon, e-mail, ip adresa) společnosti B3 Technology, s.r.o., IČ: 07330600, se sídlem Novostavby 126/23, 435 11 Lom (správce dat), za účelem předání dotazu z tohoto formuláře Vámi vybranému inzerentovi a zpětného kontaktování mé osoby. Osobní údaje bude správce zpracovávat manuálně i automaticky přímo prostřednictvím svých zaměstnanců. Informace předané tímto formulářem budou uloženy v databázi správce maximálně po dobu 10 let. Odvolání souhlasu s uložením a zpracováním poskytnutých dat lze e-mailem na info@realitymat.cz. V případě podezření na neoprávněné použití Vámi poskytnutých údajů máte právo předat podnět k šetření Úřadu pro ochranu osobních údajů. Více informací
Chystáte se prodat nemovitost?
Pomůžeme Vám!

Kontakt

Jan Šťástka

Jan Šťástka

Přihlášení k odběru

Nenechte si ujít nejnovější nabídky prodeje bytů 3+kk v Praze 4.

Podobné nabídky