Pronájem bytu 4+kk, Brno, Lidická, 125 m2 (ID: 2006997)

Lidická, Brno, Veveří


46 000 Kč /za měsíc
Získejte výhodnou HYPOTÉKU
Regionální dodavatelé v Brně

Popis

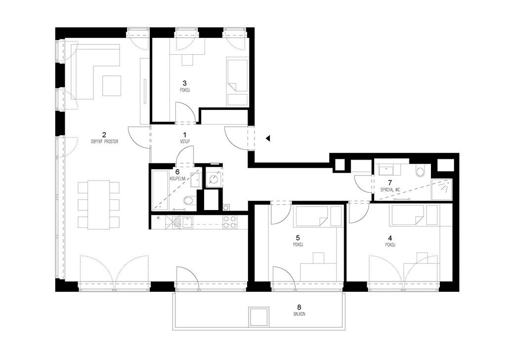
V exkluzivním zastoupení majitele Vám nabízíme Byt 4+kk v třináctém patře v nejvyšší ze tří budov Rezidence Lužánky (ul. Lidická) s krásným výhledem na Lužánecký park. Tento byt tvoří celou stranu tohoto domu a přehlédne vedlejší budovy, výhled se rozšiřuje o centrum Brna i Řečkovice

- Krásný a světlý byt byl nadstandardně zařízen architektonickou kanceláří architekti.in
- Rozloha bytu je 125m2 včetně 12m2 velkého balkónu
- V obývacím pokoji jsou velká francouzská okna a stejně jako na všech ostatních oknech jsou textilní rolety pro vytvoření většího soukromí a komfortu. Rozloha obývacího pokoje s jídelnou a kuchyní je bezmala 40m2. Vztup na prostorný balkón
- Byt je vybavený moderní, na míru vyrobenou kuchyňskou linkou a se všemi spotřebiči značky Whirpool (lednička, myčka, trouba, sklokeramická deska, mikrovlnná trouba)
- V ložnici je na míru zhotovená vestavěná skřín s efektivně vymyšleným vnitřním řešením s posuvnými dveřmi
- Koupelna je vybavena jak vanou tak I sprchovým koutem, toaletou a pračkou
- Oddělená toaleta pro hosty
- Klimatizace
- Možnost připojení kabelové TV a internetu přes poskytovatele DialTelecom
- Byt se pronajímá nevybavený

Jako doplňkové služby poskytujeme:

- Možnost pronájmu parkovacího stání
- Úplné vybavení bytu Rent&Live
- Jednorázový nebo pravidelný úklid

Cena
46 000 Kč /za měsíc
Náklady na bydlení
+ Zálohy na služby: 8000,-Kč
Aktualizováno
18. 11. 2025
Adresa
Lidická, Brno, Veveří
ID
31302
Stavba
Skeletová
Stav objektu
Velmi dobrý
Patro
13.
Vlastnictví
Osobní
Užitná plocha
125 m2
Balkon
Garáž
Sklep

Máte zájem o tuto nemovitost?

Tímto, v souladu s nařízením Evropského parlamentu a Rady (EU) 2016/679, v platném znění, prohlašuji, že mi je alespoň 16 let a uděluji tak svůj souhlas se zpracováním zadaných údajů (jméno, telefon, e-mail, ip adresa) společnosti B3 Technology, s.r.o., IČ: 07330600, se sídlem Novostavby 126/23, 435 11 Lom (správce dat), za účelem předání dotazu z tohoto formuláře Vámi vybranému inzerentovi a zpětného kontaktování mé osoby. Osobní údaje bude správce zpracovávat manuálně i automaticky přímo prostřednictvím svých zaměstnanců. Informace předané tímto formulářem budou uloženy v databázi správce maximálně po dobu 10 let. Odvolání souhlasu s uložením a zpracováním poskytnutých dat lze e-mailem na info@realitymat.cz. V případě podezření na neoprávněné použití Vámi poskytnutých údajů máte právo předat podnět k šetření Úřadu pro ochranu osobních údajů. Více informací
Chystáte se prodat nemovitost?
Pomůžeme Vám!

Kontakt

Lukáš Patočka

Lukáš Patočka

Přihlášení k odběru

Nenechte si ujít nejnovější nabídky pronájmu bytů 4+kk v Brně.

Podobné nabídky