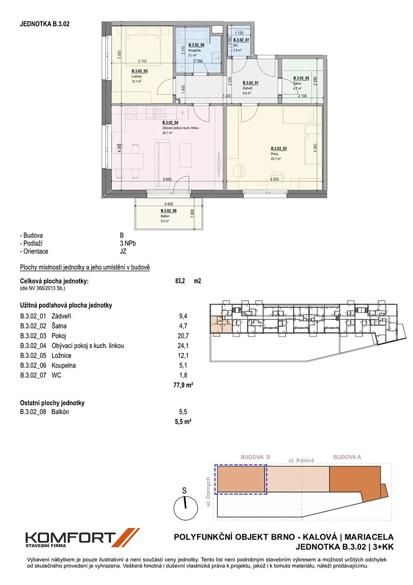
Prodej bytu 3+kk, Brno, Kalová, 83 m2

Kalová, Brno


10 229 000 Kč /za nemovitost
HYPOTÉKA od 45 717 Kč /měs.
Regionální dodavatelé v Brně

Popis

Rezidence Mariacela - Vaše komfortní bydlení poblíž nového Jižního centra Brna, v oblasti s dynamickým rozvojem, v bezprostřední blízkosti nového hlavního nádraží a parku Mariacela.
Mariacela roste na nároží ulic Dornych a Kalová, Brno.

Jedná se o moderní polyfunkční projekt, který spojuje inovativní technologie s pohodlím domova. Díky chytré domácnosti, rekuperaci vzduchu a chlazeným stropům nabízí zdravé a komfortní bydlení po celý rok. Mariacela znamená nejen nižší náklady, ale i dlouhodobě udržitelné bydlení s energetickým štítkem A.

Celkem 94 exkluzivních jednotek různých dispozic s balkonem, lodžií či terasou, umístěných v 1.až 9.nadzemním podlaží. Horní patra umožňují krásný výhled na brněnské dominanty.
Naopak v přízemí domu je navženo 7 komerčních prostor určených pro obchody či služby.

V podzemních patrech, kam vás pohodlně doveze výtah, se pak nachází:

- GARÁŽOVÁ STÁNÍ v ceně od 800.000,-Kč, pohodlný vjezd/výjezd
zajišťují automatická sekční garážová vrata. V hromadné garáži -
příprava na wallbox (el.nabíjení aut)

- SKLEPY různých velikostí přístupné i přímo z garážových stání.
Výběr sklepu je na kupujícím, cena sklepu není součástí ceny
jednotky.

Výstavba Rezidence Mariacela zahájena v I.Q/2025,
termín dokončení ve IV.Q/2027.

Rádi Vám poskytneme podrobnější informace nebo se podívejte na webové stránky projektu rezidencemariacela.

Cena
10 229 000 Kč /za nemovitost Spočítat hypotéku
Aktualizováno
14. 11. 2025
Adresa
Kalová, Brno
Stavba
Skeletová
Stav objektu
Ve výstavbě
Patro
3.
Vlastnictví
Osobní
Užitná plocha
83 m2
Třída energetické náročnosti
A - Mimořádně úsporná
Balkon

Máte zájem o tuto nemovitost?

Tímto, v souladu s nařízením Evropského parlamentu a Rady (EU) 2016/679, v platném znění, prohlašuji, že mi je alespoň 16 let a uděluji tak svůj souhlas se zpracováním zadaných údajů (jméno, telefon, e-mail, ip adresa) společnosti B3 Technology, s.r.o., IČ: 07330600, se sídlem Novostavby 126/23, 435 11 Lom (správce dat), za účelem předání dotazu z tohoto formuláře Vámi vybranému inzerentovi a zpětného kontaktování mé osoby. Osobní údaje bude správce zpracovávat manuálně i automaticky přímo prostřednictvím svých zaměstnanců. Informace předané tímto formulářem budou uloženy v databázi správce maximálně po dobu 10 let. Odvolání souhlasu s uložením a zpracováním poskytnutých dat lze e-mailem na info@realitymat.cz. V případě podezření na neoprávněné použití Vámi poskytnutých údajů máte právo předat podnět k šetření Úřadu pro ochranu osobních údajů. Více informací
Chystáte se prodat nemovitost?
Pomůžeme Vám!

Kontakt

Jiřina Kropáčková

Jiřina Kropáčková

Přihlášení k odběru

Nenechte si ujít nejnovější nabídky prodeje bytů 3+kk v Brně.

Podobné nabídky