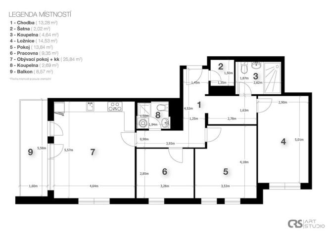
Prodej bytu 4+kk, Praha - Modřany, Mezi vodami, 114 m2

Mezi Vodami, Praha, Modřany


21 900 000 Kč /za nemovitost
HYPOTÉKA od 97 880 Kč /měs.
Regionální dodavatelé v Praze 4

Stěhovací služby

Výkup a prodej starého nábytku

Popis

Každý, kdo prodává byt u golfového hřiště, vám bude vyprávět o klidu a zeleni. Jen málokdo ale přizná, že to často znamená horší dopravní dostupnost — a občas i golfový míček v okně.
Tady je to jiné. V posledním patře projektu Zahálka máte na jedné straně hřiště přímo pod sebou a na druhé tramvajovou zastávku vzdálenou jen pár kroků. To nejlepší z obou světů – příroda i město, bez kompromisů.

Díky rohovému umístění a absenci sousedů vás obklopí ticho a výhled, který se mění s denním světlem. Dispozice bytu byla promyšleně upravena a při výběru příplatkových materiálů se rozhodně nešetřilo. Výsledek? Jeden z nejhezčích bytů v celých Modřanech – promyšlený do posledního detailu.

Rozrostla se vám rodina, nebo začínáte novou životní kapitolu? Prostor tu pohodlně pojme pár se třemi dětmi. A pokud jich máte méně, zůstane vám dost místa na pracovnu, hobby kout i vlastní klid.

Na truhlářských prvcích se nešetřilo pozorností – každý detail vznikal na míru.
Velkoformátová dlažba, sanita prémiové úrovně, kompletní osvětlení Philips Hue, klimatizace ve všech místnostech, 3M solární fólie, dálkově ovládané žaluzie, sítě proti hmyzu, kamerový rozvod v bytě i na lodžii.
A srdce celého prostoru? Italská kuchyně Cucinesse se spotřebiči Siemens StudioLine – včetně integrované vakuovačky. Tady se vaří jedna radost.

Lodžie s automatickým zavlažováním dodává bytu další rozměr – místo, kde se den zpomalí.
K bytu patří také dvě podzemní parkovací stání vedle sebe a velkorysý sklep.

Projekt Zahálka nabízí všechno, co dělá život příjemným: dětská hřiště, cyklostezky, stezky kolem řeky, golfové hřiště i Modřanskou rokli.
Občanská vybavenost patří k nejlepším v Praze – supermarket, kavárna s delikatesami, asijská restaurace, dvě fitka a MHD doslova před domem.
V okolí najdete školky, školy, kulturní i zdravotnická zařízení - tady vám nebude chybět vůbec nic!

Tento byt si každopádně zasloužil své čestné místo v naší sekci nemovitostí Curated™

Cena
21 900 000 Kč /za nemovitost Spočítat hypotéku
Aktualizováno
13. 11. 2025
Adresa
Mezi Vodami, Praha, Modřany
ID
ZAHALKA
Stavba
Cihlová
Stav objektu
Novostavba
Patro
13. z 13
Vlastnictví
Osobní
Užitná plocha
114 m2
Třída energetické náročnosti
B - Velmi úsporná
Ukazatel energetické náročnosti
91 kWh/m2 za rok
Sklep
Lodžie
Výtah
Parkování

Máte zájem o tuto nemovitost?

Tímto, v souladu s nařízením Evropského parlamentu a Rady (EU) 2016/679, v platném znění, prohlašuji, že mi je alespoň 16 let a uděluji tak svůj souhlas se zpracováním zadaných údajů (jméno, telefon, e-mail, ip adresa) společnosti B3 Technology, s.r.o., IČ: 07330600, se sídlem Novostavby 126/23, 435 11 Lom (správce dat), za účelem předání dotazu z tohoto formuláře Vámi vybranému inzerentovi a zpětného kontaktování mé osoby. Osobní údaje bude správce zpracovávat manuálně i automaticky přímo prostřednictvím svých zaměstnanců. Informace předané tímto formulářem budou uloženy v databázi správce maximálně po dobu 10 let. Odvolání souhlasu s uložením a zpracováním poskytnutých dat lze e-mailem na info@realitymat.cz. V případě podezření na neoprávněné použití Vámi poskytnutých údajů máte právo předat podnět k šetření Úřadu pro ochranu osobních údajů. Více informací
Chystáte se prodat nemovitost?
Pomůžeme Vám!

Kontakt

Filip Veselý MRE

Filip Veselý MRE

Přihlášení k odběru

Nenechte si ujít nejnovější nabídky prodeje bytů 4+kk v Praze 4.

Podobné nabídky