Prodej obchodního prostoru, Neratovice, Hlavní, 620 m2

Hlavní, Neratovice, Mlékojedy


7 900 000 Kč /za nemovitost
HYPOTÉKA od 35 308 Kč /měs.

(Cena je uvedena včetně provize a právního servisu., včetně provize, včetně právního servisu)


Regionální dodavatelé v Neratovicích

Popis

Nabízíme Vám ke koupi prostorný dům se zajímavou historií (dříve hospoda s ubytováním) a mimořádně variabilním využitím. Územní plán SV – smíšené obytné venkovské umožňuje mimo bydlení také obchod, služby, gastro, kanceláře, drobnou nerušící výrobu či ubytování. Ideální pro kombinaci bydlení + podnikání.

Hlavní přednosti:
Užitná plocha cca 620 m², pozemek 702 m²

Dva zrekonstruované byty v přízemí (2+kk + garsonka), samostatné vstupy (aktuálně s nájemníky)

Velké sály po bývalé hospodě – skvělý základ pro gastro, showroom, studio, sport/volnočasové aktivity

1. patro: větší byt + 4 pokoje (historicky ubytování) + 2× WC (aktuálně s nájemníky)

Garáž, technické místnosti, plynový kotel, bojlery

Vydlážděný dvůr – možnost parkovacích stání / předzahrádky

Regulativ SV = široké komerční využití (služby, obchod, stravování, kanceláře, drobná řemesla/lehké provozy bez rušení okolí)

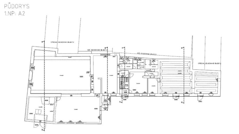
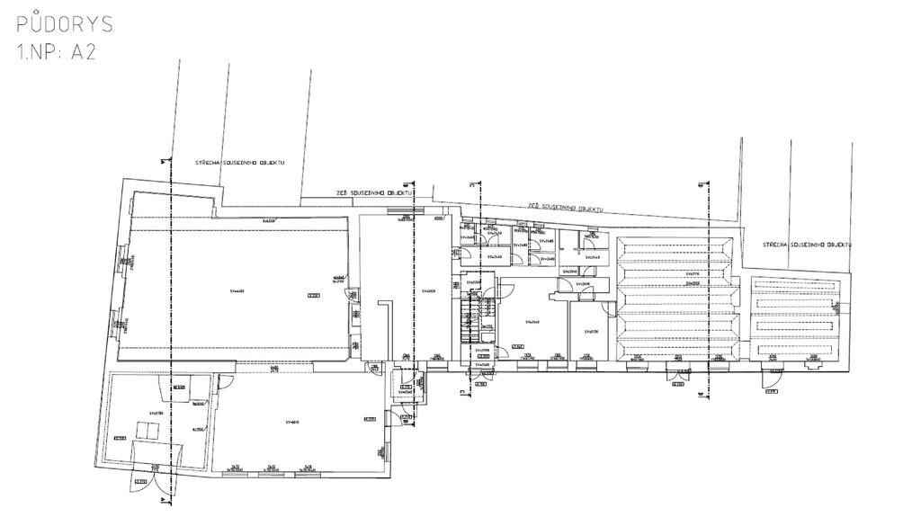
Dispozice
Přízemí: 2+kk a garsonka (nově zrekonstruované, samostatné vstupy), dále velká místnost s kuchyňskou linkou a koupelnou (zázemí pro horní byt/jednotky), dva víceúčelové sály po hospodě, garáž, technické zázemí (bojlery, plynový kotel).

1. patro: byt (2 místnosti) + 4 menší pokoje se samostatnými vstupy, 2× WC.
Exteriér: vydlážděný dvůr – možnost parkování či venkovního sezení.

Využití (příklady, dle Územního plánu)
Gastro + ubytování (bistro/restaurace + penzion/ubytovna)

Showroom/prodejna + zázemí firmy, kanceláře, ateliéry, studio služeb

Řemeslná dílna / lehká, nerušící výroba (truhlářství, montáž drobných výrobků apod.)

Sport/volný čas (menší tělocvična/klub), komunitní/občanská vybavenost

Lokalita:
Klidná obec Mlékojedy s rychlou dostupností do Neratovic. Pěšky samoobsluha, v obci MŠ; nedaleko pískovna Beach Park Mlékojedy se sportovními a kulturními akcemi. V Tišicích (2 km) je větší samoobsluha, bus a vlak směr Praha / MB / Liberec. Kompletní občanská vybavenost v Neratovicích, St. Boleslavi a Mělníku.

Pro investory a podnikání:
Objekt je připraven pro okamžité částečné využití (byty v přízemí) a nabízí jasný prostor pro komerční koncept v srdci obce. Díky členění a velikosti lze oddělit provoz a bydlení i škálovat v čase.

Nenechte si ujít tuto jedinečnou příležitost!
Kontaktujte nás a domluvte si prohlídku. Rádi Vám představíme všechny možnosti, které tento dům nabízí.

Cena
7 900 000 Kč /za nemovitost Spočítat hypotéku
Poznámka k ceně
Cena je uvedena včetně provize a právního servisu., včetně provize, včetně právního servisu
Aktualizováno
12. 11. 2025
Adresa
Hlavní, Neratovice, Mlékojedy
ID
RM25019
Stavba
Cihlová
Stav objektu
Dobrý
Vybaveno
Částečně
Typ objektu
Patrový
Druh objektu
Samostatný
Lokalita objektu
Centrum obce
Užitná plocha
620 m2
Plocha pozemku
702 m2
Třída energetické náročnosti
G - Mimořádně nehospodárná
Elektřina
230V, 400V
Plyn
Plynovod
Odpad
Veřejná kanalizace
Topení
Lokální elektrické, Ústřední plynové
Komunikace
Asfaltová
Doprava
Silnice, Autobus
Voda
Vodovod
Výtah

Máte zájem o tuto nemovitost?

Tímto, v souladu s nařízením Evropského parlamentu a Rady (EU) 2016/679, v platném znění, prohlašuji, že mi je alespoň 16 let a uděluji tak svůj souhlas se zpracováním zadaných údajů (jméno, telefon, e-mail, ip adresa) společnosti B3 Technology, s.r.o., IČ: 07330600, se sídlem Novostavby 126/23, 435 11 Lom (správce dat), za účelem předání dotazu z tohoto formuláře Vámi vybranému inzerentovi a zpětného kontaktování mé osoby. Osobní údaje bude správce zpracovávat manuálně i automaticky přímo prostřednictvím svých zaměstnanců. Informace předané tímto formulářem budou uloženy v databázi správce maximálně po dobu 10 let. Odvolání souhlasu s uložením a zpracováním poskytnutých dat lze e-mailem na info@realitymat.cz. V případě podezření na neoprávněné použití Vámi poskytnutých údajů máte právo předat podnět k šetření Úřadu pro ochranu osobních údajů. Více informací
Chystáte se prodat nemovitost?
Pomůžeme Vám!

Kontakt

Boris Nikolov

Boris Nikolov

Přihlášení k odběru

Nenechte si ujít nejnovější nabídky prodeje obchodních prostor v Neratovicích.

Podobné nabídky